For Lease - 2695 Hamilton Road, Sarnia, Ontario

Views   4
Time on Jump  66 day
  • Prestigious freestanding office building in the vibrant Brights Grove community.
  • High-profile corner location with excellent visibility and access.
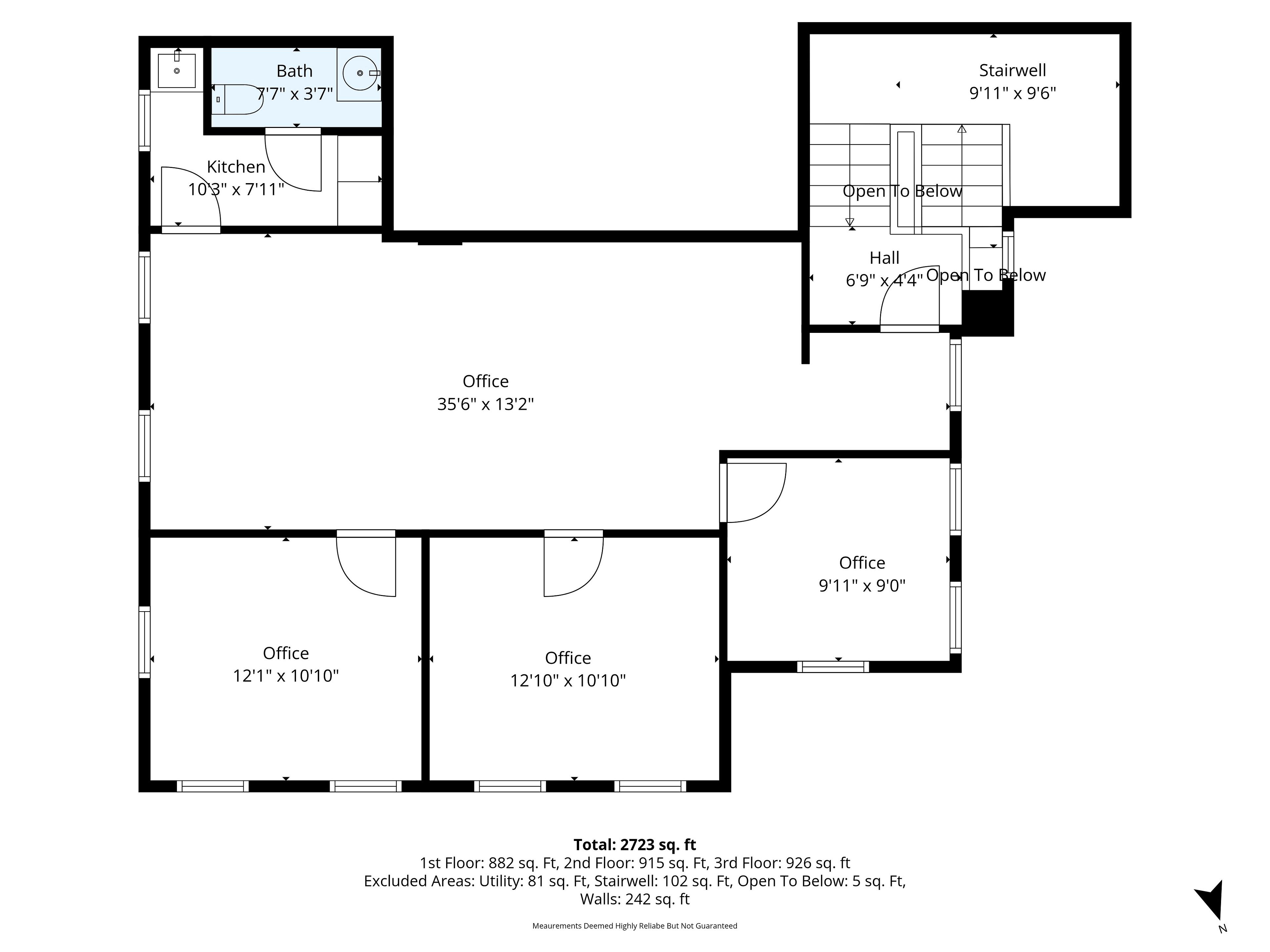
  • Spacious 3,000 sq ft building spread across three well-maintained floors.
  • Each floor features its own heating/cooling and bathrooms for convenience.
  • Ample parking with a newly upgraded lot, perfect for professional services.
Lease this prestigious & unique freestanding commercial office building in the vibrant brights grove community. This extremely well maintained building offers a high profile location with excellent visibility on the corner of hamilton rd & beachwood ave with convenient access to lakeshore road. This approx. 3,000 sq ft commercial/triplex building has 3 floors comprising of 1,000 sq ft each. Each floor has its own heating/cooling & 2 pc bathrooms. 8 kitchenettes are situated on the main & upper floor. Originally designed as a dentist's office with 3 phase electrical power. Professionally appointed throughout with large windows with natural sunlight, new furnace & air & new grade level parking lot. Ideal for all professional offices: law, medical, dental, accounting, engineering, or service based businesses. Coc1-3 (community commercial 1) zoning. Monthly lease price is: $4,500. 00 + utilities & internet + $5. 50 tmi per sq ft. This building is in a class all by itself!
Listing IDX12878638
Address2695 Hamilton Road
CitySarnia, Ontario
Lease$4,500
StyleOffice
TypeIndustrial/Commercial
StatusFor Lease
Subtype OfficeOwnership LeaseholdHeating / Cooling Gas Forced Air Closed
ASAP

Tue

19

May

Wed

20

May

Thu

21

May

Fri

22

May

Sat

23

May

Sun

24

May

Mon

25

May

Tue

26

May

Wed

27

May

Thu

28

May

Fri

29

May

Sat

30

May

Sun

31

May

Mon

1

Jun

Tue

2

Jun

Wed

3

Jun

Thu

4

Jun

Fri

5

Jun

Sat

6

Jun

Sun

7

Jun

Mon

8

Jun

Tue

9

Jun

Wed

10

Jun

Thu

11

Jun

Fri

12

Jun

Sat

13

Jun

Sun

14

Jun

Mon

15

Jun

Tue

16

Jun

By clicking “Get pre-qualified” and/or 'Submit' you are expressly consenting, in writing, to receive telemarketing and other messages, including artificial or prerecorded voices, via automated calls or texts from jumprealty.ca and up.mortgages at the number you provided above. This consent is not required to purchase any good or service. Message and data rates may apply, frequency varies. Text HELP for help or STOP to cancel. More details in Terms of Use and Privacy Policy.

Listing Agency:  RE/MAX METROPOLIS REALTY

* Data is provided courtesy of PROPTX. The information provided herein must only be used by consumers that have a bona fide interest in the purchase, sale, or lease of real estate and may not be used for any commercial purpose or any other purpose. The information is deemed reliable but is not guaranteed accurate by PROPTX.

Hospital
Parks
Schools
Place of Worship
Please select an amenity above to view a list.

Recommended Properties

Loading...
2695 Hamilton Road
Sarnia , Ontario
$4,500
Get more info