For Lease - 279 Adams Road, Strong, Ontario

Views   1
Time on Jump  91 day
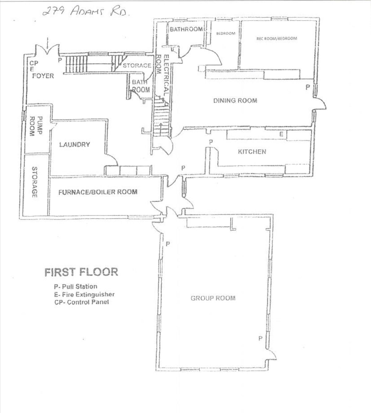
  • Fully furnished 8,100+ sq ft facility designed for residential care.
  • Located on 6 scenic acres with ample outdoor space.
  • Features 15+ furnished bedrooms and multiple lounges and dining areas.
  • Commercial-grade kitchen and laundry facilities for easy operations.
  • Conveniently located near Sundridge and Hwy 11 for access to services.
An exceptional leasing opportunity in beautiful northern ontario. Purpose-built, fully furnished, and ready to operate, this 8,100+ sq ft, 3-storey facility on 6 scenic acres is ideal for agencies, ministries, and organizations seeking a large-scale, private setting for residential care and support programs. Formerly an addiction recovery centre, its designed for approximately 30 residents and features 15+ furnished bedrooms, multiple lounges, offices, dining areas, and 10 washrooms. A commercial-grade kitchen, laundry facilities, storage, and meeting rooms ensure smooth daily operations. The expansive grounds provide space for recreation, gardening, or therapeutic activities, with ample parking for staff and visitors. Located in strong township, just minutes from sundridge and hwy 11, the property combines privacy and fresh air with convenient access to nearby services a rare turn-key opportunity.
Listing IDX12341791
Address279 Adams Road
CityStrong, Ontario
Lease$16,500
Bath10 Full
StyleInvestment
Land Size5.83
TypeIndustrial/Commercial
StatusFor Lease
Subtype InvestmentCommunity Features Major Highway, Recreation/Community CentreOwnership LeaseholdHeating / Cooling Water Radiators
ASAP

Thu

18

Dec

Fri

19

Dec

Sat

20

Dec

Sun

21

Dec

Mon

22

Dec

Tue

23

Dec

Wed

24

Dec

Thu

25

Dec

Fri

26

Dec

Sat

27

Dec

Sun

28

Dec

Mon

29

Dec

Tue

30

Dec

Wed

31

Dec

Thu

1

Jan

Fri

2

Jan

Sat

3

Jan

Sun

4

Jan

Mon

5

Jan

Tue

6

Jan

Wed

7

Jan

Thu

8

Jan

Fri

9

Jan

Sat

10

Jan

Sun

11

Jan

Mon

12

Jan

Tue

13

Jan

Wed

14

Jan

Thu

15

Jan

By clicking “Get pre-qualified” and/or 'Submit' you are expressly consenting, in writing, to receive telemarketing and other messages, including artificial or prerecorded voices, via automated calls or texts from jumprealty.ca and up.mortgages at the number you provided above. This consent is not required to purchase any good or service. Message and data rates may apply, frequency varies. Text HELP for help or STOP to cancel. More details in Terms of Use and Privacy Policy.

Listing Agency:  SUTTON GROUP OLD MILL REALTY INC.
Hospital
Parks
Schools
Place of Worship
Please select an amenity above to view a list.

Recommended Properties

Loading...
279 Adams Road
Strong , Ontario
10 $16,500
Get more info