For Sale - 28 Fairway Avenue, Belleville, Ontario

Est payment $2,627/mo
Views   1
Time on Jump  1 days
  • Updated home with over 1,500 sq ft of comfortable living space.
  • Renovated kitchen with new appliances and refreshed cabinets.
  • Versatile main-floor bedroom can serve as a home office.
  • Spacious family room addition opens to a large deck and backyard.
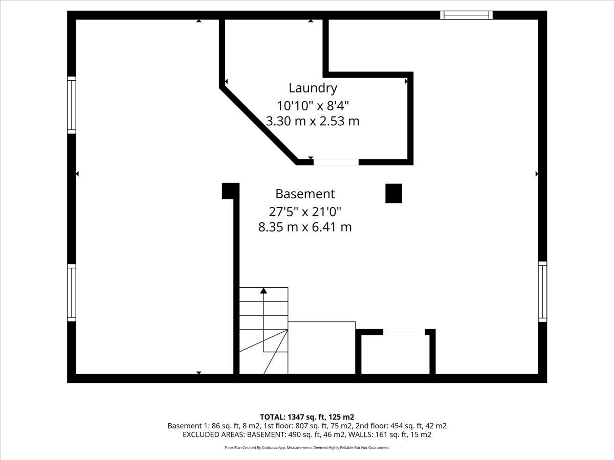
  • Detached garage and partially finished basement with rec room.



Welcome to this updated east end home offering over 1,500 sq ft of comfortable living space on a fantastic belleville street. Recent improvements include a renovated kitchen with new appliances, refreshed cabinets and hardware, freshly painted interiors, refinished tubs and showers, new window treatments throughout, and thoughtful upgrades such as updated lighting and ceiling fans. The layout features three bedrooms upstairs, a versatile main-floor bedroom ideal as a fourth bedroom or home office, two full 4 piece bathrooms, a bright living room, and a separate dining area. A spacious family room addition opens to a large deck and great-sized backyard, perfect for entertaining, kids, or pets. Completed by a detached garage, a partially finished basement with rec room, and a laundry area with future bathroom potential, this is a solid home with space, updates, and a desirable east end address.
Listing IDX12749966
Address28 Fairway Avenue
CityBelleville, Ontario
Price$529,900
Bed / Bath4 / 2 Full
Style2-Storey, Detached
ConstructionVinyl Siding
TypeResidential
StatusFor Sale
Subtype DetachedIndoor Features Sump Pump, Water Heater OwnedOutdoor Features Deck, PatioAmenities Fenced Yard, Hospital, Library, Park, Place Of Worship, SchoolOwnership FreeholdBasement Partially FinishedFoundation Poured ConcreteHeating / Cooling Forced AirHeating Fuel GasSewer Sewer
Parking 2.00
ASAP

Tue

3

Feb

Wed

4

Feb

Thu

5

Feb

Fri

6

Feb

Sat

7

Feb

Sun

8

Feb

Mon

9

Feb

Tue

10

Feb

Wed

11

Feb

Thu

12

Feb

Fri

13

Feb

Sat

14

Feb

Sun

15

Feb

Mon

16

Feb

Tue

17

Feb

Wed

18

Feb

Thu

19

Feb

Fri

20

Feb

Sat

21

Feb

Sun

22

Feb

Mon

23

Feb

Tue

24

Feb

Wed

25

Feb

Thu

26

Feb

Fri

27

Feb

Sat

28

Feb

Sun

1

Mar

Mon

2

Mar

Tue

3

Mar

By clicking “Get pre-qualified” and/or 'Submit' you are expressly consenting, in writing, to receive telemarketing and other messages, including artificial or prerecorded voices, via automated calls or texts from jumprealty.ca and up.mortgages at the number you provided above. This consent is not required to purchase any good or service. Message and data rates may apply, frequency varies. Text HELP for help or STOP to cancel. More details in Terms of Use and Privacy Policy.

Listing Agency:  ROYAL LEPAGE PROALLIANCE REALTY
Hospital
Parks
Schools
Place of Worship
Please select an amenity above to view a list.

Recommended Properties

Loading...
28 Fairway Avenue
Belleville , Ontario
4 2 $529,900
Get more info