For Sale - 2800 Front Road, Loyalist, Ontario

Est payment $4,321/mo
Views   2
Time on Jump  9 day
  • Over 1.3 acres with 260 feet of accessible waterfront for boaters.
  • Spacious kitchen with stainless appliances, perfect for entertaining family and friends.
  • Enormous primary suite with walk-in closet, ensuite bath, and jetted tub.
  • Private deck with hot tub and stunning lake views for relaxation.
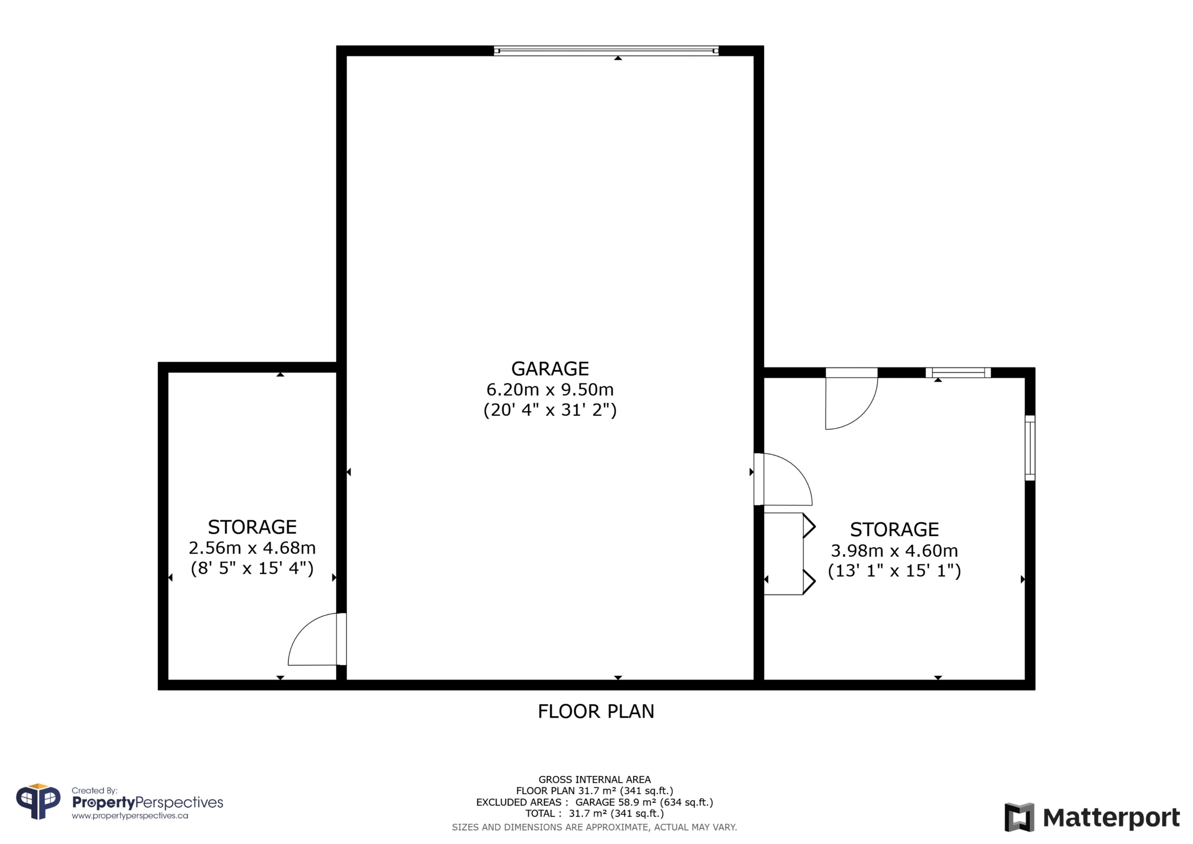
  • Heated garage, shop, and additional utility sheds for storage and projects.



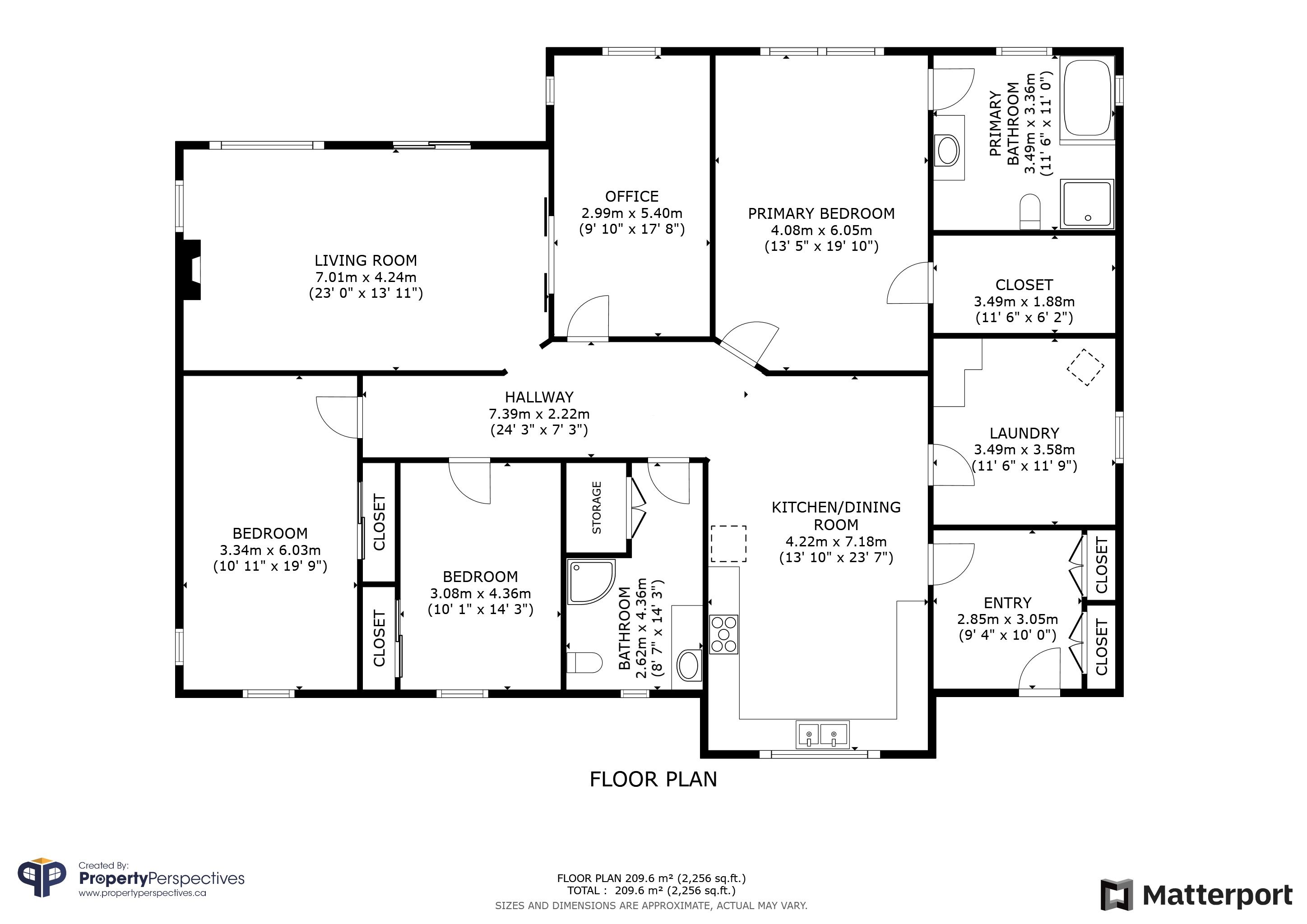
A boaters paradise on over 1. 3 acres of gently sloping land down to over 260 feet of accessible waterfront, this spectacular 3 bed / 2 bath home is now on the market for the very first time. Less than five minutes east of the ferry in stella, this property offers stunning views over the lake from both inside and outside the home and a detached heated garage / shop. The huge tiled kitchen is ideal for entertaining, offering plenty of room for a dining area and includes two stainless fridges, a gas stove, dishwasher and miles of counter top & food prep area. The enormous primary bedroom suite with a large walk-in closet and a private ensuite bath includes both a tiled and glass shower enclosure and a jetted tub. A great living room with more of those beautiful lake views also has a patio walk out to a private, covered deck with a sitting area and hot tub. Heated radiant floors in this slab on grade build with wide doorways throughout the home allow for anyone with current or future potential mobility issues to navigate the home with assistance of devices. The waterfront has some amazing improvements that include a concrete wharf base and shoreline walk way with boat cleats on the sheltered side, a cantilevered dock extending out beyond it into the lake and your own concrete boat launch for easy access into and out of your private berth. Enjoy peace of mind with an automated generator system tied into the home with an efficient electric boiler providing your heat, augmented by the gas fireplace in the living room. The heated and fully powered shop offers a pile of options for storage and projects in addition to room for a vehicle, plus two additional utility sheds for a boat, lawn tractor and more equipment. Loved and maintained in immaculate condition by the family that built it in 2002, this property offers beautiful lakefront living, amazing water access and solid workmanship providing easy island living and peace of mind.
Listing IDX13008850
Address2800 Front Road
CityLoyalist, Ontario
Price$899,900
Bed / Bath3 / 2 Full
StyleBungalow, Detached
ConstructionBrick
Land Size1.29
TypeResidential
StatusFor Sale
Subtype DetachedIndoor Features Central Vacuum, Primary Bedroom - Main Floor, Water Heater OwnedOutdoor Features Fishing, Hot Tub, Lighting, PatioOwnership FreeholdViews Lake, Panoramic, Pasture, WaterWaterfront DirectAppliances Hallway Width 42 Inches or More, Level Within DwellingBasement NoneFoundation Slab, Insulated Concrete FormHeating / Cooling RadiantHeating Fuel PropaneSewer Septic
Parking 10.00
ASAP

Mon

27

Apr

Tue

28

Apr

Wed

29

Apr

Thu

30

Apr

Fri

1

May

Sat

2

May

Sun

3

May

Mon

4

May

Tue

5

May

Wed

6

May

Thu

7

May

Fri

8

May

Sat

9

May

Sun

10

May

Mon

11

May

Tue

12

May

Wed

13

May

Thu

14

May

Fri

15

May

Sat

16

May

Sun

17

May

Mon

18

May

Tue

19

May

Wed

20

May

Thu

21

May

Fri

22

May

Sat

23

May

Sun

24

May

Mon

25

May

By clicking “Get pre-qualified” and/or 'Submit' you are expressly consenting, in writing, to receive telemarketing and other messages, including artificial or prerecorded voices, via automated calls or texts from jumprealty.ca and up.mortgages at the number you provided above. This consent is not required to purchase any good or service. Message and data rates may apply, frequency varies. Text HELP for help or STOP to cancel. More details in Terms of Use and Privacy Policy.

Listing Agency:  RE/MAX FINEST REALTY INC., BROKERAGE

* Data is provided courtesy of PROPTX. The information provided herein must only be used by consumers that have a bona fide interest in the purchase, sale, or lease of real estate and may not be used for any commercial purpose or any other purpose. The information is deemed reliable but is not guaranteed accurate by PROPTX.

Hospital
Parks
Schools
Place of Worship
Please select an amenity above to view a list.

Recommended Properties

Loading...
2800 Front Road
Loyalist , Ontario
3 2 $899,900
Get more info