For Sale - 2890 Nottawasaga Conc 10 N/A, Clearview, Ontario

Est payment $8,884/mo
Views   1
Time on Jump  52 day
  • Spacious 3 bedroom bungalow with a walkout basement and ample storage.
  • Enjoy a large kitchen island with vaulted ceilings for a modern feel.
  • Two garages provide plenty of parking and workspace options.
  • Experience stunning sunsets over the pond and escarpment.
  • Located minutes from Collingwood, with easy access to outdoor activities.



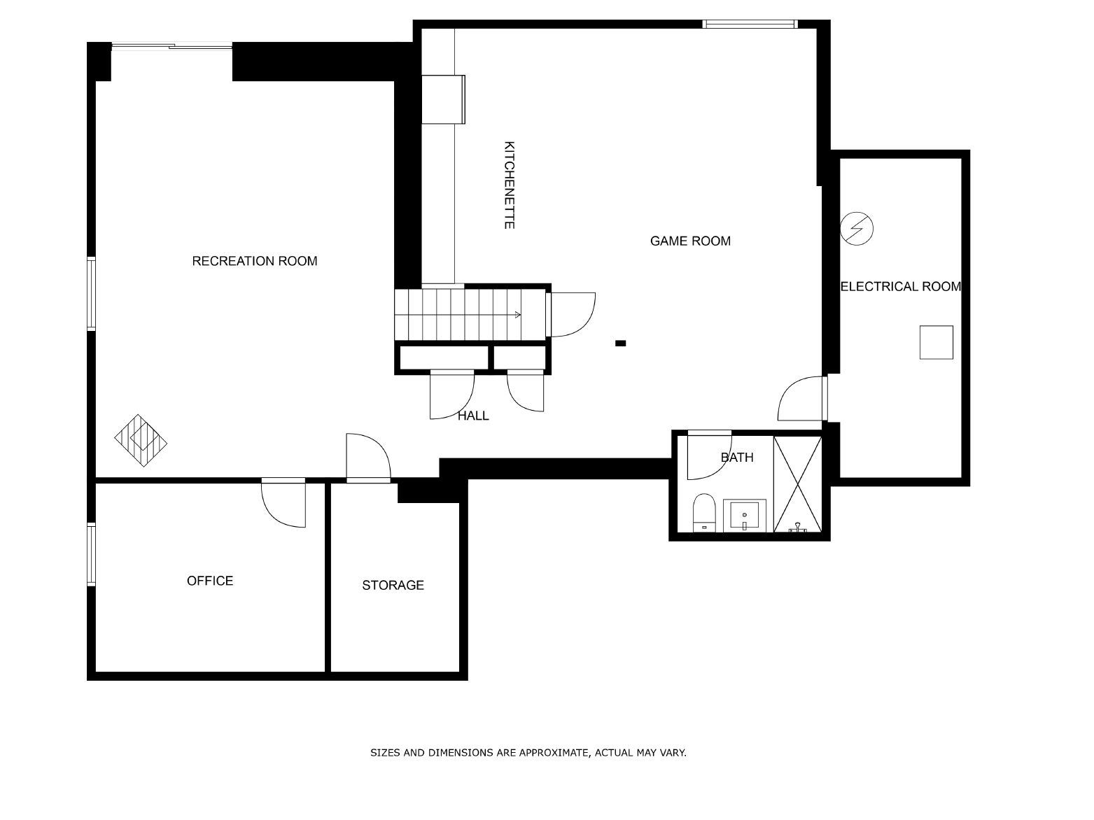
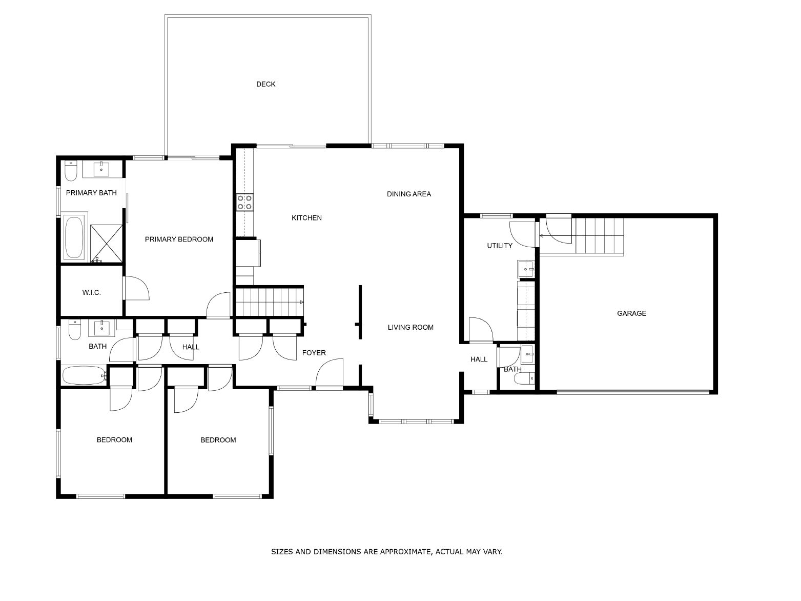
Location! View! 3+ acres! Considered the top 3 must haves. You will appreciate the value in your 3 bedroom 3 1/2 bathroom bungalow with walkout basement. A pond and two garages - attached garage with inside entry and an oversized detached garage/shop round out the attractive features of this property. The attention to detail is apparent throughout, with open concept living, the kitchen boasting a large island with waterfall counter and vaulted ceilings; spacious primary bedroom with generous ensuite bath completed with walk in shower, walk in closet and walk out to balcony. Convenient main floor laundry with inside access to attached garage and rear deck & yard. The lower level features a family room with wood burning fireplace, games room/entertainment area with wet bar, 3 pc bathroom, and office. Lower level walk out to patio area, yard, and pond. Ample storage throughout including a storage room. Rogers fibre internet makes working from home, streaming, or gaming a breeze. Propane furnace installed 2024, basement and detached garage are spray foamed insulted. Enjoy the outdoors, with breathtaking sunsets over the pond and the escarpment, or wake up with early morning sunrises on the front deck. An idyllic setting in the country minutes to collingwood and area amenities, including georgian bay, ski hills, golf courses and pickleball courts. Appreciate your new home after you check out the photos and video - visit in person!
Listing IDS12843232
Address2890 Nottawasaga Conc 10 N/A
CityClearview, Ontario
Price$1,850,000
Bed / Bath3 / 3 Full
StyleBungalow, Detached
ConstructionWood
Land Size3.44
TypeResidential
StatusFor Sale
Subtype DetachedIndoor Features Other, Water Treatment, Water Heater Owned, Water Softener, Central VacuumOutdoor Features DeckAmenities Lake/Pond, Golf, HospitalOwnership FreeholdViews Hills, PondWaterfront NoneBasement Walk-Out, FinishedFoundation Concrete BlockHeating / Cooling Forced AirHeating Fuel PropaneSewer Septic
Parking 16.00
ASAP

Mon

27

Apr

Tue

28

Apr

Wed

29

Apr

Thu

30

Apr

Fri

1

May

Sat

2

May

Sun

3

May

Mon

4

May

Tue

5

May

Wed

6

May

Thu

7

May

Fri

8

May

Sat

9

May

Sun

10

May

Mon

11

May

Tue

12

May

Wed

13

May

Thu

14

May

Fri

15

May

Sat

16

May

Sun

17

May

Mon

18

May

Tue

19

May

Wed

20

May

Thu

21

May

Fri

22

May

Sat

23

May

Sun

24

May

Mon

25

May

By clicking “Get pre-qualified” and/or 'Submit' you are expressly consenting, in writing, to receive telemarketing and other messages, including artificial or prerecorded voices, via automated calls or texts from jumprealty.ca and up.mortgages at the number you provided above. This consent is not required to purchase any good or service. Message and data rates may apply, frequency varies. Text HELP for help or STOP to cancel. More details in Terms of Use and Privacy Policy.

Listing Agency:  Chestnut Park Real Estate

* Data is provided courtesy of PROPTX. The information provided herein must only be used by consumers that have a bona fide interest in the purchase, sale, or lease of real estate and may not be used for any commercial purpose or any other purpose. The information is deemed reliable but is not guaranteed accurate by PROPTX.

Hospital
Parks
Schools
Place of Worship
Please select an amenity above to view a list.

Recommended Properties

Loading...
2890 Nottawasaga Conc 10 N/a
Clearview , Ontario
3 3 $1,850,000
Get more info