For Sale - 2938 Starlight Drive, Pickering, Ontario

Est payment $5,552/mo
Views   1
Time on Jump  1 days
  • New corner lot detached home offering 2,311 sq. ft. of living space.
  • Four spacious bedrooms including a primary retreat with a walk-in closet.
  • Open-concept family room with a cozy fireplace for relaxation.
  • Gourmet kitchen with upgraded finishes and inviting breakfast area.
  • Walk-up basement for future customization or additional income potential.



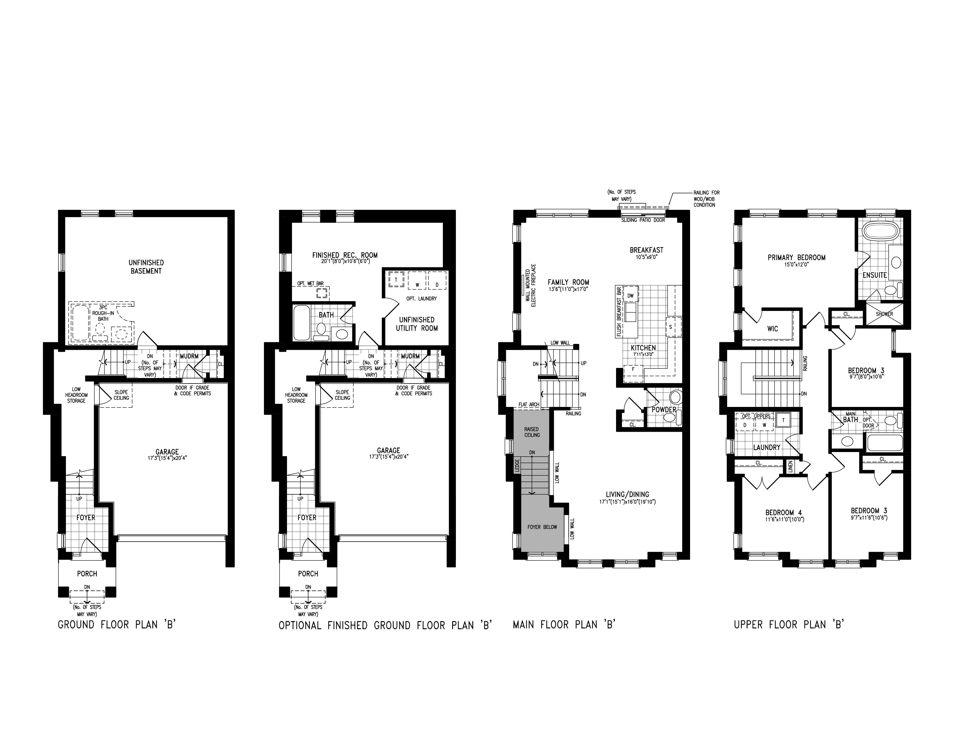
Welcome to the peyto lake model by fieldgate homes - a brand-new corner lot detached residence in the heart of pickering offering 2,311 sq. Ft. Of beautifully designed above-grade living space. This thoughtfully crafted 4-bedroom, 2. 5-bathroom home blends timeless elegance with modern functionality. Soaring 9-foot ceilings on both the main and second floors create an airy, open feel, while rich hardwood flooring and a striking oak staircase add warmth and sophistication throughout. Designed with today's families in mind, the layout features a spacious open-concept family room anchored by a cozy fireplace, seamlessly connected to a refined living and dining area - ideal for both everyday living and entertaining. The gourmet kitchen is a true showpiece, boasting upgraded finishes, sleek cabinetry, and an inviting breakfast area perfect for morning coffee or hosting guests. Upstairs, you'll find four generously sized bedrooms, including a serene primary retreat complete with a walk-in closet and a spa-inspired 4-piece ensuite. The highly sought-after second-floor laundry room adds everyday convenience. The walk-up basement offers incredible potential for future customization - whether you envision an in-law suite, recreation space, or additional income opportunity. With its stunning all-brick exterior, premium finishes, and exceptional craftsmanship, the peyto lake model delivers the perfect balance of luxury and practicality. Don't miss your chance to call this spectacular home yours.
Listing IDE12808786
Address2938 Starlight Drive
CityPickering, Ontario
Price$1,119,990
Bed / Bath4 / 3 Full
Style2 1/2 Storey, Detached
ConstructionBrick
TypeResidential
StatusFor Sale
Subtype DetachedIndoor Features NoneOwnership FreeholdBasement Unfinished, Walk-UpFoundation ConcreteHeating / Cooling Forced AirHeating Fuel GasSewer Sewer
Parking 2.00
ASAP

Sun

22

Feb

Mon

23

Feb

Tue

24

Feb

Wed

25

Feb

Thu

26

Feb

Fri

27

Feb

Sat

28

Feb

Sun

1

Mar

Mon

2

Mar

Tue

3

Mar

Wed

4

Mar

Thu

5

Mar

Fri

6

Mar

Sat

7

Mar

Sun

8

Mar

Mon

9

Mar

Tue

10

Mar

Wed

11

Mar

Thu

12

Mar

Fri

13

Mar

Sat

14

Mar

Sun

15

Mar

Mon

16

Mar

Tue

17

Mar

Wed

18

Mar

Thu

19

Mar

Fri

20

Mar

Sat

21

Mar

Sun

22

Mar

By clicking “Get pre-qualified” and/or 'Submit' you are expressly consenting, in writing, to receive telemarketing and other messages, including artificial or prerecorded voices, via automated calls or texts from jumprealty.ca and up.mortgages at the number you provided above. This consent is not required to purchase any good or service. Message and data rates may apply, frequency varies. Text HELP for help or STOP to cancel. More details in Terms of Use and Privacy Policy.

Listing Agency:  RE/MAX PREMIER INC.
Hospital
Parks
Schools
Place of Worship
Please select an amenity above to view a list.

Recommended Properties

Loading...
2938 Starlight Drive
Pickering , Ontario
4 3 $1,119,990
Get more info