For Sale - 30 Coldbrook Drive, Cavan Monaghan, Ontario

Est payment $4,106/mo
Views   1
Time on Jump  58 day
  • Choose your own interior finishes for a personalized touch.
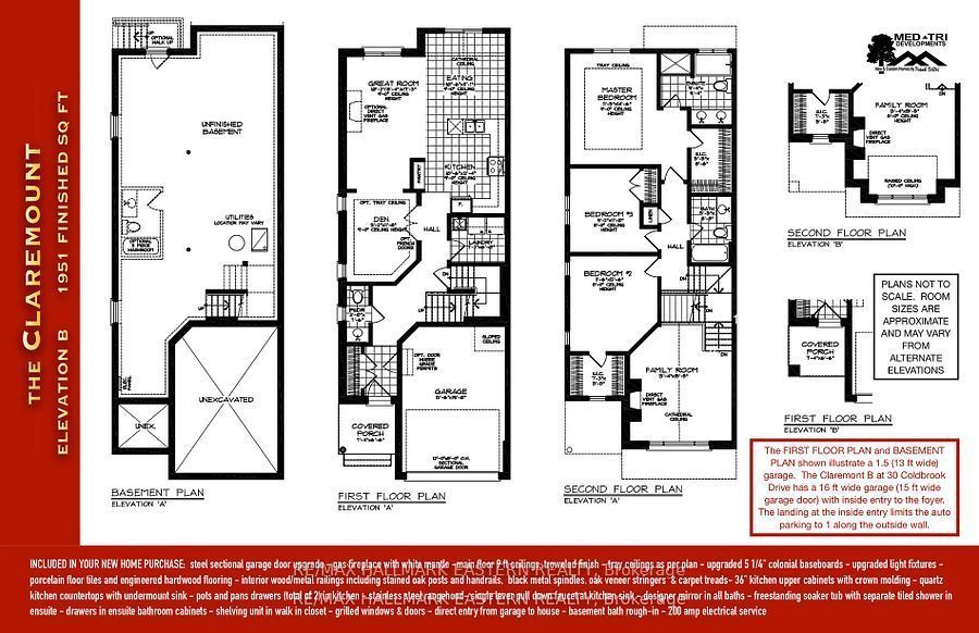
  • Unique second storey family room with raised ceiling and gas fireplace.
  • Bright open concept living space with modern kitchen and quartz counters.
  • Located in a family-friendly neighborhood near parks and schools.
  • Easy access to downtown amenities including groceries and restaurants.



Buy new, pick your own interior finishes and move in. Creekside in millbrook's most popular model "the claremount", upgraded elevation b with stone clad front porch and double garage, has been constructed and will be completed inside with your colour choices of hardwood & porcelain tile flooring, kitchen, laundry, and bath cabinetry & counters. (interior pictures shown are virtual staging). Unique to this model is a second storey family room featuring a raised ceiling and gas fireplace. The design, by millbrook's "hands on" quality builder, frank veltri, includes 3 bedrooms, 3 baths, main floor den, and bright, open concept living, dining and kitchen with quartz counters, potlighting and pantry cabinetry. This is 1951 square feet of finished living space plus unfinished basement with rough-in for a 4th bath. The main floor features include engineered hardwood flooring, 9 foot troweled ceilings and glass sliding door walkout to the back yard. This property is located within the historic limits of the village, in a small (31 units) family oriented neighbourhood which, when finished, will include a walkway through parkland to centennial lane close to millbrook's elementary school, millbrook valley trails system and the eclectic downtown which offers everything you want and need: daycare, hardware, groceries, restaurants, auto services, computer & other professional services, ontario service office, wellness & personal care, wine & cheese, chocolate, festivals and community services.
Listing IDX12835254
Address30 Coldbrook Drive
CityCavan Monaghan, Ontario
Price$854,990
Bed / Bath3 / 3 Full
Style2-Storey, Detached
ConstructionBrick, Stone
TypeResidential
StatusFor Sale
Subtype DetachedIndoor Features Air Exchanger, Upgraded Insulation, ERV/HRV, Rough-In BathOutdoor Features PorchAmenities Golf, Level, Park, Rec./Commun.Centre, School, LibraryOwnership FreeholdBasement Full, UnfinishedFoundation Poured ConcreteHeating / Cooling Forced AirHeating Fuel GasSewer Sewer
Parking 5.00
ASAP

Fri

1

May

Sat

2

May

Sun

3

May

Mon

4

May

Tue

5

May

Wed

6

May

Thu

7

May

Fri

8

May

Sat

9

May

Sun

10

May

Mon

11

May

Tue

12

May

Wed

13

May

Thu

14

May

Fri

15

May

Sat

16

May

Sun

17

May

Mon

18

May

Tue

19

May

Wed

20

May

Thu

21

May

Fri

22

May

Sat

23

May

Sun

24

May

Mon

25

May

Tue

26

May

Wed

27

May

Thu

28

May

Fri

29

May

By clicking “Get pre-qualified” and/or 'Submit' you are expressly consenting, in writing, to receive telemarketing and other messages, including artificial or prerecorded voices, via automated calls or texts from jumprealty.ca and up.mortgages at the number you provided above. This consent is not required to purchase any good or service. Message and data rates may apply, frequency varies. Text HELP for help or STOP to cancel. More details in Terms of Use and Privacy Policy.

Listing Agency:  RE/MAX HALLMARK EASTERN REALTY

* Data is provided courtesy of PROPTX. The information provided herein must only be used by consumers that have a bona fide interest in the purchase, sale, or lease of real estate and may not be used for any commercial purpose or any other purpose. The information is deemed reliable but is not guaranteed accurate by PROPTX.

Hospital
Parks
Schools
Place of Worship
Please select an amenity above to view a list.

Recommended Properties

Loading...
30 Coldbrook Drive
Cavan Monaghan , Ontario
3 3 $854,990
Get more info