For Lease - 301 OXFORD Street Unit# 76C, London North, Ontario

Views   1
Time on Jump  91 day
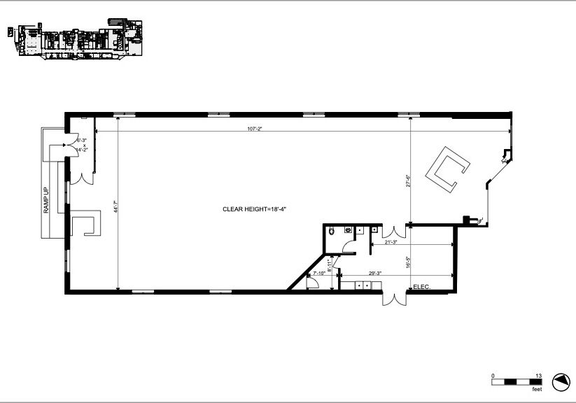
  • Spacious 5,082 square feet with over 18 feet of ceiling height.
  • Located near Western University, attracting students and faculty.
  • Private entrance facing residential buildings ensures steady foot traffic.
  • Ample free parking and mall entrance available during business hours.
  • Part of a vibrant mall with over 50 businesses and diverse services.
Rare opportunity to lease a 5,082 square foot unit in a virtually standalone building within cherryhill village mall, offering an open concept and over 18 feet of clear ceiling height with sleek black-painted ceilings. Just under 2 km from western university, it benefits from proximity to a large student and faculty population. The space features a private, handicap-accessible entrance facing 13 high-rise apartment buildings with over 2,000 residential units, providing consistent foot traffic. With ample free parking and the added benefit of a mall entrance during mall hours, the unit is strategically located next to the passport office and shoppers drug mart. Cherryhill village mall, under new management, is home to more than 50 businesses, including popular tenants like metro, stacked burger, king of pigs, chatr mobile, ginos pizza and many more, offering a vibrant and bustling retail environment for any business. Csa4(1) zoning offers a wide range of uses including, but not limited to: commercial recreational, retail, personal services, restaurants, and much more. Available april 1, 2025. Net rent $18 per sf, additional rents of $16. 10 per sf. Monthly total $14,441. 35 plus hst and utilities.
Listing IDX12329336
Address301 OXFORD Street Unit# 76C
CityLondon North, Ontario
Lease$18
StyleCommercial Retail
TypeIndustrial/Commercial
StatusFor Lease
Subtype Commercial RetailCommunity Features Public TransitFeatures Irregular LotOwnership LeaseholdHeating / Cooling Gas Forced Air OpenSewer Sanitary
ASAP

Thu

18

Dec

Fri

19

Dec

Sat

20

Dec

Sun

21

Dec

Mon

22

Dec

Tue

23

Dec

Wed

24

Dec

Thu

25

Dec

Fri

26

Dec

Sat

27

Dec

Sun

28

Dec

Mon

29

Dec

Tue

30

Dec

Wed

31

Dec

Thu

1

Jan

Fri

2

Jan

Sat

3

Jan

Sun

4

Jan

Mon

5

Jan

Tue

6

Jan

Wed

7

Jan

Thu

8

Jan

Fri

9

Jan

Sat

10

Jan

Sun

11

Jan

Mon

12

Jan

Tue

13

Jan

Wed

14

Jan

Thu

15

Jan

By clicking “Get pre-qualified” and/or 'Submit' you are expressly consenting, in writing, to receive telemarketing and other messages, including artificial or prerecorded voices, via automated calls or texts from jumprealty.ca and up.mortgages at the number you provided above. This consent is not required to purchase any good or service. Message and data rates may apply, frequency varies. Text HELP for help or STOP to cancel. More details in Terms of Use and Privacy Policy.

Listing Agency:  EXP REALTY
Hospital
Parks
Schools
Place of Worship
Please select an amenity above to view a list.

Recommended Properties

Loading...
301 Oxford Street Unit# 76c
London North , Ontario
$18
Get more info