For Lease - 3176 Ridgeway Drive Unit# 60-62, Mississauga, Ontario

Views   1
Time on Jump  193 day
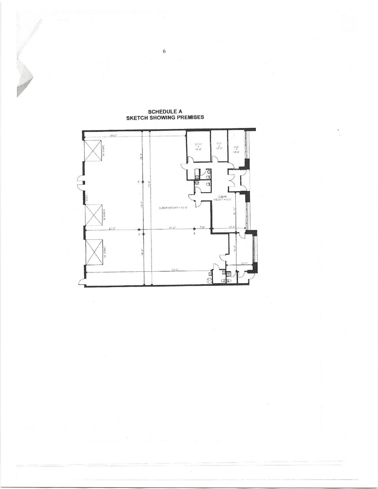
  • Clean triple unit in a prime warehouse location with flexible division.
  • Approximately 30% of space designed for office use with modern amenities.
  • Features include 5 private offices, boardroom, and an open area.
  • Warehouse offers good clear height and 3 drive-in doors for convenience.
  • Excellent parking and close proximity to dining, shopping, and highways.
Clean triple unit with no demising walls in warehouse area. Approximately 30% office component. The units can be divided into a 2500 sf x 3500 sf and subleased independently. Featuring reception, 5 private offices, boardroom, bullpen/ open area & 4 washrooms. Warehouse has good clear height and 3 drive-in doors (one being oversized), excellent on site parking. Walking distance to restaurants and shopping. Transit on rideway drive. Conveniently located in close proximity to hwys qew, 403 & 407.
Listing IDW12206302
Address3176 Ridgeway Drive Unit# 60-62
CityMississauga, Ontario
Lease$1
StyleIndustrial
TypeIndustrial/Commercial
StatusFor Lease
Subtype IndustrialOwnership LeaseholdHeating / Cooling Gas Forced Air Closed
ASAP

Mon

30

Mar

Tue

31

Mar

Wed

1

Apr

Thu

2

Apr

Fri

3

Apr

Sat

4

Apr

Sun

5

Apr

Mon

6

Apr

Tue

7

Apr

Wed

8

Apr

Thu

9

Apr

Fri

10

Apr

Sat

11

Apr

Sun

12

Apr

Mon

13

Apr

Tue

14

Apr

Wed

15

Apr

Thu

16

Apr

Fri

17

Apr

Sat

18

Apr

Sun

19

Apr

Mon

20

Apr

Tue

21

Apr

Wed

22

Apr

Thu

23

Apr

Fri

24

Apr

Sat

25

Apr

Sun

26

Apr

Mon

27

Apr

By clicking “Get pre-qualified” and/or 'Submit' you are expressly consenting, in writing, to receive telemarketing and other messages, including artificial or prerecorded voices, via automated calls or texts from jumprealty.ca and up.mortgages at the number you provided above. This consent is not required to purchase any good or service. Message and data rates may apply, frequency varies. Text HELP for help or STOP to cancel. More details in Terms of Use and Privacy Policy.

Listing Agency:  ROYAL LEPAGE REAL ESTATE SERVICES LTD.

* Data is provided courtesy of PROPTX. The information provided herein must only be used by consumers that have a bona fide interest in the purchase, sale, or lease of real estate and may not be used for any commercial purpose or any other purpose. The information is deemed reliable but is not guaranteed accurate by PROPTX.

Hospital
Parks
Schools
Place of Worship
Please select an amenity above to view a list.

Recommended Properties

Loading...
3176 Ridgeway Drive Unit# 60-62
Mississauga , Ontario
$1
Get more info