For Sale - 318 Broadway Street, Tillsonburg, Ontario

Est payment $2,809/mo
Views   1
Time on Jump  1 days
  • Solid brick bungalow with updated features in the heart of Tillsonburg.
  • Spacious covered deck and gazebo for enjoyable outdoor living.
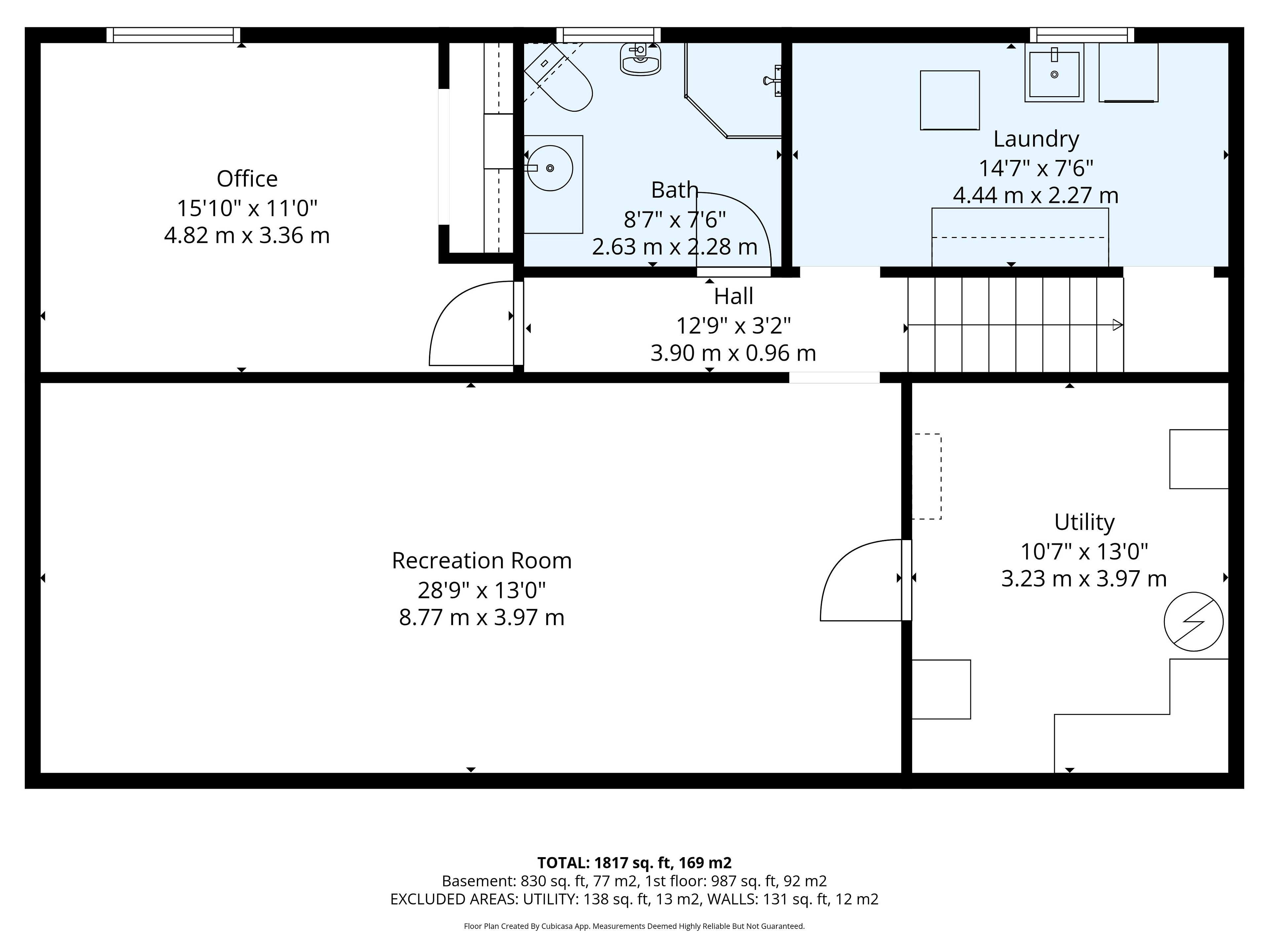
  • Finished basement with family room, office, and games area.
  • Detached heated shop/garage plus carport for parking and hobbies.
  • Conveniently located near Lake Lisgar, Waterpark, and local amenities.



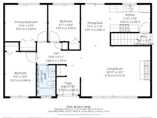
Home is where the heart is... Right in the heart of tillsonburg! Solid brick bungalow, detached heated shop/garage, spacious covered deck plus gazebo for outdoor enjoyment, located on a spacious lot with fenced portion, additional parking and convenient rear lane for easy access. This beautifully updated home has 3 bedrooms on the mainfloor, 2 full bathrooms, a spacious livingroom with fireplace, dining room with patio slider to the deck and nice bright kitchen with stainless steel appliances included. The finished basement hosts a large familyroom and games area with pool table, an office space, the second full bathroom and a laundry room plus storage. The detached garage/workshop is an ideal space for hobbies, storage, or additional parking, there is an attached carport as well for everyday parking. Enjoy outdoor living on the covered porch and gazebo. Situated in a convenient location, this home is just around the corner from lake lisgar, the waterpark, and close to the community centre, plus, you're within walking distance to local restaurants and shopping. Metal roof, furnace and central air all new in 2025, sprinkler system front and back yard.
Listing IDX12941754
Address318 Broadway Street
CityTillsonburg, Ontario
Price$585,000
Bed / Bath3 / 2 Full
StyleBungalow, Detached
ConstructionBrick
TypeResidential
StatusFor Sale
Subtype DetachedIndoor Features Water SoftenerOwnership FreeholdBasement Finished, FullFoundation Concrete BlockHeating / Cooling Forced AirHeating Fuel GasSewer Sewer
Parking 9.00
ASAP

Wed

1

Apr

Thu

2

Apr

Fri

3

Apr

Sat

4

Apr

Sun

5

Apr

Mon

6

Apr

Tue

7

Apr

Wed

8

Apr

Thu

9

Apr

Fri

10

Apr

Sat

11

Apr

Sun

12

Apr

Mon

13

Apr

Tue

14

Apr

Wed

15

Apr

Thu

16

Apr

Fri

17

Apr

Sat

18

Apr

Sun

19

Apr

Mon

20

Apr

Tue

21

Apr

Wed

22

Apr

Thu

23

Apr

Fri

24

Apr

Sat

25

Apr

Sun

26

Apr

Mon

27

Apr

Tue

28

Apr

Wed

29

Apr

By clicking “Get pre-qualified” and/or 'Submit' you are expressly consenting, in writing, to receive telemarketing and other messages, including artificial or prerecorded voices, via automated calls or texts from jumprealty.ca and up.mortgages at the number you provided above. This consent is not required to purchase any good or service. Message and data rates may apply, frequency varies. Text HELP for help or STOP to cancel. More details in Terms of Use and Privacy Policy.

Listing Agency:  RE/MAX a-b Realty Ltd Brokerage

* Data is provided courtesy of PROPTX. The information provided herein must only be used by consumers that have a bona fide interest in the purchase, sale, or lease of real estate and may not be used for any commercial purpose or any other purpose. The information is deemed reliable but is not guaranteed accurate by PROPTX.

Hospital
Parks
Schools
Place of Worship
Please select an amenity above to view a list.

Recommended Properties

Loading...
318 Broadway Street
Tillsonburg , Ontario
3 2 $585,000
Get more info