For Lease - 3200 Dakota Common Unit# B608, Burlington, Ontario

Views   3
Time on Jump  6 day
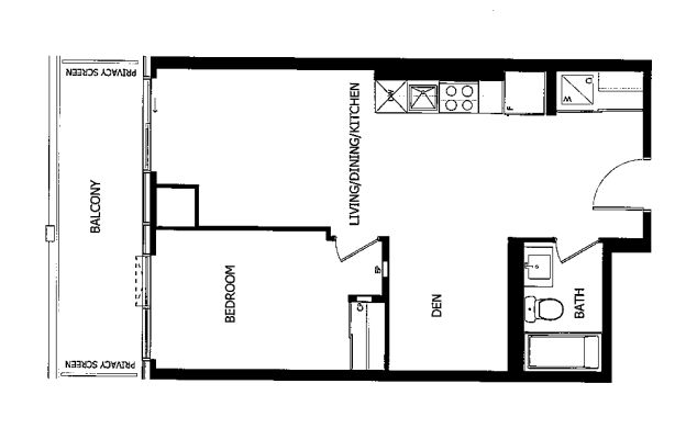
  • Modern 1 bed plus den condo on the desirable 6th floor.
  • Enjoy a spacious balcony for outdoor relaxation.
  • High ceilings and stylish finishes throughout the unit.
  • Conveniently located near shops, restaurants, parks, and schools.
  • Quick access to QEW for easy commuting.
Absolutely beautiful 6th floor 1 bed + den, 1 bath valera condo in sought after alton village neighbourhood. Interior living space 609 + 116 sq ft balcony. 9ft ceiling. Modern finishes, s/s appliances, quartz counters, laminate floors & in-suite stacked washer & dryer. 1 parking & 1 locker included! All utilities are through metergy. No smokers. Quick qew access, walking distance to shopping centre, restaurants, park and schools.
Listing IDW12928616
Address3200 Dakota Common Unit# B608
CityBurlington, Ontario
Lease$2,350
Bed / Bath2 / 1 Full
StyleApartment, Condo Apartment
ConstructionConcrete, Stucco (Plaster)
TypeCondominium
StatusFor Lease
Subtype Condo ApartmentIndoor Features Carpet Free, Other, In-Suite LaundryInclusions Central Air Conditioning, Common Elements, ParkingOwnership LeaseholdBasement NoneHeating / Cooling Forced AirHeating Fuel Gas
Parking 1.00
ASAP

Fri

3

Apr

Sat

4

Apr

Sun

5

Apr

Mon

6

Apr

Tue

7

Apr

Wed

8

Apr

Thu

9

Apr

Fri

10

Apr

Sat

11

Apr

Sun

12

Apr

Mon

13

Apr

Tue

14

Apr

Wed

15

Apr

Thu

16

Apr

Fri

17

Apr

Sat

18

Apr

Sun

19

Apr

Mon

20

Apr

Tue

21

Apr

Wed

22

Apr

Thu

23

Apr

Fri

24

Apr

Sat

25

Apr

Sun

26

Apr

Mon

27

Apr

Tue

28

Apr

Wed

29

Apr

Thu

30

Apr

Fri

1

May

By clicking “Get pre-qualified” and/or 'Submit' you are expressly consenting, in writing, to receive telemarketing and other messages, including artificial or prerecorded voices, via automated calls or texts from jumprealty.ca and up.mortgages at the number you provided above. This consent is not required to purchase any good or service. Message and data rates may apply, frequency varies. Text HELP for help or STOP to cancel. More details in Terms of Use and Privacy Policy.

Listing Agency:  FREEMAN REAL ESTATE LTD.

* Data is provided courtesy of PROPTX. The information provided herein must only be used by consumers that have a bona fide interest in the purchase, sale, or lease of real estate and may not be used for any commercial purpose or any other purpose. The information is deemed reliable but is not guaranteed accurate by PROPTX.

Hospital
Parks
Schools
Place of Worship
Please select an amenity above to view a list.

Recommended Properties

Loading...
3200 Dakota Common Unit# B608
Burlington , Ontario
2 1 $2,350
Get more info