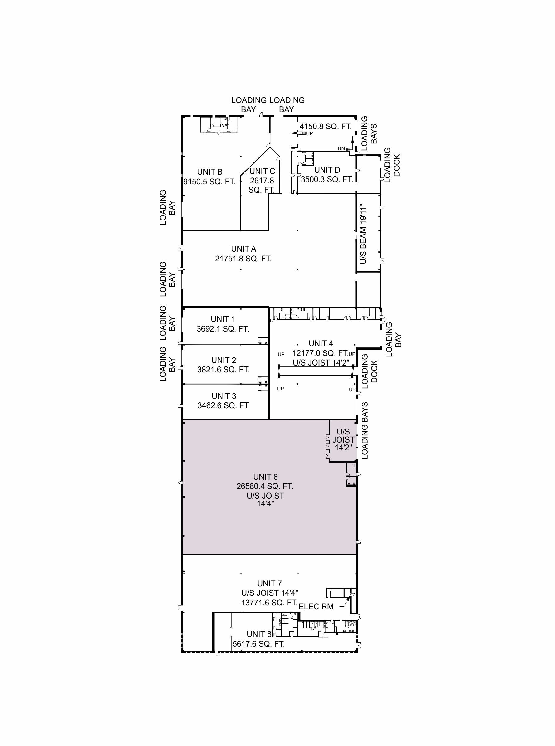
For Lease - 3225 East Bayshore Avenue Unit# 6, Owen Sound, Ontario

Views   1
Time on Jump  93 day
  • Spacious 26,580 sq. ft. M1-zoned industrial space for diverse uses.
  • Open layout with high 14.4 ft ceilings for flexibility.
  • Convenient loading bay access at both ends for easy logistics.
  • Located in a growing industrial area near key shipping companies.
  • On-site shared gym available for tenant use.
26,580 sq. Ft. M1-zoned industrial space ideal for various uses. The unit offers spacious open layout, loading bay access at both ends (no roll-up or dock-level doors; fit-out details available), and high ceilings 14. 4. Located in a thriving industrial area near logistics and shipping companies, ensuring efficient access. The landlord seeks a clean, professional tenant to complement existing businesses. Amenities include a shared gym on-site. Owen sound is a growth area, benefiting from regional projects like the bruce power retrofit. Tenant is responsible for utilities, electrical installation, and metering beyond base building supply. Lease terms and rates are negotiable. Contact the listing broker for details or to arrange a viewing. All information should be verified independently.
Listing IDX11985164
Address3225 East Bayshore Avenue Unit# 6
CityOwen Sound, Ontario
Lease$8
Bath1 Full
StyleIndustrial
Land Size11.87
TypeIndustrial/Commercial
StatusFor Lease
Subtype IndustrialOwnership LeaseholdHeating / Cooling Gas Forced Air Closed
ASAP

Sat

20

Dec

Sun

21

Dec

Mon

22

Dec

Tue

23

Dec

Wed

24

Dec

Thu

25

Dec

Fri

26

Dec

Sat

27

Dec

Sun

28

Dec

Mon

29

Dec

Tue

30

Dec

Wed

31

Dec

Thu

1

Jan

Fri

2

Jan

Sat

3

Jan

Sun

4

Jan

Mon

5

Jan

Tue

6

Jan

Wed

7

Jan

Thu

8

Jan

Fri

9

Jan

Sat

10

Jan

Sun

11

Jan

Mon

12

Jan

Tue

13

Jan

Wed

14

Jan

Thu

15

Jan

Fri

16

Jan

Sat

17

Jan

By clicking “Get pre-qualified” and/or 'Submit' you are expressly consenting, in writing, to receive telemarketing and other messages, including artificial or prerecorded voices, via automated calls or texts from jumprealty.ca and up.mortgages at the number you provided above. This consent is not required to purchase any good or service. Message and data rates may apply, frequency varies. Text HELP for help or STOP to cancel. More details in Terms of Use and Privacy Policy.

Listing Agency:  Royal LePage Locations North
Hospital
Parks
Schools
Place of Worship
Please select an amenity above to view a list.

Recommended Properties

Loading...
3225 East Bayshore Avenue Unit# 6
Owen Sound , Ontario
1 $8
Get more info