For Lease - 325 Hinchey Avenue Unit# B, West Centre Town, Ontario

Views   4
Time on Jump  52 day
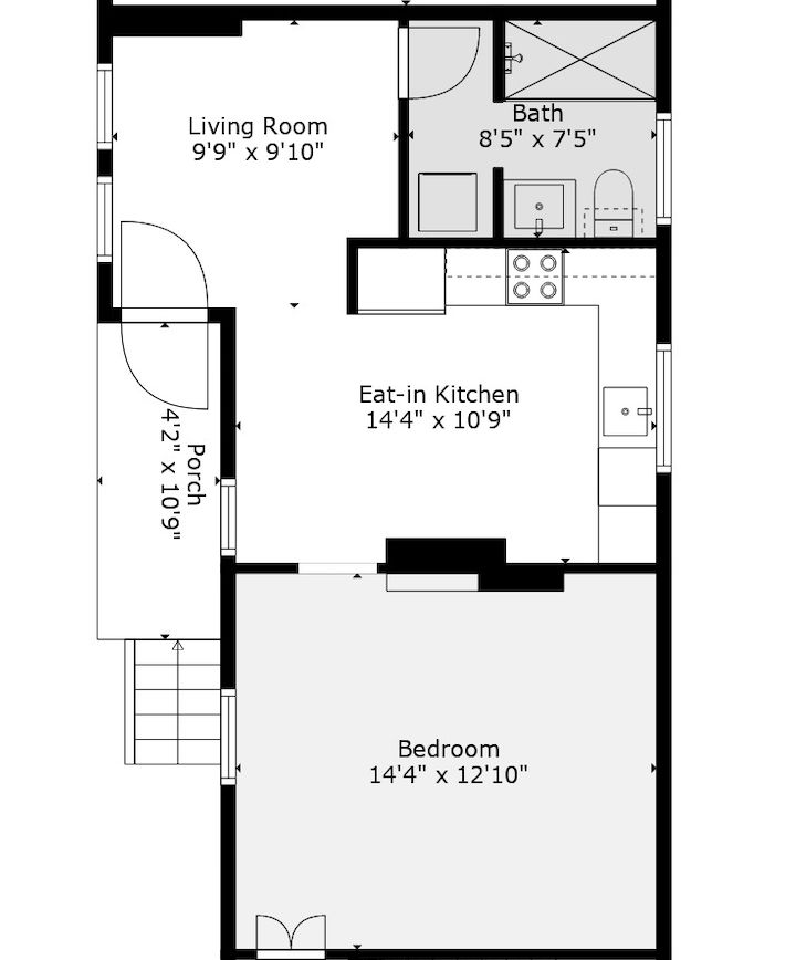
  • Updated one-bedroom apartment in a classic three-unit triplex.
  • Convenient in-suite laundry for easy daily living.
  • Steps from Parkdale Market and trendy boutiques.
  • Short walk to Tunney's Pasture LRT Station for effortless commuting.
  • Secure garage parking space available for an additional fee.
Welcome to 325 hinchey avenue, unit b, a beautifully updated one-bedroom apartment nestled within a classic three-unit triplex. Available for an april 1st move-in, this ground-floor residence has been thoughtfully renovated to offer modern comfort and a stylish aesthetic for those seeking an effortless urban lifestyle in one of ottawa's most sought-after pockets. The unit features the ultimate convenience of in-suite laundry, ensuring your daily routine is as seamless as possible. Located just steps from the iconic parkdale market and the trendy boutiques of wellington street west, you will have the neighborhood's best coffee shops, galleries, and restaurants right at your doorstep. Commuting is effortless with the tunney's pasture lrt station only a short walk away, alongside local favorites like suzyq doughnuts, beyond the pale, and the hintonburg public house. The monthly rent conveniently includes water, and for those with a vehicle, a secure garage parking space is available for an additional monthly fee. Experience the perfect blend of modern design and an unbeatable location in this well-maintained triplex-your gateway to everything the vibrant community of hintonburg has to offer! 24 hr notice on all showings & 24 hr irrevocable on all offers. All offers must include: id(s), proof(s) of income(s), full current credit report(s) from equifax or transunion, and a completed signed rental application. Photos taken prior to current tenant.
Listing IDX12837154
Address325 Hinchey Avenue Unit# B
CityWest Centre Town, Ontario
Lease$1,900
Bed / Bath1 / 1 Full
Style2 1/2 Storey, Triplex
ConstructionBrick
TypeMulti-Family
StatusFor Lease
Subtype TriplexIndoor Features None, In-Suite LaundryInclusions WaterOwnership LeaseholdBasement NoneFoundation StoneHeating / Cooling BaseboardHeating Fuel ElectricSewer Sewer
Parking 1.00
ASAP

Sat

25

Apr

Sun

26

Apr

Mon

27

Apr

Tue

28

Apr

Wed

29

Apr

Thu

30

Apr

Fri

1

May

Sat

2

May

Sun

3

May

Mon

4

May

Tue

5

May

Wed

6

May

Thu

7

May

Fri

8

May

Sat

9

May

Sun

10

May

Mon

11

May

Tue

12

May

Wed

13

May

Thu

14

May

Fri

15

May

Sat

16

May

Sun

17

May

Mon

18

May

Tue

19

May

Wed

20

May

Thu

21

May

Fri

22

May

Sat

23

May

By clicking “Get pre-qualified” and/or 'Submit' you are expressly consenting, in writing, to receive telemarketing and other messages, including artificial or prerecorded voices, via automated calls or texts from jumprealty.ca and up.mortgages at the number you provided above. This consent is not required to purchase any good or service. Message and data rates may apply, frequency varies. Text HELP for help or STOP to cancel. More details in Terms of Use and Privacy Policy.

Listing Agency:  ROYAL LEPAGE TEAM REALTY

* Data is provided courtesy of PROPTX. The information provided herein must only be used by consumers that have a bona fide interest in the purchase, sale, or lease of real estate and may not be used for any commercial purpose or any other purpose. The information is deemed reliable but is not guaranteed accurate by PROPTX.

Hospital
Parks
Schools
Place of Worship
Please select an amenity above to view a list.

Recommended Properties

Loading...
325 Hinchey Avenue Unit# B
West Centre Town , Ontario
1 1 $1,900
Get more info