For Sale - 326 Lynch Road, Tweed, Ontario

Est payment $1,239/mo
Views   1
Time on Jump  89 day
  • Two-storey brick property with great potential for customization.
  • Open concept design perfect for family gatherings and entertaining.
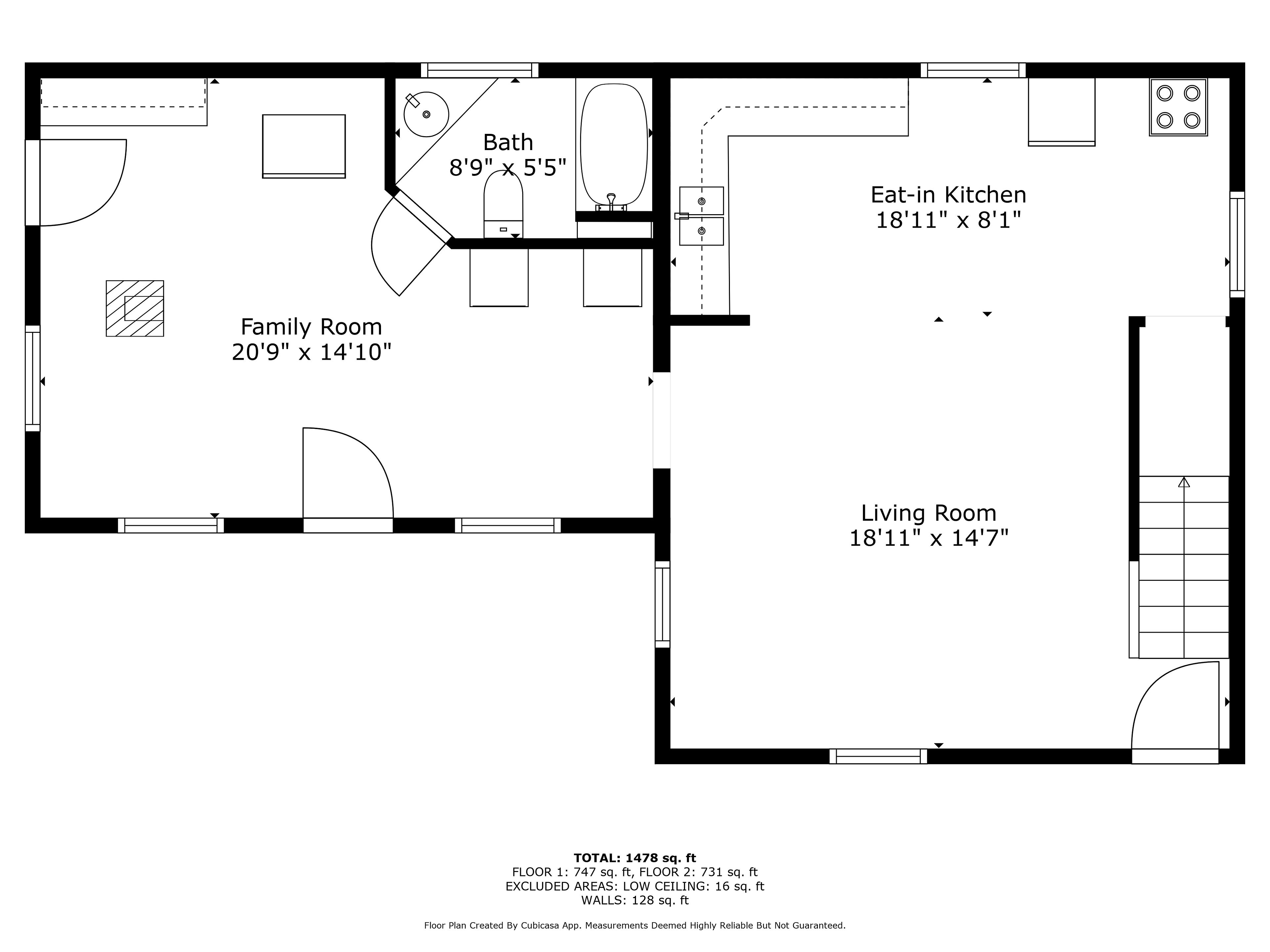
  • Cozy family room with a wood stove for chilly evenings.
  • Generous 1.2-acre lot offers plenty of outdoor space and activities.
  • Durable steel roof and reliable spring-fed well for low maintenance.



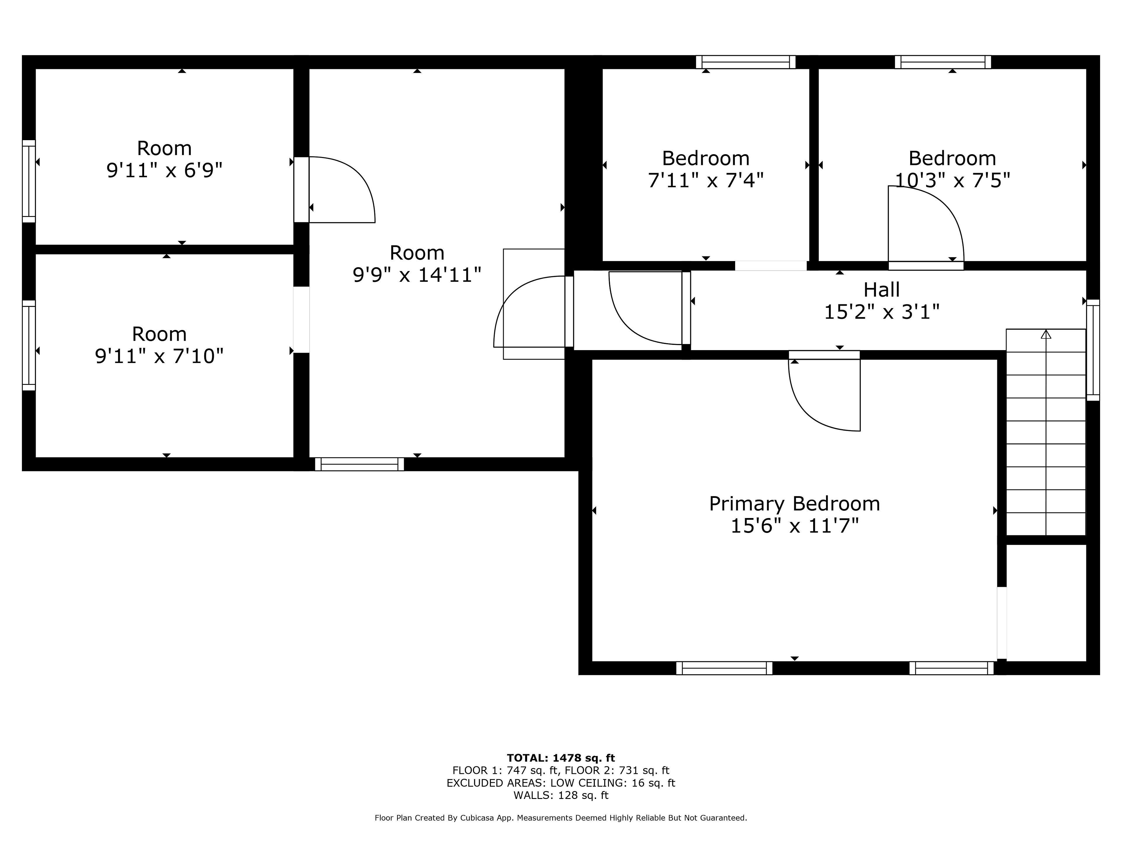
Envision the home you want as you walk through this two-storey brick property, where you can make it your own - come see the potential and discover what you can do with this unique space! This home offers a spacious living environment with an open concept design. The living room and kitchen create a welcoming space for family gatherings and entertaining. The family room can be a cozy space with the wood stove for warmth and comfort, perfect for chilly evenings. The home is serviced by furnace oil, though its age remains unknown; however, it has been regularly maintained. A drilled well, reportedly spring-fed, provides a reliable water source, and the durable steel roof ensures longevity and low maintenance. Situated on a generous 1. 2-acre lot, this property offers ample outdoor space for various activities and the potential for personal touches. The property is being sold as-is, with the seller making no representations or warranties, allowing the new owners the flexibility to make any desired updates or renovations.
Listing IDX12200430
Address326 Lynch Road
CityTweed, Ontario
Price$249,900
Bed / Bath3 / 1 Full
Style2-Storey, Detached
ConstructionBrick, Insulbrick
Land Size1.22
TypeResidential
StatusFor Sale
Subtype DetachedIndoor Features NoneOutdoor Features LandscapedAmenities Cul de Sac/Dead End, Fenced Yard, School Bus Route, Wooded/TreedOwnership FreeholdViews Forest, Pasture, Trees/WoodsAppliances Doors Swing InBasement Crawl Space, Walk-OutFoundation Concrete, StoneHeating / Cooling Forced AirHeating Fuel OilSewer Septic
Parking 3.00
ASAP

Tue

16

Dec

Wed

17

Dec

Thu

18

Dec

Fri

19

Dec

Sat

20

Dec

Sun

21

Dec

Mon

22

Dec

Tue

23

Dec

Wed

24

Dec

Thu

25

Dec

Fri

26

Dec

Sat

27

Dec

Sun

28

Dec

Mon

29

Dec

Tue

30

Dec

Wed

31

Dec

Thu

1

Jan

Fri

2

Jan

Sat

3

Jan

Sun

4

Jan

Mon

5

Jan

Tue

6

Jan

Wed

7

Jan

Thu

8

Jan

Fri

9

Jan

Sat

10

Jan

Sun

11

Jan

Mon

12

Jan

Tue

13

Jan

By clicking “Get pre-qualified” and/or 'Submit' you are expressly consenting, in writing, to receive telemarketing and other messages, including artificial or prerecorded voices, via automated calls or texts from jumprealty.ca and up.mortgages at the number you provided above. This consent is not required to purchase any good or service. Message and data rates may apply, frequency varies. Text HELP for help or STOP to cancel. More details in Terms of Use and Privacy Policy.

Listing Agency:  EXIT REALTY GROUP
Hospital
Parks
Schools
Place of Worship
Please select an amenity above to view a list.

Recommended Properties

Loading...
326 Lynch Road
Tweed , Ontario
3 1 $249,900
Get more info