For Lease - 344 Richmond Street, London East, Ontario

Views   1
Time on Jump  63 day
  • Prime location with high visibility on busy Richmond Street.
  • Spacious 1,019 sq. ft. main floor unit for various business types.
  • Large front windows ensure plenty of natural light and exposure.
  • One on-site parking space available at the rear of the building.
  • Zoned for diverse uses including retail, office, and restaurants.
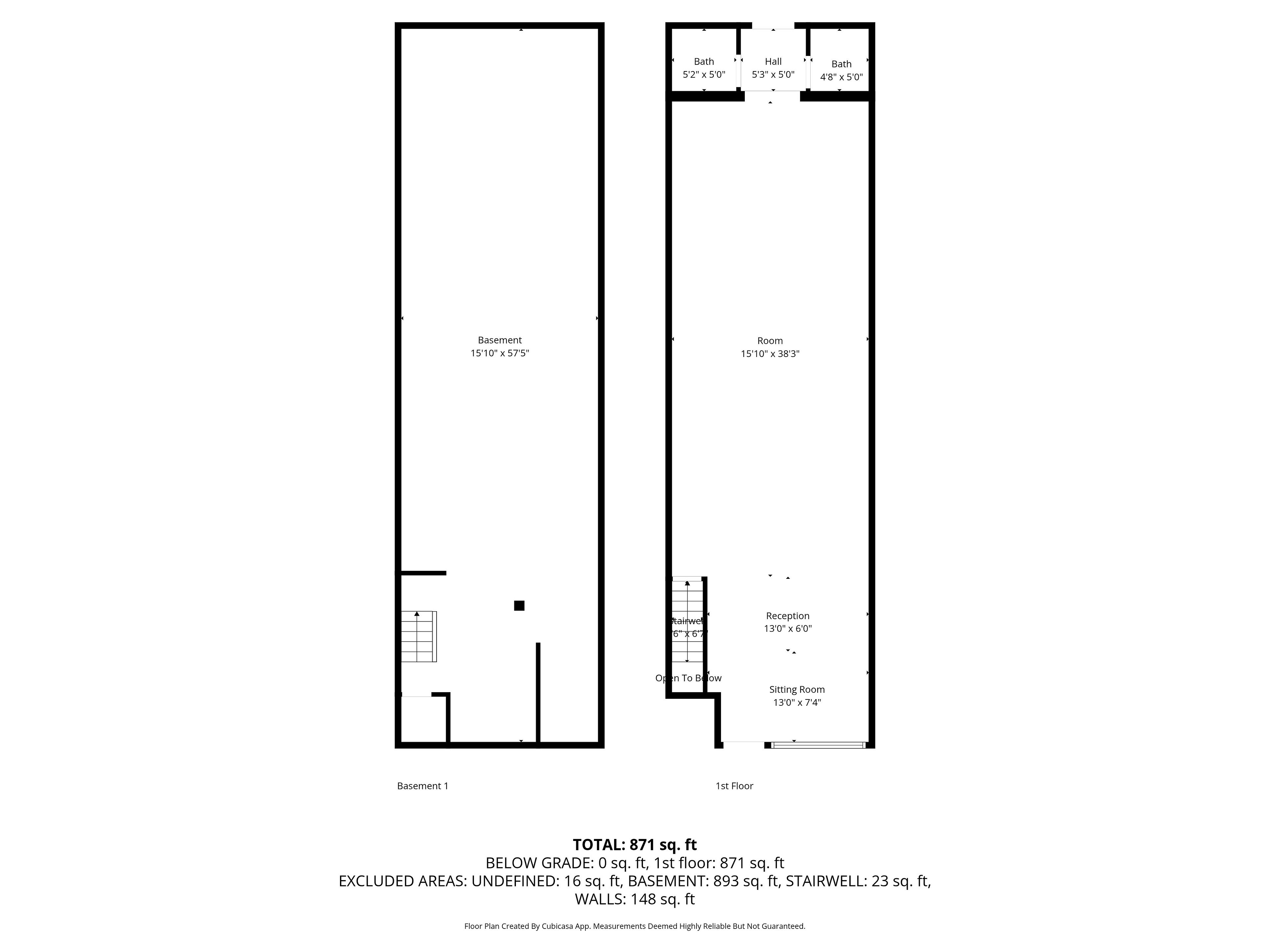
Prime retail / office / commercial space available for lease on richmond street, just south of king street. This well-finished main floor unit offers excellent visibility and frontage along high-traffic richmond street. The space consists of approximately 1,019 sq. Ft. On the main floor and includes one on-site parking space located at the rear of the building. Large front windows provide strong natural light and street exposure. The building is well maintained. Zoned da1, permitting a wide range of uses including retail, office, personal service, studio, bake shop, and restaurant uses, among others. Electricity is separately metered in the tenant's name, and the tenant is responsible for 20% of the water bill and 20% of the heat bill. The space is offered at $15 psf net, with additional rent of $5 psf, resulting in an approximate monthly rent of $1,698 plus utilities and hst.
Listing IDX12724672
Address344 Richmond Street
CityLondon East, Ontario
Lease$15
StyleCommercial Retail
TypeIndustrial/Commercial
StatusFor Lease
Subtype Commercial RetailOwnership LeaseholdHeating / Cooling RadiantSewer Sanitary
ASAP

Sun

29

Mar

Mon

30

Mar

Tue

31

Mar

Wed

1

Apr

Thu

2

Apr

Fri

3

Apr

Sat

4

Apr

Sun

5

Apr

Mon

6

Apr

Tue

7

Apr

Wed

8

Apr

Thu

9

Apr

Fri

10

Apr

Sat

11

Apr

Sun

12

Apr

Mon

13

Apr

Tue

14

Apr

Wed

15

Apr

Thu

16

Apr

Fri

17

Apr

Sat

18

Apr

Sun

19

Apr

Mon

20

Apr

Tue

21

Apr

Wed

22

Apr

Thu

23

Apr

Fri

24

Apr

Sat

25

Apr

Sun

26

Apr

By clicking “Get pre-qualified” and/or 'Submit' you are expressly consenting, in writing, to receive telemarketing and other messages, including artificial or prerecorded voices, via automated calls or texts from jumprealty.ca and up.mortgages at the number you provided above. This consent is not required to purchase any good or service. Message and data rates may apply, frequency varies. Text HELP for help or STOP to cancel. More details in Terms of Use and Privacy Policy.

Listing Agency:  GOLD EMPIRE REALTY INC.

* Data is provided courtesy of PROPTX. The information provided herein must only be used by consumers that have a bona fide interest in the purchase, sale, or lease of real estate and may not be used for any commercial purpose or any other purpose. The information is deemed reliable but is not guaranteed accurate by PROPTX.

Hospital
Parks
Schools
Place of Worship
Please select an amenity above to view a list.

Recommended Properties

Loading...
344 Richmond Street
London East , Ontario
$15
Get more info