For Lease - 351 Parkhurst Square Unit# 5, Brampton, Ontario

Views   3
Time on Jump  51 day
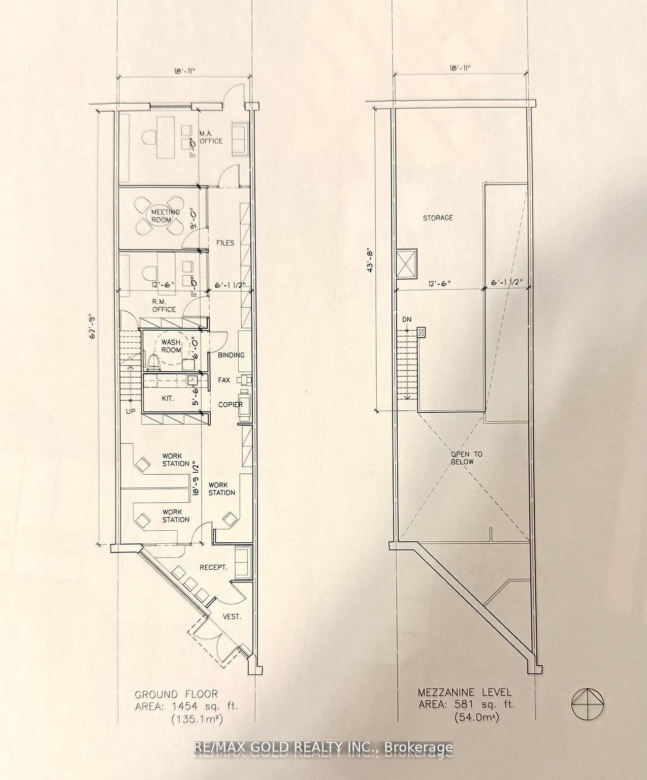
  • Ground floor professional office unit available for immediate use.
  • Conveniently located near major highways and the airport.
  • Approximately 1,454 SQ.FT with bonus 580 SQ.FT mezzanine office space.
  • Ample parking available for clients and staff convenience.
  • Unit can be divided into two separate spaces for flexibility.
Available immediately!! Professional office unit on the ground floor. Facing steeles ave., very convenient location near 407/steeles ave and airport road. Excellent for retail, restaurant or immigration office, lawyers office, dentist practice, professional office, pharmacy & doctors office, salon and spa, mortgage offices & real estate brokerage. Ample parking. Approx. 1,454 sq. Ft on main floor with bonus (separate approx. 580 square feet finished office mezzanine for free!) and back entrance. Next to major new developments. Unit can be divided into 2 units.
Listing IDW12862700
Address351 Parkhurst Square Unit# 5
CityBrampton, Ontario
Lease$4,799
Bath1 Full
StyleCommercial Retail
TypeIndustrial/Commercial
StatusFor Lease
Subtype Commercial RetailOwnership LeaseholdHeating / Cooling Gas Forced Air Open
ASAP

Fri

1

May

Sat

2

May

Sun

3

May

Mon

4

May

Tue

5

May

Wed

6

May

Thu

7

May

Fri

8

May

Sat

9

May

Sun

10

May

Mon

11

May

Tue

12

May

Wed

13

May

Thu

14

May

Fri

15

May

Sat

16

May

Sun

17

May

Mon

18

May

Tue

19

May

Wed

20

May

Thu

21

May

Fri

22

May

Sat

23

May

Sun

24

May

Mon

25

May

Tue

26

May

Wed

27

May

Thu

28

May

Fri

29

May

By clicking “Get pre-qualified” and/or 'Submit' you are expressly consenting, in writing, to receive telemarketing and other messages, including artificial or prerecorded voices, via automated calls or texts from jumprealty.ca and up.mortgages at the number you provided above. This consent is not required to purchase any good or service. Message and data rates may apply, frequency varies. Text HELP for help or STOP to cancel. More details in Terms of Use and Privacy Policy.

Listing Agency:  RE/MAX GOLD REALTY INC.

* Data is provided courtesy of PROPTX. The information provided herein must only be used by consumers that have a bona fide interest in the purchase, sale, or lease of real estate and may not be used for any commercial purpose or any other purpose. The information is deemed reliable but is not guaranteed accurate by PROPTX.

Hospital
Parks
Schools
Place of Worship
Please select an amenity above to view a list.

Recommended Properties

Loading...
351 Parkhurst Square Unit# 5
Brampton , Ontario
1 $4,799
Get more info