For Sale - 351219 SEVENTEENTH Line, East Garafraxa, Ontario

Est payment $8,956/mo
Views   1
Time on Jump  1 days
  • Nearly 50 acres with barns, fields, and a private pond for winter skating.
  • Spacious home with luxurious primary bedroom and newly renovated bathrooms.
  • Eat-in kitchen with center island and outdoor wrap-around patio for relaxing.
  • Includes an 8 stall horse barn and workshop for animal lovers or hobbyists.
  • Perfect for organic gardening with vast gardens and fruit trees on-site.



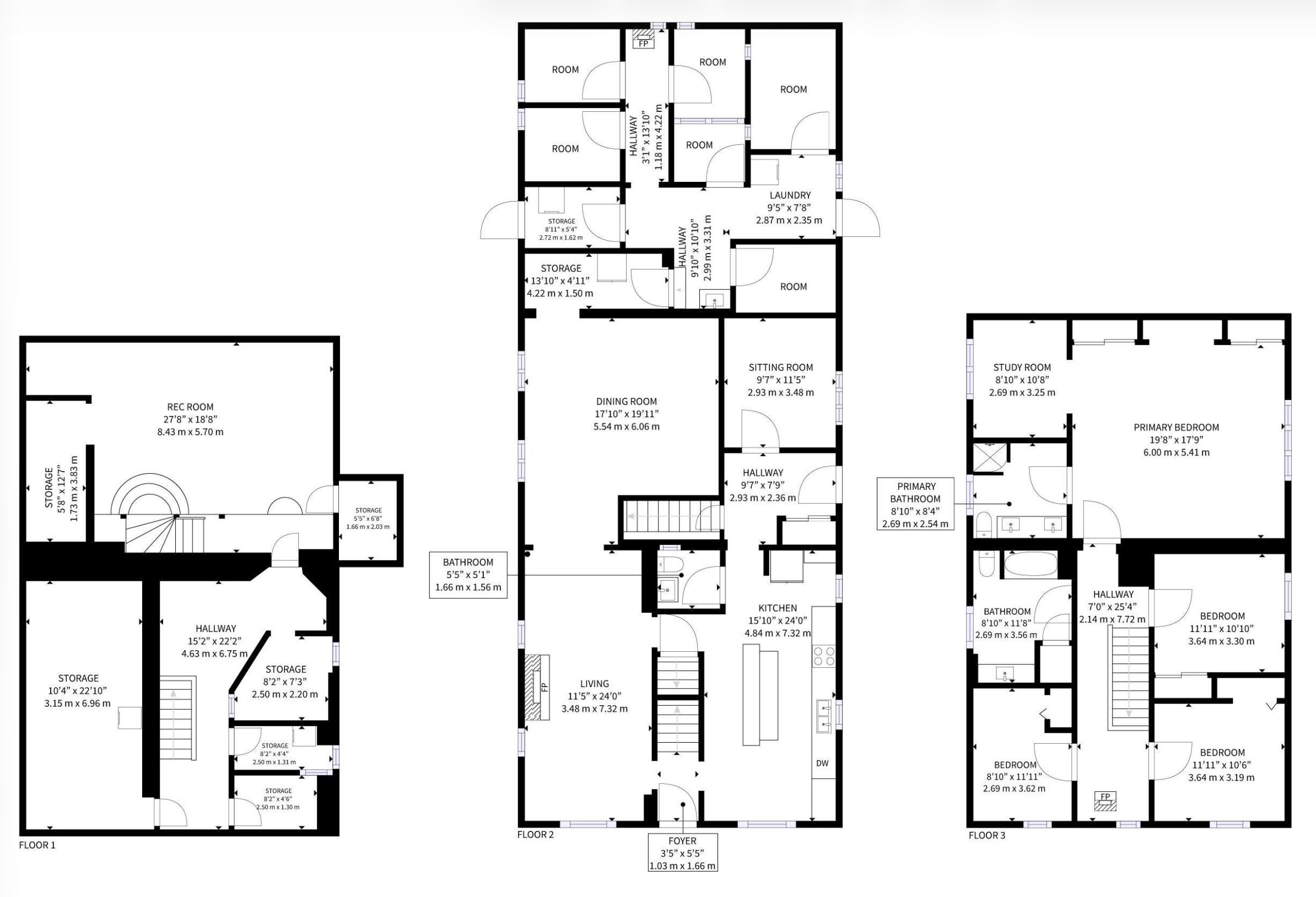
Peace & serenity. What an incredible opportunity to own your piece of heaven. Nearly 50 acres of land w/ barns, farm fields, forest & your private pond that turns into skating rink in the winter. Conveniently located 10 minutes to orangeville & only 50min to to & pearson airport. A legacy property with a well kept home with spacious rooms, luxurious primary bdrm w/ ensuite wsrm. Both 2nd fl washrooms fully reno'd 2026. Eat-in kitchen w/ centre island & outdoor wrap around patio to enjoy the beautiful countryside. Cozy up to a wood burning fireplace on an autumn night & enjoy an authentic winter spa experience with natural wood heated sauna & hot bath. 8 stall horse barn & 2 level 19th century hand built hay/2 animal barns, workshop come included. Grow your own organic veggies & fruits in the vast outdoor gardens, 5 fruit trees. High efficiency alternative solar heating of home & domestic hot water & high 2022 high efficiency wood stoves. Property located on school bus route. Minutes to all conveniences orangeville has to offer, restaurants, shops & hospital. Looking for turnkey/side business? This property is zoned for many livestock operations. Horses, chickens, cows & the lucrative cat/dog hotel & breading.
Listing IDX12996052
Address351219 SEVENTEENTH Line
CityEast Garafraxa, Ontario
Price$1,865,000
Bed / Bath5 / 3 Full
Style2-Storey, Detached
ConstructionBrick, Stone
TypeResidential
StatusFor Sale
Subtype DetachedIndoor Features Solar Owned, Storage, Water Heater, Water Purifier, Water Softener, Water Heater Owned, Central VacuumOutdoor Features Deck, Hot Tub, Private Pond, Landscaped, Stalls, Tractor Access, Barn Hydro, Dry StorageOwnership FreeholdViews Clear, Garden, Pond, Trees/Woods, PastureBasement Partially FinishedFoundation Block, Concrete BlockHeating / Cooling Forced AirHeating Fuel PropaneSewer Septic
Parking 17.00
ASAP

Wed

15

Apr

Thu

16

Apr

Fri

17

Apr

Sat

18

Apr

Sun

19

Apr

Mon

20

Apr

Tue

21

Apr

Wed

22

Apr

Thu

23

Apr

Fri

24

Apr

Sat

25

Apr

Sun

26

Apr

Mon

27

Apr

Tue

28

Apr

Wed

29

Apr

Thu

30

Apr

Fri

1

May

Sat

2

May

Sun

3

May

Mon

4

May

Tue

5

May

Wed

6

May

Thu

7

May

Fri

8

May

Sat

9

May

Sun

10

May

Mon

11

May

Tue

12

May

Wed

13

May

By clicking “Get pre-qualified” and/or 'Submit' you are expressly consenting, in writing, to receive telemarketing and other messages, including artificial or prerecorded voices, via automated calls or texts from jumprealty.ca and up.mortgages at the number you provided above. This consent is not required to purchase any good or service. Message and data rates may apply, frequency varies. Text HELP for help or STOP to cancel. More details in Terms of Use and Privacy Policy.

Listing Agency:  EXP REALTY

* Data is provided courtesy of PROPTX. The information provided herein must only be used by consumers that have a bona fide interest in the purchase, sale, or lease of real estate and may not be used for any commercial purpose or any other purpose. The information is deemed reliable but is not guaranteed accurate by PROPTX.

Hospital
Parks
Schools
Place of Worship
Please select an amenity above to view a list.

Recommended Properties

Loading...
351219 Seventeenth Line
East Garafraxa , Ontario
5 3 $1,865,000
Get more info