For Sale - 37 Main Street, Markham, Ontario

Est payment $20,072/mo
Views   2
Time on Jump  80 day
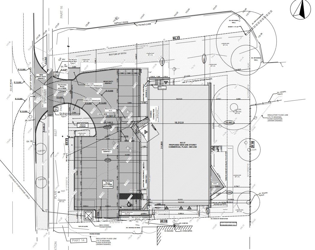
  • Rarely available commercial land in a prime location.
  • 0.6 acres ready for development in Unionville.
  • Approved plans for a two-story plaza building.
  • Includes 18 parking spots for convenience.
  • All necessary permits and design documents are provided.



Rarely offer vacant commercial land (0. 6 acres) in prime unionville community. A 2 story plaza building with 18 parking spots has been approved. All approved permit drawings, consultation report and design are included.
Listing IDN12687482
Address37 Main Street
CityMarkham, Ontario
Price$4,180,000
StyleLand
TypeVacant Land
StatusFor Sale
Subtype LandSewer None
ASAP

Fri

3

Apr

Sat

4

Apr

Sun

5

Apr

Mon

6

Apr

Tue

7

Apr

Wed

8

Apr

Thu

9

Apr

Fri

10

Apr

Sat

11

Apr

Sun

12

Apr

Mon

13

Apr

Tue

14

Apr

Wed

15

Apr

Thu

16

Apr

Fri

17

Apr

Sat

18

Apr

Sun

19

Apr

Mon

20

Apr

Tue

21

Apr

Wed

22

Apr

Thu

23

Apr

Fri

24

Apr

Sat

25

Apr

Sun

26

Apr

Mon

27

Apr

Tue

28

Apr

Wed

29

Apr

Thu

30

Apr

Fri

1

May

By clicking “Get pre-qualified” and/or 'Submit' you are expressly consenting, in writing, to receive telemarketing and other messages, including artificial or prerecorded voices, via automated calls or texts from jumprealty.ca and up.mortgages at the number you provided above. This consent is not required to purchase any good or service. Message and data rates may apply, frequency varies. Text HELP for help or STOP to cancel. More details in Terms of Use and Privacy Policy.

Listing Agency:  DREAM HOME REALTY INC.

* Data is provided courtesy of PROPTX. The information provided herein must only be used by consumers that have a bona fide interest in the purchase, sale, or lease of real estate and may not be used for any commercial purpose or any other purpose. The information is deemed reliable but is not guaranteed accurate by PROPTX.

Hospital
Parks
Schools
Place of Worship
Please select an amenity above to view a list.

Recommended Properties

Loading...
37 Main Street
Markham , Ontario
$4,180,000
Get more info