For Lease - 375-377 Queen Street, Peterborough, Ontario

Views   1
Time on Jump  125 day
  • Prime corner retail/office space with 1,343 SF in downtown Peterborough.
  • High visibility location near popular East City District and amenities.
  • Zoned for various uses, including restaurants and medical offices.
  • Ample parking available, attracting steady foot and vehicle traffic.
  • Steps from parks and waterfront, enhancing appeal to locals and visitors.
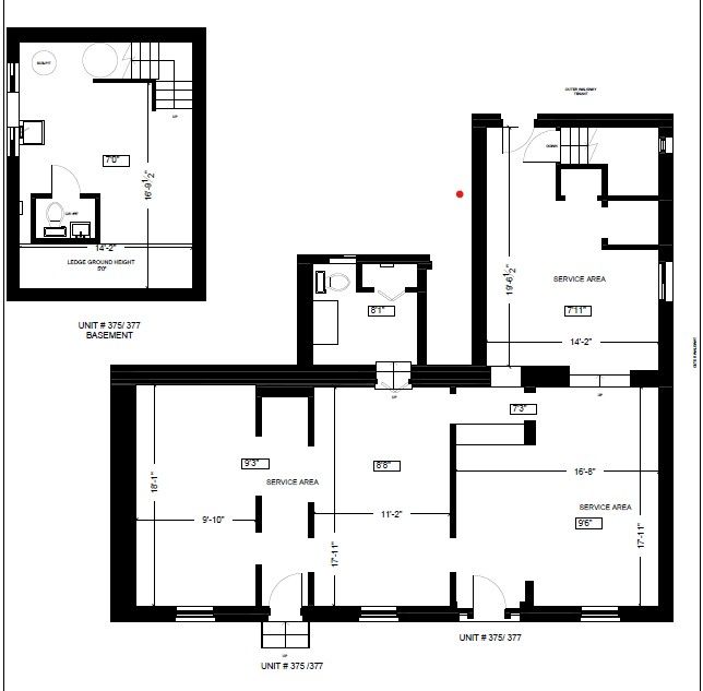
This prime and highly functional corner retail/office space offers 1,343 sf. Located at the centre of downtown peterborough and very close to the desirable east city district in this high-visibility location. The property is zoned for various retail and office uses including restaurants and medical uses. The property has ample parking available and positioned directly across from peterborough square mall and galaxy cinemas, the property benefits from steady pedestrian and vehicle traffic. Just steps from millennium park and the scenic waterfront marina, it provides the perfect blend of convenience and natural charm to attract both locals and visitors. Surrounded by restaurants, shops, and major amenities, this vibrant area offers an ideal opportunity for any retail or service-based business looking to establish itself and thrive in a growing commercial district.
Listing IDX12586172
Address375-377 Queen Street
CityPeterborough, Ontario
Lease$17
StyleOffice
TypeIndustrial/Commercial
StatusFor Lease
Subtype OfficeOwnership LeaseholdHeating / Cooling Gas Forced Air OpenSewer Sanitary+Storm
ASAP

Sat

4

Apr

Sun

5

Apr

Mon

6

Apr

Tue

7

Apr

Wed

8

Apr

Thu

9

Apr

Fri

10

Apr

Sat

11

Apr

Sun

12

Apr

Mon

13

Apr

Tue

14

Apr

Wed

15

Apr

Thu

16

Apr

Fri

17

Apr

Sat

18

Apr

Sun

19

Apr

Mon

20

Apr

Tue

21

Apr

Wed

22

Apr

Thu

23

Apr

Fri

24

Apr

Sat

25

Apr

Sun

26

Apr

Mon

27

Apr

Tue

28

Apr

Wed

29

Apr

Thu

30

Apr

Fri

1

May

Sat

2

May

By clicking “Get pre-qualified” and/or 'Submit' you are expressly consenting, in writing, to receive telemarketing and other messages, including artificial or prerecorded voices, via automated calls or texts from jumprealty.ca and up.mortgages at the number you provided above. This consent is not required to purchase any good or service. Message and data rates may apply, frequency varies. Text HELP for help or STOP to cancel. More details in Terms of Use and Privacy Policy.

Listing Agency:  REMAX YOUR COMMUNITY REALTY

* Data is provided courtesy of PROPTX. The information provided herein must only be used by consumers that have a bona fide interest in the purchase, sale, or lease of real estate and may not be used for any commercial purpose or any other purpose. The information is deemed reliable but is not guaranteed accurate by PROPTX.

Hospital
Parks
Schools
Place of Worship
Please select an amenity above to view a list.

Recommended Properties

Loading...
375-377 Queen Street
Peterborough , Ontario
$17
Get more info