For Lease - 3800 Steeles Avenue Unit# 100E, Vaughan, Ontario

Views   2
Time on Jump  64 day
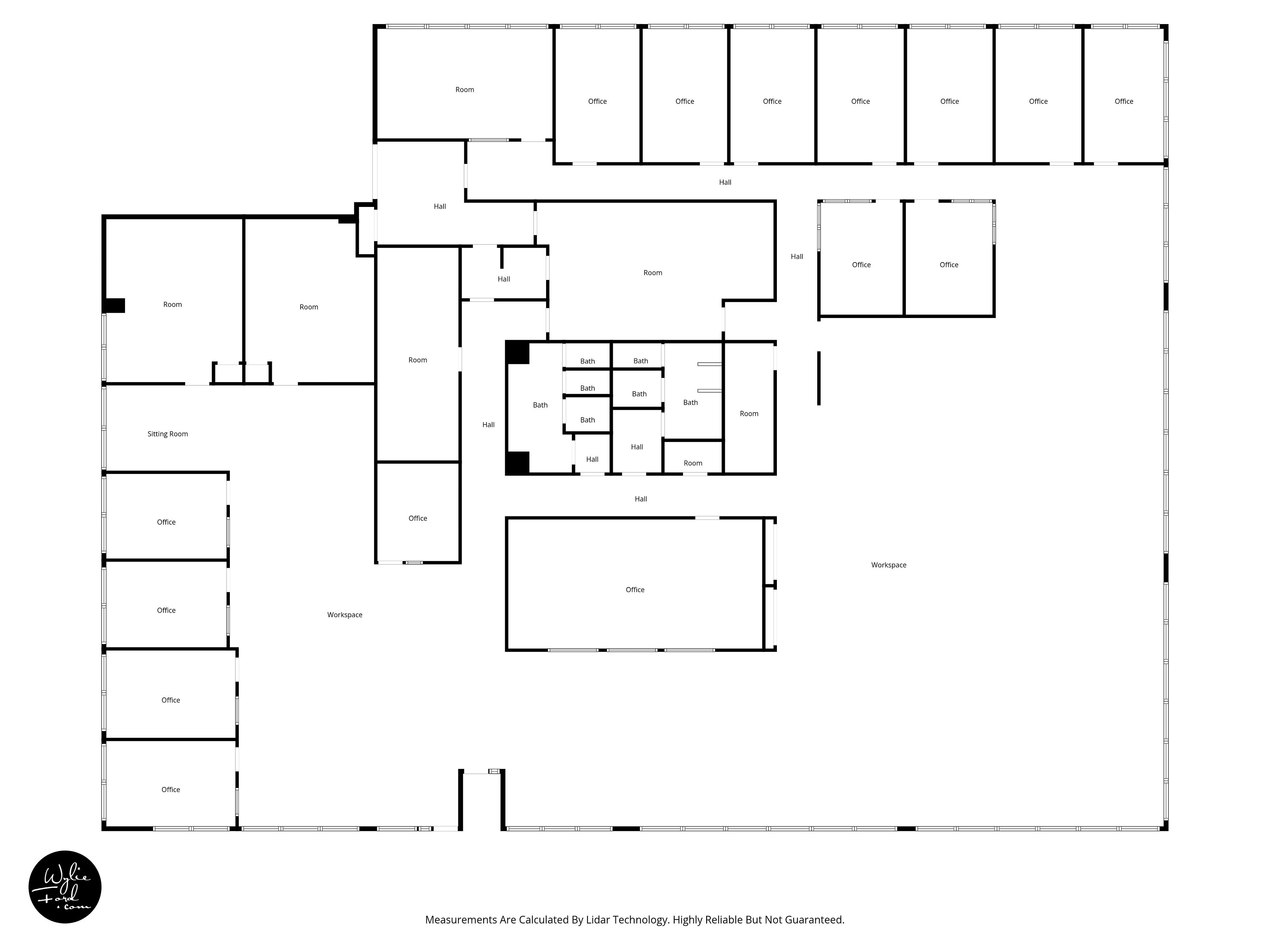
  • Turnkey office space with 10,380 square feet ready for immediate use.
  • Separate foyer with a welcoming reception area for guests and clients.
  • Flexible layout with private offices, boardrooms, and open collaborative areas.
  • Located at a major intersection with excellent public transit access.
  • Includes utilities and in-suite cleaning for operational convenience.
An exceptional opportunity to lease 10,380 square feet of turnkey professional office space in a well-managed, meticulously maintained office building. This expansive suite features a separate foyer entrance, welcoming reception area, multiple private executive offices, boardrooms, and a fully equipped lunchroom/kitchen. The layout also includes private in-suite washrooms and a large open office area ideal for cubicle configurations or collaborative workspaces, offering flexibility to accommodate a variety of professional uses. The building is professionally operated and maintained to a high standard. Tmi includes utilities and in-suite office cleaning, providing cost certainty and operational convenience. Strategically located at the major intersection of steeles avenue and weston road, the property offers excellent accessibility, with public transit at the doorstep and convenient access to subway connections, making commuting easy for both staff and clients. Ideal for professional, corporate, or institutional users seeking a prominent, move-in-ready office location.
Listing IDN12798762
Address3800 Steeles Avenue Unit# 100E
CityVaughan, Ontario
Lease$13
StyleOffice
TypeIndustrial/Commercial
StatusFor Lease
Subtype OfficeCommunity Features Major Highway, Public TransitOwnership LeaseholdHeating / Cooling Gas Forced Air Open
ASAP

Sat

25

Apr

Sun

26

Apr

Mon

27

Apr

Tue

28

Apr

Wed

29

Apr

Thu

30

Apr

Fri

1

May

Sat

2

May

Sun

3

May

Mon

4

May

Tue

5

May

Wed

6

May

Thu

7

May

Fri

8

May

Sat

9

May

Sun

10

May

Mon

11

May

Tue

12

May

Wed

13

May

Thu

14

May

Fri

15

May

Sat

16

May

Sun

17

May

Mon

18

May

Tue

19

May

Wed

20

May

Thu

21

May

Fri

22

May

Sat

23

May

By clicking “Get pre-qualified” and/or 'Submit' you are expressly consenting, in writing, to receive telemarketing and other messages, including artificial or prerecorded voices, via automated calls or texts from jumprealty.ca and up.mortgages at the number you provided above. This consent is not required to purchase any good or service. Message and data rates may apply, frequency varies. Text HELP for help or STOP to cancel. More details in Terms of Use and Privacy Policy.

Listing Agency:  TRANSACT REALTY INC.

* Data is provided courtesy of PROPTX. The information provided herein must only be used by consumers that have a bona fide interest in the purchase, sale, or lease of real estate and may not be used for any commercial purpose or any other purpose. The information is deemed reliable but is not guaranteed accurate by PROPTX.

Hospital
Parks
Schools
Place of Worship
Please select an amenity above to view a list.

Recommended Properties

Loading...
3800 Steeles Avenue Unit# 100e
Vaughan , Ontario
$13
Get more info