For Sale - 39 Mary Street Unit# 1601, Barrie, Ontario

Est payment $3,025/mo
Views   1
Time on Jump  1 days
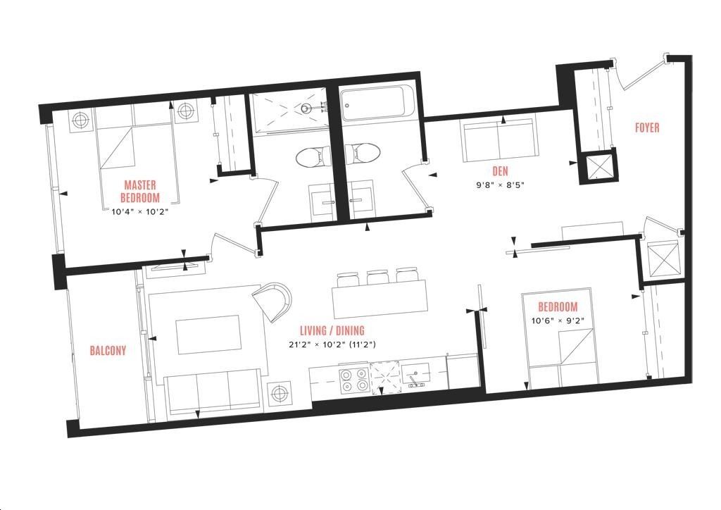
  • Modern 2+1 bedroom unit with open-concept living and floor-to-ceiling windows.
  • Versatile den suitable for office, guest room, or reading nook.
  • Stylish kitchen featuring integrated appliances and quartz countertops.
  • Private balcony with beautiful views of the city and lake.
  • Access to amenities like gym, rooftop terrace, and 24/7 concierge service.



Welcome to debut condos! Downtown barrie's premier address just steps from the waterfront! This bright and modern 2+1 bedroom, 824 sq ft unit offers functional space with open-concept living, floor-to-ceiling windows, and sleek contemporary finishes throughout. The versatile den is perfect for a home office, guest room, or cozy reading nook. Enjoy a thoughtfully designed kitchen with integrated appliances, quartz countertops, and stylish cabinetry. Step out onto your private balcony and take in beautiful views of the city and lake beyond. With underground parking, 24/7 concierge service, and resort-style amenities; including a rooftop terrace, gym, and residents lounge, this urban escape checks every box. Walking distance to shops, cafes, the go station, and barrie's vibrant waterfront trails.
Listing IDS13018518
Address39 Mary Street Unit# 1601
CityBarrie, Ontario
Price$629,999
Bed / Bath3 / 2 Full
Style1 Storey/Apt, Condo Apartment
ConstructionConcrete Block
TypeCondominium
StatusFor Sale
Subtype Condo ApartmentIndoor Features Built-In Oven, Carpet Free, Countertop Range, In-Suite LaundryOutdoor Features Controlled EntryAmenities Beach, Waterfront, Public Transit, Marina, Clear ViewViews City, Marina, Water, Downtown, Trees/WoodsWaterfront IndirectBasement NoneHeating / Cooling Forced AirHeating Fuel Gas
Parking 1.00
ASAP

Thu

23

Apr

Fri

24

Apr

Sat

25

Apr

Sun

26

Apr

Mon

27

Apr

Tue

28

Apr

Wed

29

Apr

Thu

30

Apr

Fri

1

May

Sat

2

May

Sun

3

May

Mon

4

May

Tue

5

May

Wed

6

May

Thu

7

May

Fri

8

May

Sat

9

May

Sun

10

May

Mon

11

May

Tue

12

May

Wed

13

May

Thu

14

May

Fri

15

May

Sat

16

May

Sun

17

May

Mon

18

May

Tue

19

May

Wed

20

May

Thu

21

May

By clicking “Get pre-qualified” and/or 'Submit' you are expressly consenting, in writing, to receive telemarketing and other messages, including artificial or prerecorded voices, via automated calls or texts from jumprealty.ca and up.mortgages at the number you provided above. This consent is not required to purchase any good or service. Message and data rates may apply, frequency varies. Text HELP for help or STOP to cancel. More details in Terms of Use and Privacy Policy.

Listing Agency:  RE/MAX HALLMARK CHAY REALTY

* Data is provided courtesy of PROPTX. The information provided herein must only be used by consumers that have a bona fide interest in the purchase, sale, or lease of real estate and may not be used for any commercial purpose or any other purpose. The information is deemed reliable but is not guaranteed accurate by PROPTX.

Hospital
Parks
Schools
Place of Worship
Please select an amenity above to view a list.

Recommended Properties

Loading...
39 Mary Street Unit# 1601
Barrie , Ontario
3 2 $629,999
Get more info