For Lease - 390 Davis Drive Unit# 303, Newmarket, Ontario

Views   2
Time on Jump  6 day
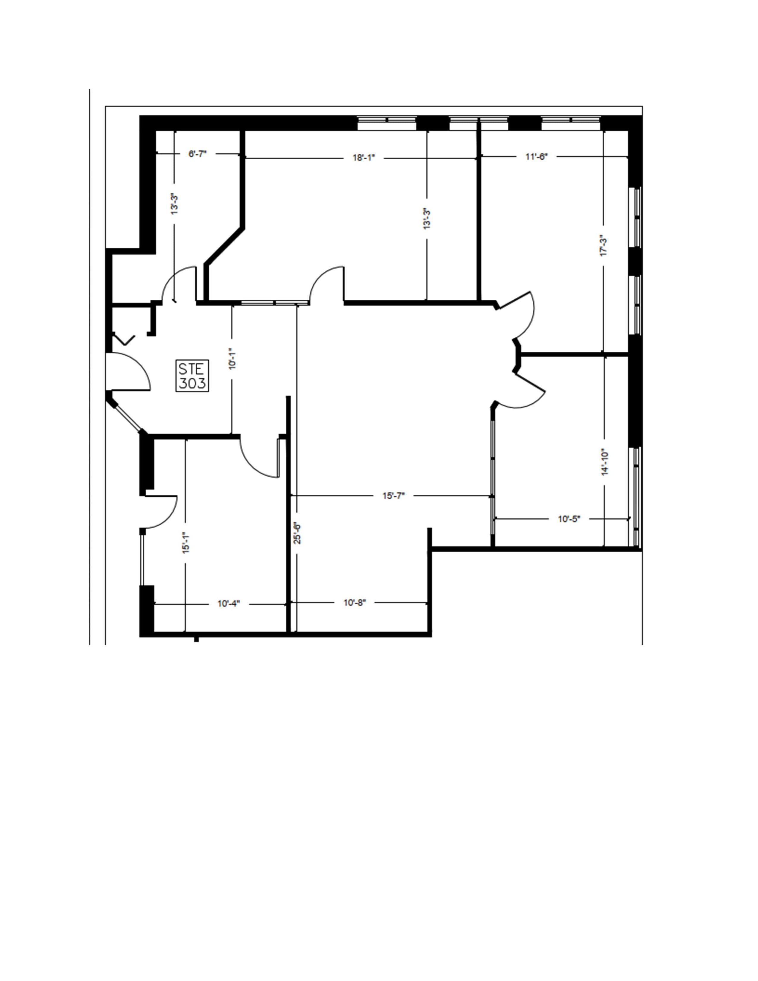
  • Spacious office suite with 1,701 sq.ft. for various professional uses.
  • Layout includes three private offices and a large boardroom.
  • Open-concept bullpen offers plenty of space for workstations.
  • Convenient location with great access to public transit and highways.
  • Available immediately in a professionally managed building.
Discover this well-appointed office suite in a professionally managed building at the prime intersection of davis drive & main street. Offering 1,701 sq. Ft. Of rentable area, unit 303 is ideal for a range of professional uses. The layout includes three private offices, a spacious boardroom, a kitchenette with a storage area, a large open-concept bullpen with ample room for workstations, and a welcoming reception area to greet clients. Located on the third floor, this unit benefits from shared men's and women's washrooms conveniently located on the same level. The building boasts excellent access to public transit, including the go train, and major highways, making commuting seamless for both clients and staff. Additional rent (tmo): includes taxes, maintenance, operating costs, and tenant utilities (heat & hydro). Take advantage of this opportunity to position your business in one of newmarket's most accessible and professional office settings. Available immediately.
Listing IDN12984344
Address390 Davis Drive Unit# 303
CityNewmarket, Ontario
Lease$16
StyleOffice
TypeIndustrial/Commercial
StatusFor Lease
Subtype OfficeOwnership LeaseholdHeating / Cooling Gas Forced Air ClosedSewer Sanitary+Storm
ASAP

Sat

18

Apr

Sun

19

Apr

Mon

20

Apr

Tue

21

Apr

Wed

22

Apr

Thu

23

Apr

Fri

24

Apr

Sat

25

Apr

Sun

26

Apr

Mon

27

Apr

Tue

28

Apr

Wed

29

Apr

Thu

30

Apr

Fri

1

May

Sat

2

May

Sun

3

May

Mon

4

May

Tue

5

May

Wed

6

May

Thu

7

May

Fri

8

May

Sat

9

May

Sun

10

May

Mon

11

May

Tue

12

May

Wed

13

May

Thu

14

May

Fri

15

May

Sat

16

May

By clicking “Get pre-qualified” and/or 'Submit' you are expressly consenting, in writing, to receive telemarketing and other messages, including artificial or prerecorded voices, via automated calls or texts from jumprealty.ca and up.mortgages at the number you provided above. This consent is not required to purchase any good or service. Message and data rates may apply, frequency varies. Text HELP for help or STOP to cancel. More details in Terms of Use and Privacy Policy.

Listing Agency:  COLDWELL BANKER THE REAL ESTATE CENTRE

* Data is provided courtesy of PROPTX. The information provided herein must only be used by consumers that have a bona fide interest in the purchase, sale, or lease of real estate and may not be used for any commercial purpose or any other purpose. The information is deemed reliable but is not guaranteed accurate by PROPTX.

Hospital
Parks
Schools
Place of Worship
Please select an amenity above to view a list.

Recommended Properties

Loading...
390 Davis Drive Unit# 303
Newmarket , Ontario
$16
Get more info