For Sale - 4 Leeds Court, Bracebridge, Ontario

Est payment $3,922/mo
Views   1
Time on Jump  1 days
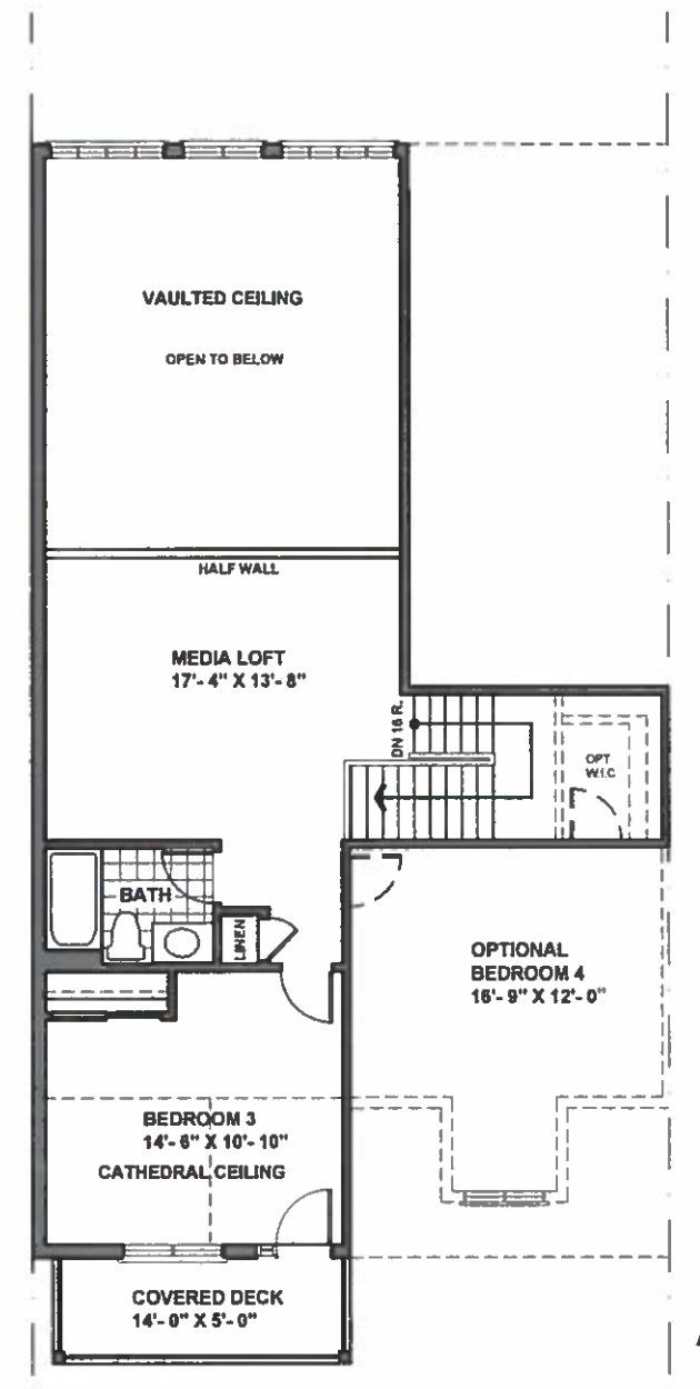
  • Spacious new construction bungaloft townhome with 2,320 sq ft of living space.
  • Bright great room with vaulted ceiling and plenty of natural light.
  • Main floor primary bedroom with walk-in closet for comfortable living.
  • Flexible media loft and two extra bedrooms for guests or family.
  • Opportunity to choose finishes and personalize your new home.



Welcome to waterways of muskoka, where carefree living meets the natural beauty of cottage country. This bright and spacious new construction bungaloft townhome offers 2,320 sq ft of thoughtfully designed living space and the convenience of freehold ownership with common element condominium services, including snow removal and lawn maintenance. The main floor features a stunning great room with vaulted ceiling, filling the home with natural light and creating an open, airy feel. A main floor primary bedroom with walk-in closet provides comfortable one-level living, while a second main floor bedroom is ideal for guests or a home office. Main floor laundry adds everyday convenience. Upstairs, a large media loft offers flexible living space for relaxing or entertaining and is complemented by two additional bedrooms, perfect for family or visiting guests. New construction means there is still time to choose your finishes and personalize the home to suit your style. Enjoy modern design, generous space, and low-maintenance living in the sought-after waterways of muskoka community. Sparrow model
Listing IDX12946712
Address4 Leeds Court
CityBracebridge, Ontario
Price$816,814
Bed / Bath4 / 3 Full
StyleBungaloft, Att/Row/Townhouse
ConstructionStone, Wood
TypeResidential
StatusFor Sale
Subtype Att/Row/TownhouseIndoor Features Primary Bedroom - Main FloorOwnership FreeholdWaterfront IndirectBasement FullFoundation Poured ConcreteHeating / Cooling Forced AirHeating Fuel GasSewer Sewer
Parking 2.00
ASAP

Thu

2

Apr

Fri

3

Apr

Sat

4

Apr

Sun

5

Apr

Mon

6

Apr

Tue

7

Apr

Wed

8

Apr

Thu

9

Apr

Fri

10

Apr

Sat

11

Apr

Sun

12

Apr

Mon

13

Apr

Tue

14

Apr

Wed

15

Apr

Thu

16

Apr

Fri

17

Apr

Sat

18

Apr

Sun

19

Apr

Mon

20

Apr

Tue

21

Apr

Wed

22

Apr

Thu

23

Apr

Fri

24

Apr

Sat

25

Apr

Sun

26

Apr

Mon

27

Apr

Tue

28

Apr

Wed

29

Apr

Thu

30

Apr

By clicking “Get pre-qualified” and/or 'Submit' you are expressly consenting, in writing, to receive telemarketing and other messages, including artificial or prerecorded voices, via automated calls or texts from jumprealty.ca and up.mortgages at the number you provided above. This consent is not required to purchase any good or service. Message and data rates may apply, frequency varies. Text HELP for help or STOP to cancel. More details in Terms of Use and Privacy Policy.

Listing Agency:  RE/MAX HALLMARK CHAY REALTY

* Data is provided courtesy of PROPTX. The information provided herein must only be used by consumers that have a bona fide interest in the purchase, sale, or lease of real estate and may not be used for any commercial purpose or any other purpose. The information is deemed reliable but is not guaranteed accurate by PROPTX.

Hospital
Parks
Schools
Place of Worship
Please select an amenity above to view a list.

Recommended Properties

Loading...
4 Leeds Court
Bracebridge , Ontario
4 3 $816,814
Get more info