For Sale - 40 Dominion Road, Toronto, Ontario

Est payment $9,263/mo
Views   1
Time on Jump  42 day
  • Rare investment opportunity in the heart of Long Branch.
  • Steps from Long Branch GO Station and trendy shops.
  • Large 45 x 150 ft lot with detached double garage.
  • Triplex with four rentable units, ideal for income.
  • Potential for garden suite to increase income and property value.



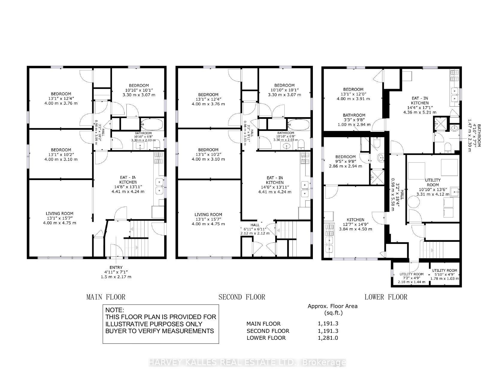
Welcome to 40 dominion rd, an incredible rare investment opportunity located south of lake shore blvd in the heart of long branch. Steps away from the long branch go station, marie curtis park, trendy shops and major highways with direct access from browns line to sherway gardens, 427 and qew/gardiner. The property sits on a very large 45 x 150 ft deep exterior lot with an incredible detached double garage complete with electricity and expansion potential. This legal triplex has 4 rentable units, including 2 very large 3-bedroom apartments on the 1st and 2nd floor, with an additional 2 lower units, each with 1 bedroom and a large kitchen/living area. The basement is complete with coin laundry and all windows are above grade. The unit has an excellent financial profile and a fantastic net operating income. If you are looking for a great return on investment with additional future upside potential, then look no further, your dream investment opportunity is here! **extras** this property also qualifies for a 1290 sq ft garden suite which would increase the income and value to the owner. Property has a 4. 5% cap rate.
Listing IDW12796934
Address40 Dominion Road
CityToronto, Ontario
Price$1,929,000
Bed / Bath8 / 4 Full
Style2-Storey, Multiplex
ConstructionBrick
TypeMulti-Family
StatusFor Sale
Subtype MultiplexIndoor Features OtherOwnership FreeholdBasement Apartment, FinishedFoundation UnknownHeating / Cooling Forced AirHeating Fuel GasSewer Sewer
Parking 7.00
ASAP

Fri

3

Apr

Sat

4

Apr

Sun

5

Apr

Mon

6

Apr

Tue

7

Apr

Wed

8

Apr

Thu

9

Apr

Fri

10

Apr

Sat

11

Apr

Sun

12

Apr

Mon

13

Apr

Tue

14

Apr

Wed

15

Apr

Thu

16

Apr

Fri

17

Apr

Sat

18

Apr

Sun

19

Apr

Mon

20

Apr

Tue

21

Apr

Wed

22

Apr

Thu

23

Apr

Fri

24

Apr

Sat

25

Apr

Sun

26

Apr

Mon

27

Apr

Tue

28

Apr

Wed

29

Apr

Thu

30

Apr

Fri

1

May

By clicking “Get pre-qualified” and/or 'Submit' you are expressly consenting, in writing, to receive telemarketing and other messages, including artificial or prerecorded voices, via automated calls or texts from jumprealty.ca and up.mortgages at the number you provided above. This consent is not required to purchase any good or service. Message and data rates may apply, frequency varies. Text HELP for help or STOP to cancel. More details in Terms of Use and Privacy Policy.

Listing Agency:  HARVEY KALLES REAL ESTATE LTD.

* Data is provided courtesy of PROPTX. The information provided herein must only be used by consumers that have a bona fide interest in the purchase, sale, or lease of real estate and may not be used for any commercial purpose or any other purpose. The information is deemed reliable but is not guaranteed accurate by PROPTX.

Hospital
Parks
Schools
Place of Worship
Please select an amenity above to view a list.

Recommended Properties

Loading...
40 Dominion Road
Toronto , Ontario
8 4 $1,929,000
Get more info