For Sale - 40 Dominion Road, Toronto, Ontario

Est payment $9,263/mo
Views   1
Time on Jump  4 day
  • Rare investment opportunity in Long Branch near shops and GO station.
  • Large 45 x 150 ft lot with potential for expansion.
  • Legal triplex with 4 rentable units, ideal for income.
  • Two spacious 3-bedroom apartments plus two 1-bedroom units.
  • Possibility for a garden suite to increase income potential.



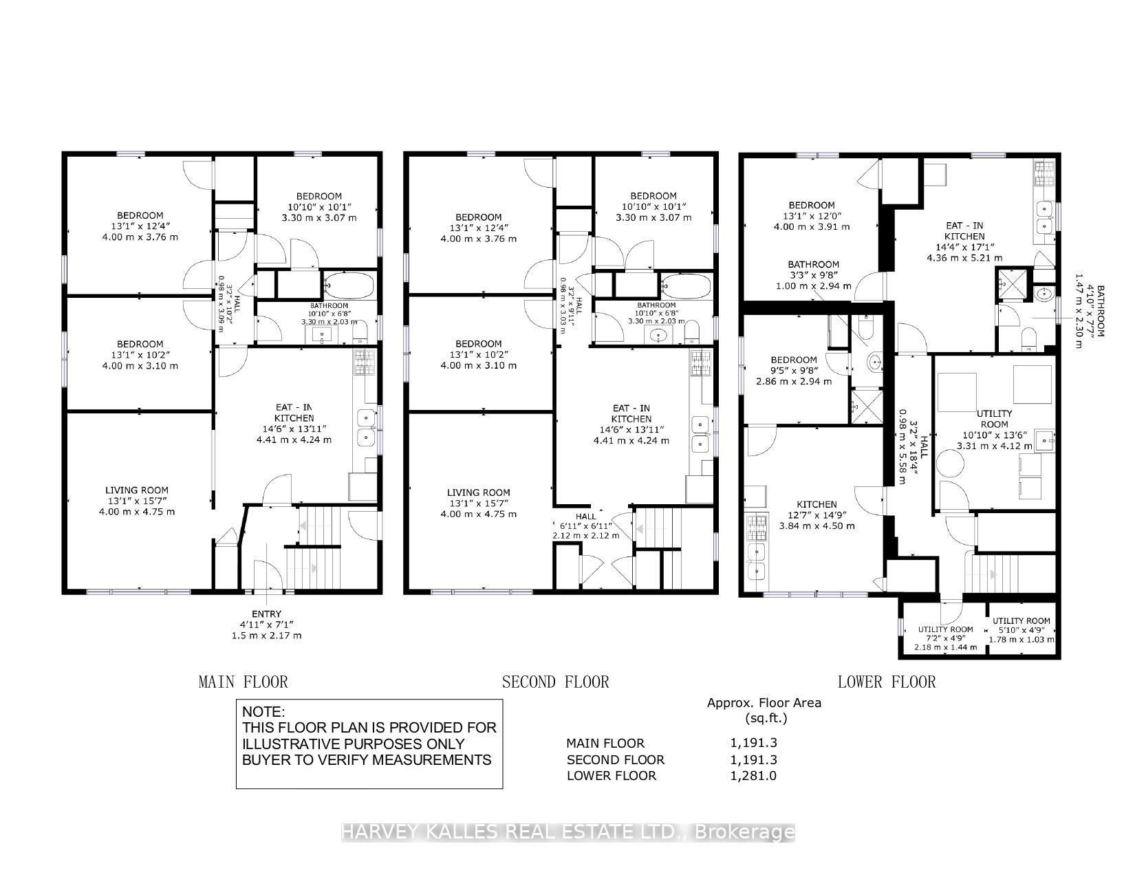
Welcome to 40 dominion rd, an incredible rare investment opportunity located south of lake shore blvd in the heart of long branch. Steps away from the long branch go station, marie curtis park, trendy shops and major highways with direct access from browns line to sherway gardens, 427 and qew/gardiner. The property sits on a very large 45 x 150 ft deep exterior lot with an incredible detached double garage complete with electricity and expansion potential. This legal triplex has 4 rentable units, including 2 very large 3-bedroom apartments on the 1st and 2nd floor, with an additional 2 lower units, each with 1 bedroom and a large kitchen/living area. The basement is complete with coin laundry and all windows are above grade. The unit has an excellent financial profile and a fantastic net operating income. If you are looking for a great return on investment with additional future upside potential, then look no further, your dream investment opportunity is here! **extras** this property also qualifies for a 1290 sq ft garden suite which would increase the income and value to the owner. Property has a 4. 5% cap rate.
Listing IDW13025668
Address40 Dominion Road
CityToronto, Ontario
Price$1,929,000
Bed / Bath8 / 4 Full
Style2-Storey, Multiplex
ConstructionBrick
TypeMulti-Family
StatusFor Sale
Subtype MultiplexIndoor Features OtherOwnership FreeholdBasement Apartment, FinishedFoundation UnknownHeating / Cooling Forced AirHeating Fuel GasSewer Sewer
Parking 7.00
ASAP

Mon

27

Apr

Tue

28

Apr

Wed

29

Apr

Thu

30

Apr

Fri

1

May

Sat

2

May

Sun

3

May

Mon

4

May

Tue

5

May

Wed

6

May

Thu

7

May

Fri

8

May

Sat

9

May

Sun

10

May

Mon

11

May

Tue

12

May

Wed

13

May

Thu

14

May

Fri

15

May

Sat

16

May

Sun

17

May

Mon

18

May

Tue

19

May

Wed

20

May

Thu

21

May

Fri

22

May

Sat

23

May

Sun

24

May

Mon

25

May

By clicking “Get pre-qualified” and/or 'Submit' you are expressly consenting, in writing, to receive telemarketing and other messages, including artificial or prerecorded voices, via automated calls or texts from jumprealty.ca and up.mortgages at the number you provided above. This consent is not required to purchase any good or service. Message and data rates may apply, frequency varies. Text HELP for help or STOP to cancel. More details in Terms of Use and Privacy Policy.

Listing Agency:  HARVEY KALLES REAL ESTATE LTD.

* Data is provided courtesy of PROPTX. The information provided herein must only be used by consumers that have a bona fide interest in the purchase, sale, or lease of real estate and may not be used for any commercial purpose or any other purpose. The information is deemed reliable but is not guaranteed accurate by PROPTX.

Hospital
Parks
Schools
Place of Worship
Please select an amenity above to view a list.

Recommended Properties

Loading...
40 Dominion Road
Toronto , Ontario
8 4 $1,929,000
Get more info