For Sale - 402 Mp4 Road, Rideau Lakes, Ontario

Est payment $2,156/mo
Views   1
Time on Jump  1 days
  • Situated on over 7 acres of manicured land with beautiful trees.
  • Close to boat launches and conservation areas for outdoor activities.
  • Established apple orchard and cleared trails for leisurely strolls.
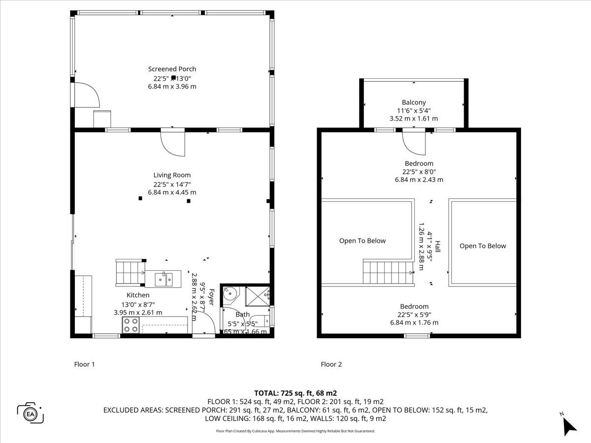
  • Cozy cottage with a functional kitchen and spacious screened-in sunroom.
  • Great potential for rental income or as a private retreat.



Nestled in the heart of rideau lakes, this charming cottage retreat sits on just over 7 acres of beautifully manicured land surrounded by towering maples and pines. Steps from pristine boat launches, conservation areas, and endless nature, the property offers the best of outdoor living. Trails have been thoughtfully cleared, lawns are well maintained, and an established apple orchard adds to the country charm. The property would be ideal for a future sugarbush or hobby farm. The cottage exudes canadiana warmth with its metal roof, cozy loft bedrooms, functional kitchen, and an expansive screened-in sunroom thats perfect for watching deer at dusk or gathering with friends and family. With immense frontage and development potential (severance opportunities), this turnkey property (sold furnished) would make an excellent rental or private retreat. Easy access off briton houghton bay road make getting here a breeze. Set up for three seasons (electric baseboard heating throughout) and only a few tweaks away from being a true four-season getaway, this property is beautiful, versatile and enchanting. Schedule a showing today and enjoy the colours of autumn amidst big rideau.
Listing IDX12945194
Address402 Mp4 Road
CityRideau Lakes, Ontario
Price$449,000
Bed / Bath3 / 1 Full
Style1 1/2 Storey, Detached
ConstructionBoard & Batten ,Wood
Land Size7.02
TypeResidential
StatusFor Sale
Subtype DetachedIndoor Features Storage, Water Treatment, Water Heater OwnedOutdoor Features Deck, Landscaped, Porch Enclosed, Patio, Privacy, Recreational AreaAmenities Greenbelt/Conservation, Wooded/Treed, Part Cleared, Lake/Pond, Marina, SkiingOwnership FreeholdViews Trees/Woods, Vineyard, Lake, ForestBasement NoneFoundation PiersHeating / Cooling BaseboardHeating Fuel ElectricSewer Septic
Parking 10.00
ASAP

Thu

2

Apr

Fri

3

Apr

Sat

4

Apr

Sun

5

Apr

Mon

6

Apr

Tue

7

Apr

Wed

8

Apr

Thu

9

Apr

Fri

10

Apr

Sat

11

Apr

Sun

12

Apr

Mon

13

Apr

Tue

14

Apr

Wed

15

Apr

Thu

16

Apr

Fri

17

Apr

Sat

18

Apr

Sun

19

Apr

Mon

20

Apr

Tue

21

Apr

Wed

22

Apr

Thu

23

Apr

Fri

24

Apr

Sat

25

Apr

Sun

26

Apr

Mon

27

Apr

Tue

28

Apr

Wed

29

Apr

Thu

30

Apr

By clicking “Get pre-qualified” and/or 'Submit' you are expressly consenting, in writing, to receive telemarketing and other messages, including artificial or prerecorded voices, via automated calls or texts from jumprealty.ca and up.mortgages at the number you provided above. This consent is not required to purchase any good or service. Message and data rates may apply, frequency varies. Text HELP for help or STOP to cancel. More details in Terms of Use and Privacy Policy.

Listing Agency:  REMAX BOARDWALK REALTY

* Data is provided courtesy of PROPTX. The information provided herein must only be used by consumers that have a bona fide interest in the purchase, sale, or lease of real estate and may not be used for any commercial purpose or any other purpose. The information is deemed reliable but is not guaranteed accurate by PROPTX.

Hospital
Parks
Schools
Place of Worship
Please select an amenity above to view a list.

Recommended Properties

Loading...
402 Mp4 Road
Rideau Lakes , Ontario
3 1 $449,000
Get more info