For Lease - 4023 The Exchange N/A Unit# 406, Mississauga, Ontario

Views   1
Time on Jump  1 days
  • Brand-new office space in the sought-after Exchange District of Mississauga.
  • Immediate possession available with a bright and modern environment.
  • Perfect for various professional services like medical and legal practices.
  • Steps away from Square One Shopping Centre and major transit options.
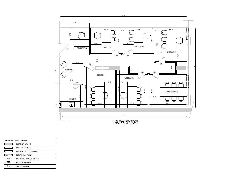
  • Efficient layout with five private offices and a dedicated boardroom.
Position your business in one of mississauga's most sought-after professional hubs - the exchange district in the heart of city centre. This brand-new office space offers a modern, bright environment with immediate possession. Perfectly suited for medical, real estate, mortgage, legal, and other professional service practices, this location delivers both prestige and convenience. Just steps from square one shopping centre, major transit, and the upcoming hurontario lrt, with seamless connectivity to highways 403 and 401. Surrounded by a rapidly growing, high-density residential community, this is a prime opportunity to establish and grow your presence where your clients already live, work, and commute. A rare chance to secure a premium address designed for long-term success. Efficient, professional layout to be completed by landlord, designed to include a reception area, client waiting lounge, pantry, five private offices, and a dedicated boardroom. Conceptual floor plan attached for illustrative purposes, showcasing the intended post-construction layout. Rent is $50 psf yearly + tmi
Listing IDW12978260
Address4023 The Exchange N/A Unit# 406
CityMississauga, Ontario
Lease$50
StyleOffice
TypeIndustrial/Commercial
StatusFor Lease
Subtype OfficeOwnership LeaseholdHeating / Cooling Gas Forced Air Closed
ASAP

Sat

11

Apr

Sun

12

Apr

Mon

13

Apr

Tue

14

Apr

Wed

15

Apr

Thu

16

Apr

Fri

17

Apr

Sat

18

Apr

Sun

19

Apr

Mon

20

Apr

Tue

21

Apr

Wed

22

Apr

Thu

23

Apr

Fri

24

Apr

Sat

25

Apr

Sun

26

Apr

Mon

27

Apr

Tue

28

Apr

Wed

29

Apr

Thu

30

Apr

Fri

1

May

Sat

2

May

Sun

3

May

Mon

4

May

Tue

5

May

Wed

6

May

Thu

7

May

Fri

8

May

Sat

9

May

By clicking “Get pre-qualified” and/or 'Submit' you are expressly consenting, in writing, to receive telemarketing and other messages, including artificial or prerecorded voices, via automated calls or texts from jumprealty.ca and up.mortgages at the number you provided above. This consent is not required to purchase any good or service. Message and data rates may apply, frequency varies. Text HELP for help or STOP to cancel. More details in Terms of Use and Privacy Policy.

Listing Agency:  NEWGEN REALTY EXPERTS

* Data is provided courtesy of PROPTX. The information provided herein must only be used by consumers that have a bona fide interest in the purchase, sale, or lease of real estate and may not be used for any commercial purpose or any other purpose. The information is deemed reliable but is not guaranteed accurate by PROPTX.

Hospital
Parks
Schools
Place of Worship
Please select an amenity above to view a list.

Recommended Properties

Loading...
4023 The Exchange N/a Unit# 406
Mississauga , Ontario
$50
Get more info