For Sale - 403288 Grey Road 4 N/A, West Grey, Ontario

Est payment $4,308/mo
Views   1
Time on Jump  140 day
  • Historic 1890 home on 23.1 acres with Bell Creek flowing through.
  • Well-maintained with modern updates and country lifestyle close to town.
  • Two decks provide peaceful views of gardens and woodland.
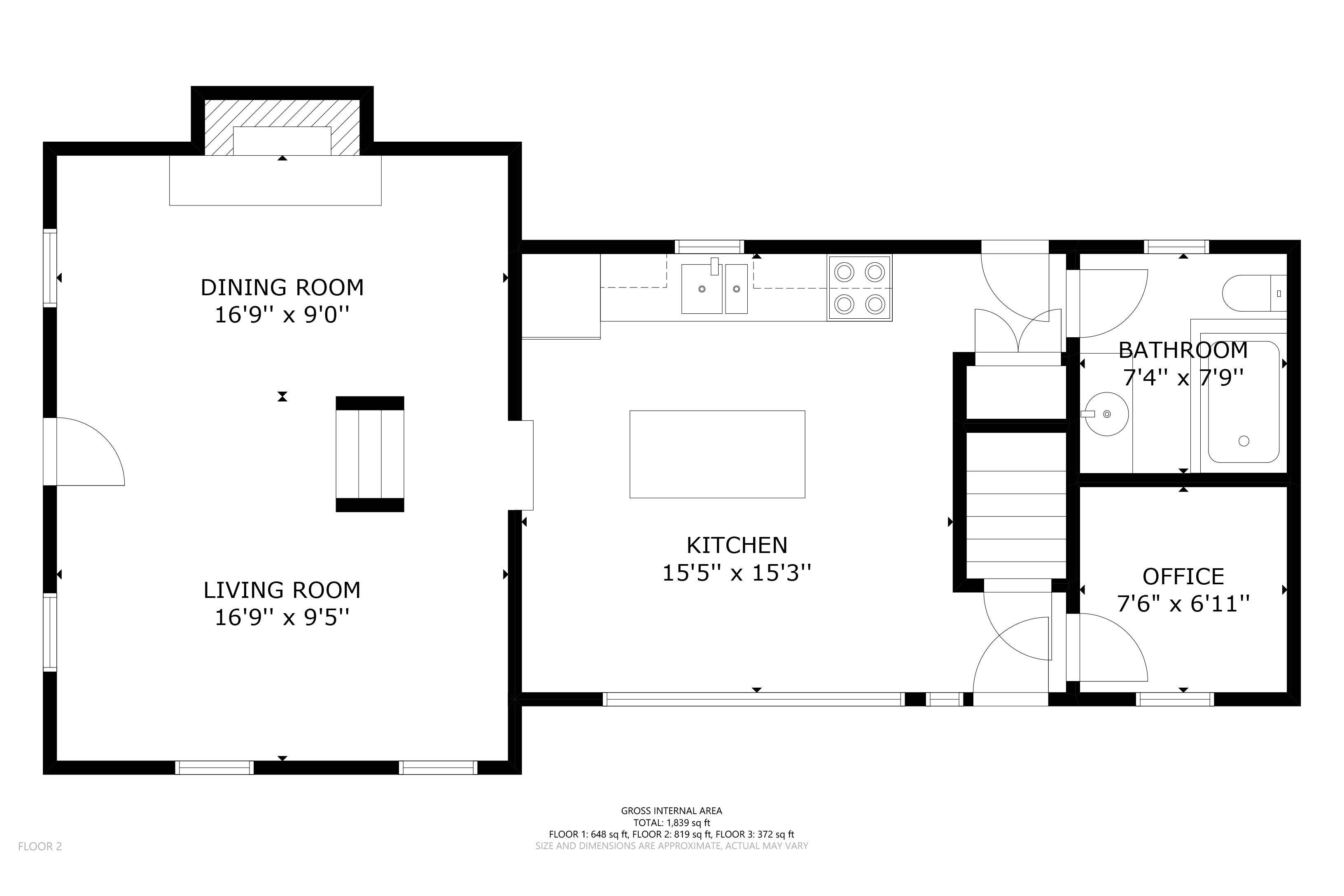
  • Spacious eat-in kitchen with oversized island and fireplace.
  • Detached two-car garage offers storage and heated space for hobbies.



This 1890 century home sits on 23. 1 acres with bell creek running through the property, offering a rare combination of heritage charm, privacy, and modern updates. Lovingly maintained over the years, its ready for those seeking a well-balanced country lifestyle just minutes from town. The property includes approx. 2 acres of lawn and gardens with raised flower beds, mature trees, and walking trails. Two decks overlook the gardens and woodland, providing a quiet place to relax with the sound of the creek in the background. Inside, the bright, eat-in country kitchen features an oversized island, generous windows, a fireplace and a walkout to the deck. A cozy living room and a compact office area complete the main floor. Upstairs you'll find two well-proportioned bedrooms and the lower level is clean and dry, offering a laundry area, utility room, and workbench. The detached two-car garage provides ample storage and workspace, including a heated area suitable for hobbies or small animals. Practicality extends beyond the home itself. This private setting includes acres of low maintenance woods with cleared trails and sits on a paved road and just 3 km from durham, where you'll find shopping, schools, medical care, and recreation facilities. Four-season activities are all nearby - swimming, paddling, fishing, skiing, snowmobiling, and golf - making this an excellent base for both work and leisure. With creek frontage, usable acreage, and proximity to essential amenities, this property offers the convenience of small-town living paired with the space and privacy of a country retreat.
Listing IDX12433245
Address403288 Grey Road 4 N/A
CityWest Grey, Ontario
Price$869,000
Bed / Bath2 / 1 Full
Style1 1/2 Storey, Detached
ConstructionWood
Land Size23.1
TypeResidential
StatusFor Sale
Subtype DetachedIndoor Features Carpet Free, Water Heater Owned, Water Softener, WorkbenchOutdoor Features Deck, Landscaped, Patio, Privacy, Recreational Area, Year Round LivingAmenities Golf, Hospital, Library, Rec./Commun.Centre, School Bus Route, WaterfrontOwnership FreeholdViews Creek/Stream, Forest, Trees/WoodsWaterfront DirectBasement Partial Basement, UnfinishedFoundation StoneHeating / Cooling Forced AirHeating Fuel PropaneSewer Septic
Parking 10.00
ASAP

Tue

17

Feb

Wed

18

Feb

Thu

19

Feb

Fri

20

Feb

Sat

21

Feb

Sun

22

Feb

Mon

23

Feb

Tue

24

Feb

Wed

25

Feb

Thu

26

Feb

Fri

27

Feb

Sat

28

Feb

Sun

1

Mar

Mon

2

Mar

Tue

3

Mar

Wed

4

Mar

Thu

5

Mar

Fri

6

Mar

Sat

7

Mar

Sun

8

Mar

Mon

9

Mar

Tue

10

Mar

Wed

11

Mar

Thu

12

Mar

Fri

13

Mar

Sat

14

Mar

Sun

15

Mar

Mon

16

Mar

Tue

17

Mar

By clicking “Get pre-qualified” and/or 'Submit' you are expressly consenting, in writing, to receive telemarketing and other messages, including artificial or prerecorded voices, via automated calls or texts from jumprealty.ca and up.mortgages at the number you provided above. This consent is not required to purchase any good or service. Message and data rates may apply, frequency varies. Text HELP for help or STOP to cancel. More details in Terms of Use and Privacy Policy.

Listing Agency:  Forest Hill Real Estate Inc.
Hospital
Parks
Schools
Place of Worship
Please select an amenity above to view a list.

Recommended Properties

Loading...
403288 Grey Road 4 N/a
West Grey , Ontario
2 1 $869,000
Get more info