For Lease - 407 Gage Avenue Unit# 7, Kitchener, Ontario

Views   3
Time on Jump  54 day
  • Prime commercial sublease opportunity in a well-established location.
  • Spacious 1,500 sq. ft. unit with two washrooms and parking.
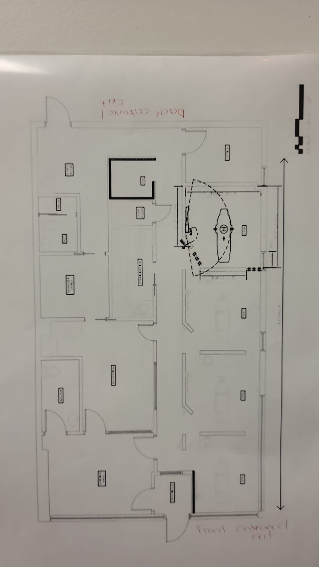
  • Excellent visibility with easy access to main areas and highways.
  • Front and rear access, flexible for various professional uses.
  • Immediate possession available, suitable for health or professional services.
Sublease opportunity within a well-established commercial space located in a prime kitchener location. Unit 7 at 407 gage avenue offers approximately 1,500 sq. Ft., featuring two washrooms (one universal and one staff) and three dedicated parking spaces, plus ample free plaza parking for clients. Gage avenue is ideally positioned between industrial and residential areas, providing excellent visibility and accessibility. The unit offers front and rear access, making it highly functional for a variety of professional uses. Conveniently located with easy access to downtown kitchener, uptown waterloo, the expressway, and highway 401. The space can be easily converted to suit your business needs and is ideal for dentistry, medical clinics, massage therapy, chiropractic, physiotherapy, family doctors, or other professional office uses requiring private exam or office rooms. Immediate possession available for the right business. Rent includes base rent, hst, property taxes, and maintenance. Utilities are extra. Contact the listing agent today to arrange a private showing.
Listing IDX12765654
Address407 Gage Avenue Unit# 7
CityKitchener, Ontario
Lease$2,550
StyleIndustrial
TypeIndustrial/Commercial
StatusFor Lease
Subtype IndustrialOwnership LeaseholdHeating / Cooling Electric Forced Air
ASAP

Thu

2

Apr

Fri

3

Apr

Sat

4

Apr

Sun

5

Apr

Mon

6

Apr

Tue

7

Apr

Wed

8

Apr

Thu

9

Apr

Fri

10

Apr

Sat

11

Apr

Sun

12

Apr

Mon

13

Apr

Tue

14

Apr

Wed

15

Apr

Thu

16

Apr

Fri

17

Apr

Sat

18

Apr

Sun

19

Apr

Mon

20

Apr

Tue

21

Apr

Wed

22

Apr

Thu

23

Apr

Fri

24

Apr

Sat

25

Apr

Sun

26

Apr

Mon

27

Apr

Tue

28

Apr

Wed

29

Apr

Thu

30

Apr

By clicking “Get pre-qualified” and/or 'Submit' you are expressly consenting, in writing, to receive telemarketing and other messages, including artificial or prerecorded voices, via automated calls or texts from jumprealty.ca and up.mortgages at the number you provided above. This consent is not required to purchase any good or service. Message and data rates may apply, frequency varies. Text HELP for help or STOP to cancel. More details in Terms of Use and Privacy Policy.

Listing Agency:  HomeLife Power Realty Inc

* Data is provided courtesy of PROPTX. The information provided herein must only be used by consumers that have a bona fide interest in the purchase, sale, or lease of real estate and may not be used for any commercial purpose or any other purpose. The information is deemed reliable but is not guaranteed accurate by PROPTX.

Hospital
Parks
Schools
Place of Worship
Please select an amenity above to view a list.

Recommended Properties

Loading...
407 Gage Avenue Unit# 7
Kitchener , Ontario
$2,550
Get more info