For Sale - 420 Erie Street, Warwick, Ontario

Est payment $3,465/mo
Views   1
Time on Jump  149 day
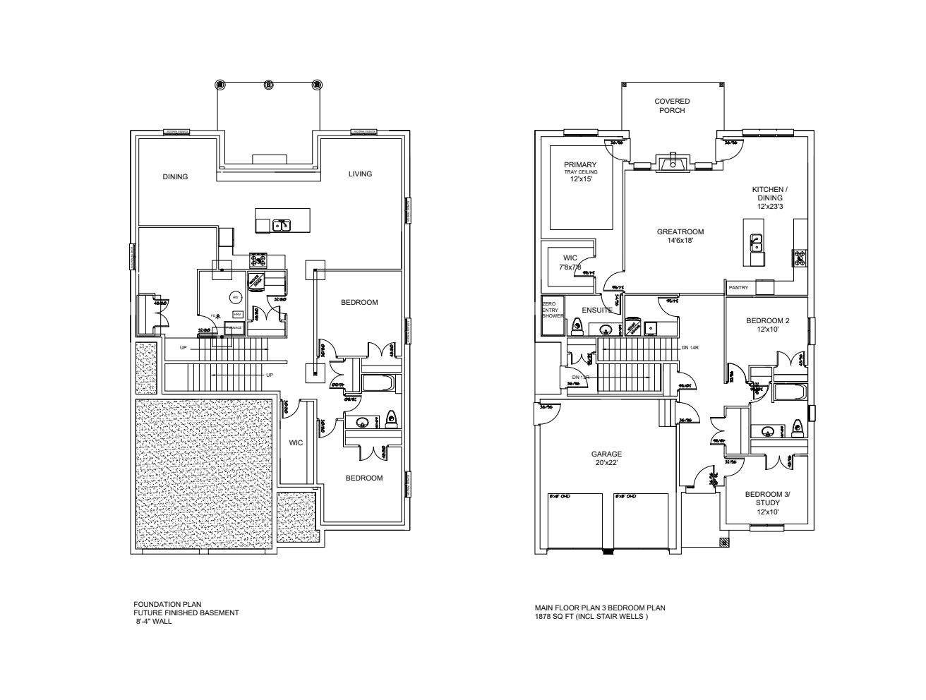
  • Thoughtfully designed 1,878 sq. ft. bungalow with modern convenience.
  • Open-concept layout with a bright kitchen and cozy gas fireplace.
  • Primary suite features a walk-in closet and spa-inspired ensuite.
  • Lower level with separate entrance, roughed in for extra living space.
  • Quality finishes throughout, blending style with functionality.



To be built - welcome to the vivienne, a thoughtfully designed 1,878 sq. Ft. Bungalow by branch homes that combines everyday comfort with modern convenience. This 3-bedroom, 2-bathroom home features an open-concept layout with a bright kitchen that flows into the living area, complete with a cozy gas fireplace, engineered hardwood throughout and access to the covered back deck perfect for entertaining or relaxing outdoors. The eat-in kitchen offers plenty of space for family meals, while the main-floor laundry adds to the easy lifestyle. The primary suite is a true retreat, with a walk-in closet and a spa-inspired ensuite featuring a zero-entry glass shower. Two additional bedrooms and a full bathroom are tucked off on the other side of the home round out the main level. The lower level offers a separate side entrance and is roughed in for a kitchen and bathroom. The floor plans show room for two bedrooms, a living space, and a dining area giving you incredible flexibility for multi-generational living, rental income, or simply making use of a spacious basement that also connects directly to the main floor. Additional features include a concrete driveway and quality finishes throughout, designed with both style and functionality in mind. The vivienne is a perfect blend of modern living, thoughtful design, and future flexibility. Check out our model at 408 erie street, watford on currently shown in the photos.
Listing IDX12396408
Address420 Erie Street
CityWarwick, Ontario
Price$699,000
Bed / Bath3 / 2 Full
StyleBungalow, Detached
ConstructionBrick, Vinyl Siding
Land Size0.151
TypeResidential
StatusFor Sale
Subtype DetachedIndoor Features In-Law Capability, Sump Pump, On Demand Water HeaterOutdoor Features DeckAmenities Rec./Commun.Centre, Place Of WorshipOwnership FreeholdWaterfront NoneBasement Full, UnfinishedFoundation Poured ConcreteHeating / Cooling Forced AirHeating Fuel GasSewer Sewer
Parking 6.00
ASAP

Sat

14

Feb

Sun

15

Feb

Mon

16

Feb

Tue

17

Feb

Wed

18

Feb

Thu

19

Feb

Fri

20

Feb

Sat

21

Feb

Sun

22

Feb

Mon

23

Feb

Tue

24

Feb

Wed

25

Feb

Thu

26

Feb

Fri

27

Feb

Sat

28

Feb

Sun

1

Mar

Mon

2

Mar

Tue

3

Mar

Wed

4

Mar

Thu

5

Mar

Fri

6

Mar

Sat

7

Mar

Sun

8

Mar

Mon

9

Mar

Tue

10

Mar

Wed

11

Mar

Thu

12

Mar

Fri

13

Mar

Sat

14

Mar

By clicking “Get pre-qualified” and/or 'Submit' you are expressly consenting, in writing, to receive telemarketing and other messages, including artificial or prerecorded voices, via automated calls or texts from jumprealty.ca and up.mortgages at the number you provided above. This consent is not required to purchase any good or service. Message and data rates may apply, frequency varies. Text HELP for help or STOP to cancel. More details in Terms of Use and Privacy Policy.

Listing Agency:  EXP REALTY
Hospital
Parks
Schools
Place of Worship
Please select an amenity above to view a list.

Recommended Properties

Loading...
420 Erie Street
Warwick , Ontario
3 2 $699,000
Get more info