For Sale - 421 Richmond Street, London East, Ontario

Est payment $331/mo
Views   3
Time on Jump  60 day
  • Turnkey restaurant located in a high-traffic area for visibility.
  • Recent upgrades including hood system, appliances, and furniture.
  • Low rent and weekend free street parking for convenience.
  • Close to Fanshawe College, attracting consistent foot traffic.
  • Partially finished basement offers additional storage space.



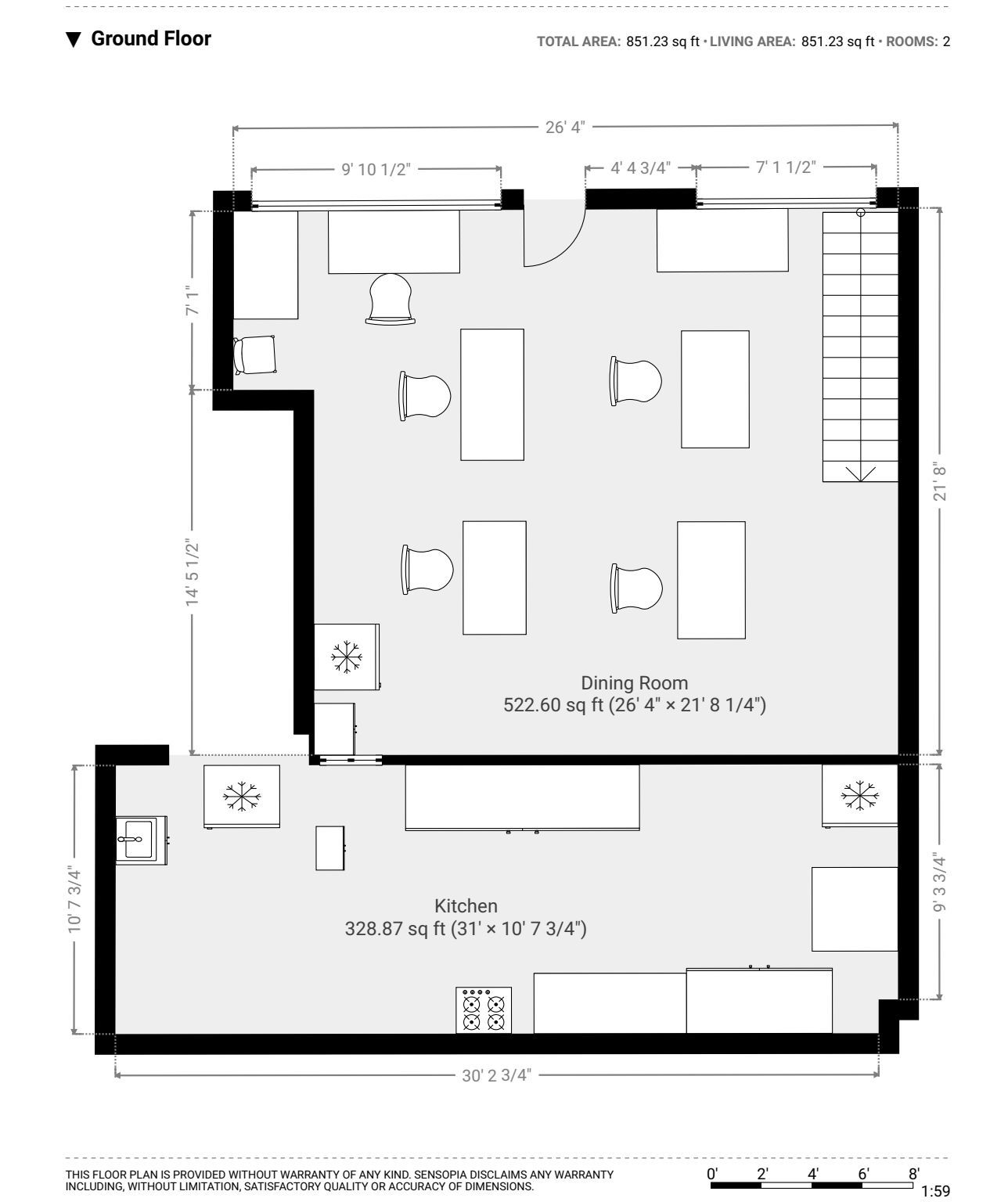
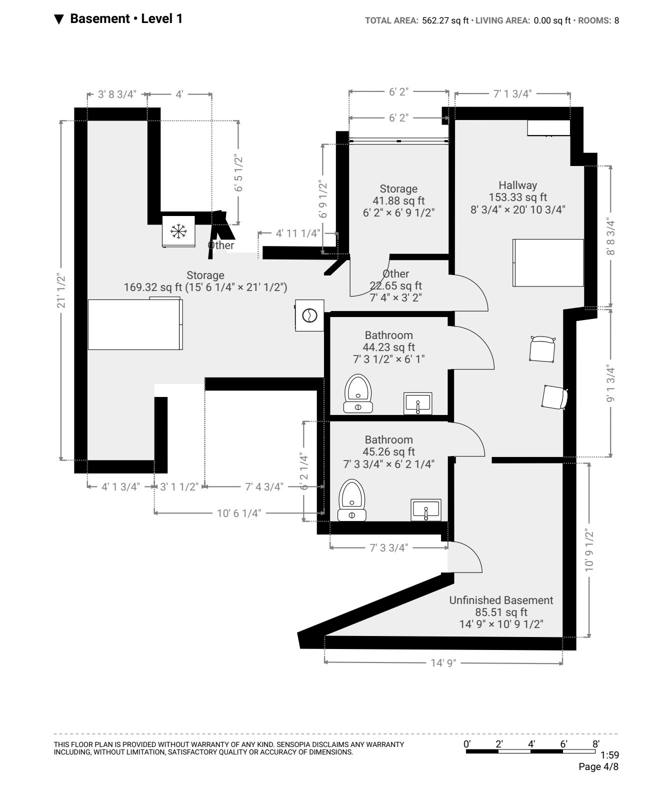
Very rare opportunity on richmond row! This turnkey restaurant located in a prime area with high pedestrian traffic, the property benefits from a bus stop right at the front door and close proximity to fanshawe college, bringing consistent activity and visibility. The owner has spared no expense in designing and building out this premier location, making it completely move-in ready and eliminating the usual setup headaches. Features include a newer hood system (2019), updated appliances, newer electrical system and newer furniture throughout. With low gross rent of $2,500 and convenient 2-hour free street parking on weekends, this space is ideally positioned across from scotiabank and close to citi plaza and london music hall, attracting steady daily traffic. 25 seats. Above ground size of 851 sqft. Partially finished basement for more storage space and 2 bathrooms. Don't miss this rare opportunity to own a fully equipped restaurant in one of the city's busiest corridors
Listing IDX12891800
Address421 Richmond Street
CityLondon East, Ontario
Price$69,000
Bath2 Full
StyleSale Of Business
TypeBusiness
StatusFor Sale
Subtype Sale Of BusinessBasement 1Heating / Cooling Gas Forced Air Closed
ASAP

Sun

17

May

Mon

18

May

Tue

19

May

Wed

20

May

Thu

21

May

Fri

22

May

Sat

23

May

Sun

24

May

Mon

25

May

Tue

26

May

Wed

27

May

Thu

28

May

Fri

29

May

Sat

30

May

Sun

31

May

Mon

1

Jun

Tue

2

Jun

Wed

3

Jun

Thu

4

Jun

Fri

5

Jun

Sat

6

Jun

Sun

7

Jun

Mon

8

Jun

Tue

9

Jun

Wed

10

Jun

Thu

11

Jun

Fri

12

Jun

Sat

13

Jun

Sun

14

Jun

By clicking “Get pre-qualified” and/or 'Submit' you are expressly consenting, in writing, to receive telemarketing and other messages, including artificial or prerecorded voices, via automated calls or texts from jumprealty.ca and up.mortgages at the number you provided above. This consent is not required to purchase any good or service. Message and data rates may apply, frequency varies. Text HELP for help or STOP to cancel. More details in Terms of Use and Privacy Policy.

Listing Agency:  CENTURY 21 FIRST CANADIAN CORP

* Data is provided courtesy of PROPTX. The information provided herein must only be used by consumers that have a bona fide interest in the purchase, sale, or lease of real estate and may not be used for any commercial purpose or any other purpose. The information is deemed reliable but is not guaranteed accurate by PROPTX.

Hospital
Parks
Schools
Place of Worship
Please select an amenity above to view a list.

Recommended Properties

Loading...
421 Richmond Street
London East , Ontario
2 $69,000
Get more info