For Sale - 424 Lawrence Heights Way Unit# Block 5C, POTL 49, Toronto, Ontario

Est payment $6,363/mo
Views   1
Time on Jump  1 days
  • Brand new legal townhouse with two separate units for rental income.
  • Spacious layout includes 4 bedrooms, den, and bright one-bedroom secondary suite.
  • Private backyard and single car garage in a central North Toronto location.
  • Walking distance to Yorkdale Shopping Centre and public transit options.
  • Modern finishes throughout with quartz countertops and hardwood flooring.



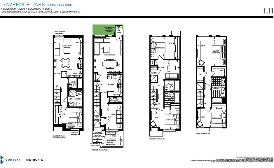
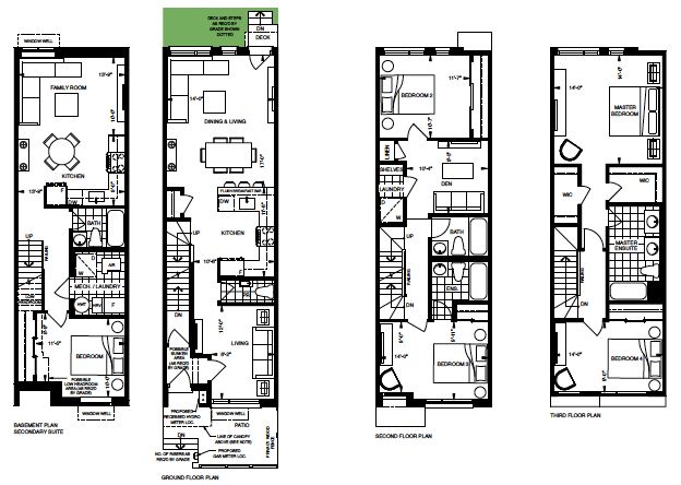
Assignment opportunity: rare-find brand new legal 2 units townhouse in the highly sought-after new lawrence heights, an exciting master-planned community built by award-winning metropia! This luxury modern townhouse is proud of its exceptional designer finishes and overlooks the park! (builder charged $100k premium for park location). Provides a private backyard and single car garage in the heart of north toronto. Offers 2641 sq. Ft. Of thoughtfully designed indoor living area, including 636 sq. Ft. In a lower level secondary suite finished by the builder. Main unit has 4 spacious bedrooms plus a large den, 3. 5 baths, 2 master bedrooms with own ensuite bath, smooth ceilings throughout. The one-bedroom secondary suite with separate entrance is very bright with big windows, has its own kitchen and laundry. Insulation added between secondary suite and main floor to absorb noise & vibration.(builder charged $100k premium for building the legal secondary suite). Live in one unit and rent out the other, or rent out both for excellent cash flow! The whole house is carpet free, with oak staircase throughout, hardwood floor for main unit and laminate for lower unit, 9' ceiling on main floor and 8' ceiling for other floors. Both kitchens feature quartz countertops, stainless steel appliances, tile backsplash and other upgrades. Walk to the world-renowned yorkdale shopping centre, subway station, parks and luxurious amenities. Enjoy quick access to go transit, hwy 401 & allen rd and the future lrt. [located in block 5c, potl 49. Firm occupancy date: 4/15/2026]
Listing IDC12841996
Address424 Lawrence Heights Way Unit# Block 5C,…
CityToronto, Ontario
Price$1,325,000
Bed / Bath6 / 5 Full
Style3-Storey, Att/Row/Townhouse
ConstructionBrick
TypeResidential
StatusFor Sale
Subtype Att/Row/TownhouseIndoor Features Accessory Apartment, Carpet FreeAmenities Park, Rec./Commun.Centre, School, Public Transit, Library, Clear ViewOwnership FreeholdViews Park/Greenbelt, ClearBasement Apartment, Separate EntranceFoundation ConcreteHeating / Cooling Forced AirHeating Fuel GasSewer Sewer
Parking 1.00
ASAP

Wed

4

Mar

Thu

5

Mar

Fri

6

Mar

Sat

7

Mar

Sun

8

Mar

Mon

9

Mar

Tue

10

Mar

Wed

11

Mar

Thu

12

Mar

Fri

13

Mar

Sat

14

Mar

Sun

15

Mar

Mon

16

Mar

Tue

17

Mar

Wed

18

Mar

Thu

19

Mar

Fri

20

Mar

Sat

21

Mar

Sun

22

Mar

Mon

23

Mar

Tue

24

Mar

Wed

25

Mar

Thu

26

Mar

Fri

27

Mar

Sat

28

Mar

Sun

29

Mar

Mon

30

Mar

Tue

31

Mar

Wed

1

Apr

By clicking “Get pre-qualified” and/or 'Submit' you are expressly consenting, in writing, to receive telemarketing and other messages, including artificial or prerecorded voices, via automated calls or texts from jumprealty.ca and up.mortgages at the number you provided above. This consent is not required to purchase any good or service. Message and data rates may apply, frequency varies. Text HELP for help or STOP to cancel. More details in Terms of Use and Privacy Policy.

Listing Agency:  HOMELIFE LANDMARK REALTY INC.
Hospital
Parks
Schools
Place of Worship
Please select an amenity above to view a list.

Recommended Properties

Loading...
424 Lawrence Heights Way Unit# Block 5c, Potl 49
Toronto , Ontario
6 5 $1,325,000
Get more info