For Sale - 432 Queen Street, Toronto, Ontario

Est payment $21,558/mo
Views   1
Time on Jump  150 day
  • Bright and expansive live/work space in downtown Toronto with easy access.
  • Private garage with a spacious ground floor suitable for retail or office.
  • High-ceiling studio with a huge deck, perfect for yoga or family time.
  • Stunning penthouse with designer kitchen, fireplace, and luxurious ensuite amenities.
  • Versatile layout allows customization for various uses with substantial square footage.



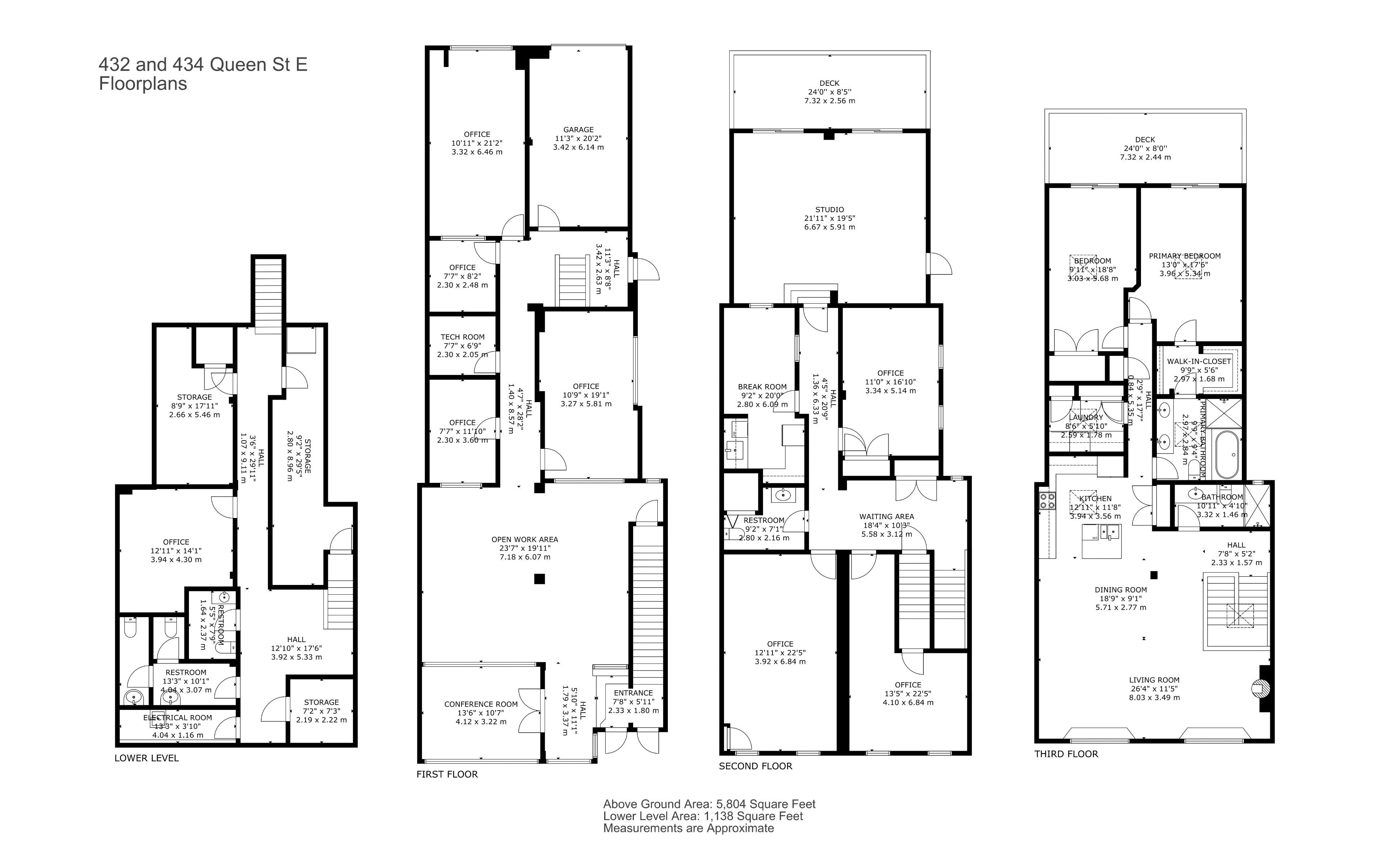
Welcome to your ideal live/work property in downtown toronto. Privacy and luxury has been thoughtfully renovated into this bright, expansive live/work space in the perfect location with easy access to subways and highways. Highlights:private garage, expansive great room, bright yoga studio, stylish wood-burning fireplace, 6 skylights, jacuzzi tub, and glass-enclosed showers. Bamboo and granite floors throughout. Customizable for retail, office, or residential use. With over 7,500 square feet of usable space you can occupy the space you need and rent the rest. Location: easy access to dvp/gardiner, streetcar stop, and future ontario line subway. Main floor: open retail/office area, large windows, 4 private offices, tech room, private garage, and mudroom. 2nd floor: bright high-ceiling studio with two walk-out doors to a huge deck perfect for yoga, photography, a family room, or home theatre. Kitchenette, washroom, and 3 offices. Penthouse: a stunning, light-filled space with south-facing windows, and a 12 ft ceiling. The great room has a european wood-burning fireplace, and a designer kitchen boasting ample storage, a granite island, induction range, and stainless-steel appliances. The primary ensuite includes a jetted tub, oversized glass shower, and skylight. Two bedrooms feature skylights and access to a spacious deck. Outside: built-in gas bbq line, heated gutters, and new roof shingles (2024). Basement: office, 3 storage rooms, utility room, and 3 washrooms.
Listing IDC12382455
Address432 Queen Street
CityToronto, Ontario
Price$4,349,000
Bed / Bath6 / 6 Full
Style3-Storey, Other
ConstructionStone
TypeResidential
StatusFor Sale
Subtype OtherIndoor Features Storage, On Demand Water Heater, Auto Garage Door RemoteOwnership FreeholdBasement Full, FinishedFoundation Poured ConcreteHeating / Cooling Forced AirHeating Fuel Gas
Parking 1.00
ASAP

Sun

15

Feb

Mon

16

Feb

Tue

17

Feb

Wed

18

Feb

Thu

19

Feb

Fri

20

Feb

Sat

21

Feb

Sun

22

Feb

Mon

23

Feb

Tue

24

Feb

Wed

25

Feb

Thu

26

Feb

Fri

27

Feb

Sat

28

Feb

Sun

1

Mar

Mon

2

Mar

Tue

3

Mar

Wed

4

Mar

Thu

5

Mar

Fri

6

Mar

Sat

7

Mar

Sun

8

Mar

Mon

9

Mar

Tue

10

Mar

Wed

11

Mar

Thu

12

Mar

Fri

13

Mar

Sat

14

Mar

Sun

15

Mar

By clicking “Get pre-qualified” and/or 'Submit' you are expressly consenting, in writing, to receive telemarketing and other messages, including artificial or prerecorded voices, via automated calls or texts from jumprealty.ca and up.mortgages at the number you provided above. This consent is not required to purchase any good or service. Message and data rates may apply, frequency varies. Text HELP for help or STOP to cancel. More details in Terms of Use and Privacy Policy.

Listing Agency:  ROYAL LEPAGE ESTATE REALTY
Hospital
Parks
Schools
Place of Worship
Please select an amenity above to view a list.

Recommended Properties

Loading...
432 Queen Street
Toronto , Ontario
6 6 $4,349,000
Get more info