For Sale - 432/434 Queen Street, Toronto, Ontario

Est payment $21,558/mo
Views   1
Time on Jump  95 day
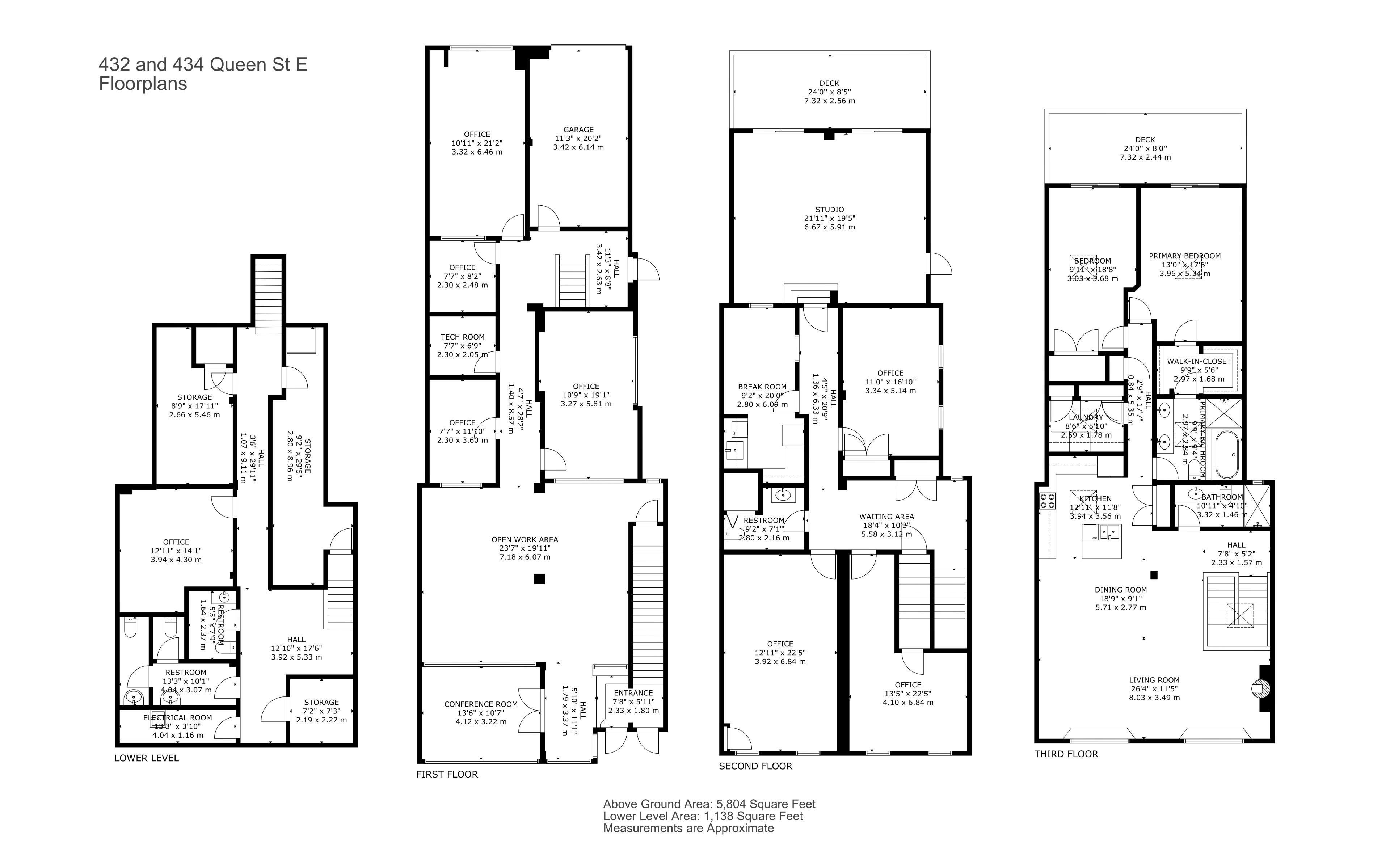
  • Spacious live/work property with over 7,500 square feet of flexible space.
  • Modern design with skylights, bamboo, and granite floors throughout.
  • Private garage and multiple outdoor spaces including a large deck.
  • Ideal location with easy access to transit and major highways.
  • Multiple office and studio areas, perfect for various business needs.



Welcome to your ideal live/work property in downtown toronto. Privacy and luxury has been thoughtfully renovated into this bright, expansive live/work space in the perfect location with easy access to subways and highways. Highlights:private garage, expansive great room, bright yoga studio, stylish wood-burning fireplace, 6 skylights, jacuzzi tub, and glass-enclosed showers. Bamboo and granite floors throughout. Customizable for retail, office, or residential use. With over 7,500 square feet of usable space you can occupy the space you need and rent the rest. Location: easy access to dvp/gardiner, streetcar stop, and future ontario line subway. Main floor: open retail/office area, large windows, 4 private offices, tech room, private garage, and mudroom. 2nd floor: bright high-ceiling studio with two walk-out doors to a huge deck perfect for yoga, photography, a family room, or home theatre. Kitchenette, washroom, and 3 offices. Penthouse: a stunning, light-filled space with south-facing windows, and a 12 ft ceiling. The great room has a european wood-burning fireplace, and a designer kitchen boasting ample storage, a granite island, induction range, and stainless-steel appliances. The primary ensuite includes a jetted tub, oversized glass shower, and skylight. Two bedrooms feature skylights and access to a spacious deck. Outside: built-in gas bbq line, heated gutters, and new roof shingles (2024). Basement: office, 3 storage rooms, utility room, and 3 washrooms.
Listing IDC12382476
Address432/434 Queen Street
CityToronto, Ontario
Price$4,349,000
Bath6 Full
StyleStore W Apt/Office
TypeIndustrial/Commercial
StatusFor Sale
Subtype Store W Apt/OfficeCommunity Features Major Highway, Public TransitBasement 1Heating / Cooling Gas Forced Air OpenSewer Sanitary
ASAP

Mon

22

Dec

Tue

23

Dec

Wed

24

Dec

Thu

25

Dec

Fri

26

Dec

Sat

27

Dec

Sun

28

Dec

Mon

29

Dec

Tue

30

Dec

Wed

31

Dec

Thu

1

Jan

Fri

2

Jan

Sat

3

Jan

Sun

4

Jan

Mon

5

Jan

Tue

6

Jan

Wed

7

Jan

Thu

8

Jan

Fri

9

Jan

Sat

10

Jan

Sun

11

Jan

Mon

12

Jan

Tue

13

Jan

Wed

14

Jan

Thu

15

Jan

Fri

16

Jan

Sat

17

Jan

Sun

18

Jan

Mon

19

Jan

By clicking “Get pre-qualified” and/or 'Submit' you are expressly consenting, in writing, to receive telemarketing and other messages, including artificial or prerecorded voices, via automated calls or texts from jumprealty.ca and up.mortgages at the number you provided above. This consent is not required to purchase any good or service. Message and data rates may apply, frequency varies. Text HELP for help or STOP to cancel. More details in Terms of Use and Privacy Policy.

Listing Agency:  ROYAL LEPAGE ESTATE REALTY
Hospital
Parks
Schools
Place of Worship
Please select an amenity above to view a list.

Recommended Properties

Loading...
432/434 Queen Street
Toronto , Ontario
6 $4,349,000
Get more info