For Sale - 4347 Erie Road, Fort Erie, Ontario

Est payment $9,123/mo
Views   1
Time on Jump  1 days
  • Two side-by-side lakefront properties with direct access to a sandy beach.
  • Expansive lake views from every window and spacious deck for gatherings.
  • Cozy interior features a wood-burning hearth and inviting kitchen.
  • Three bedrooms with charming bay windows for beautiful views.
  • Potential for Accessory Dwelling Units to accommodate family and friends.



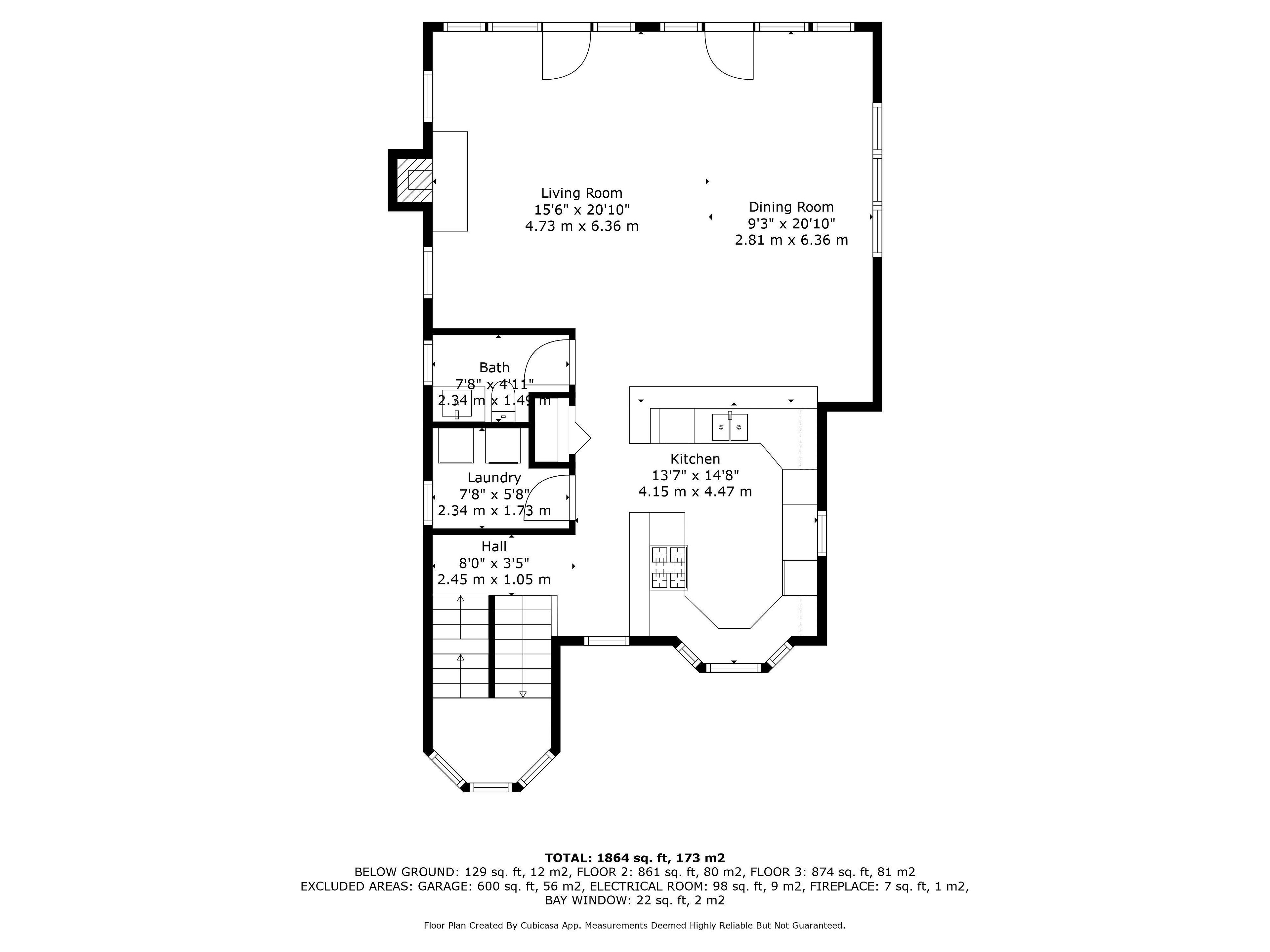
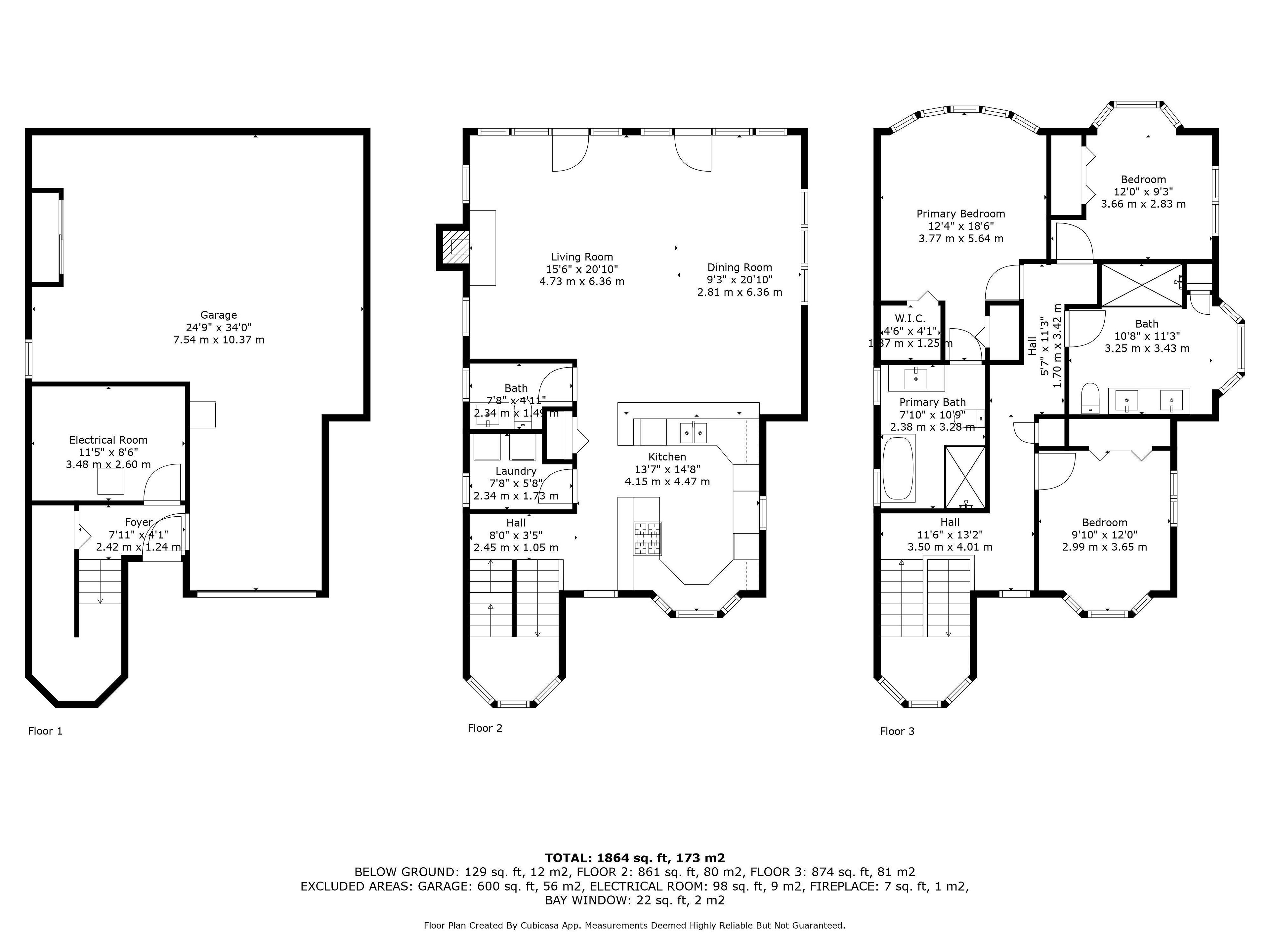
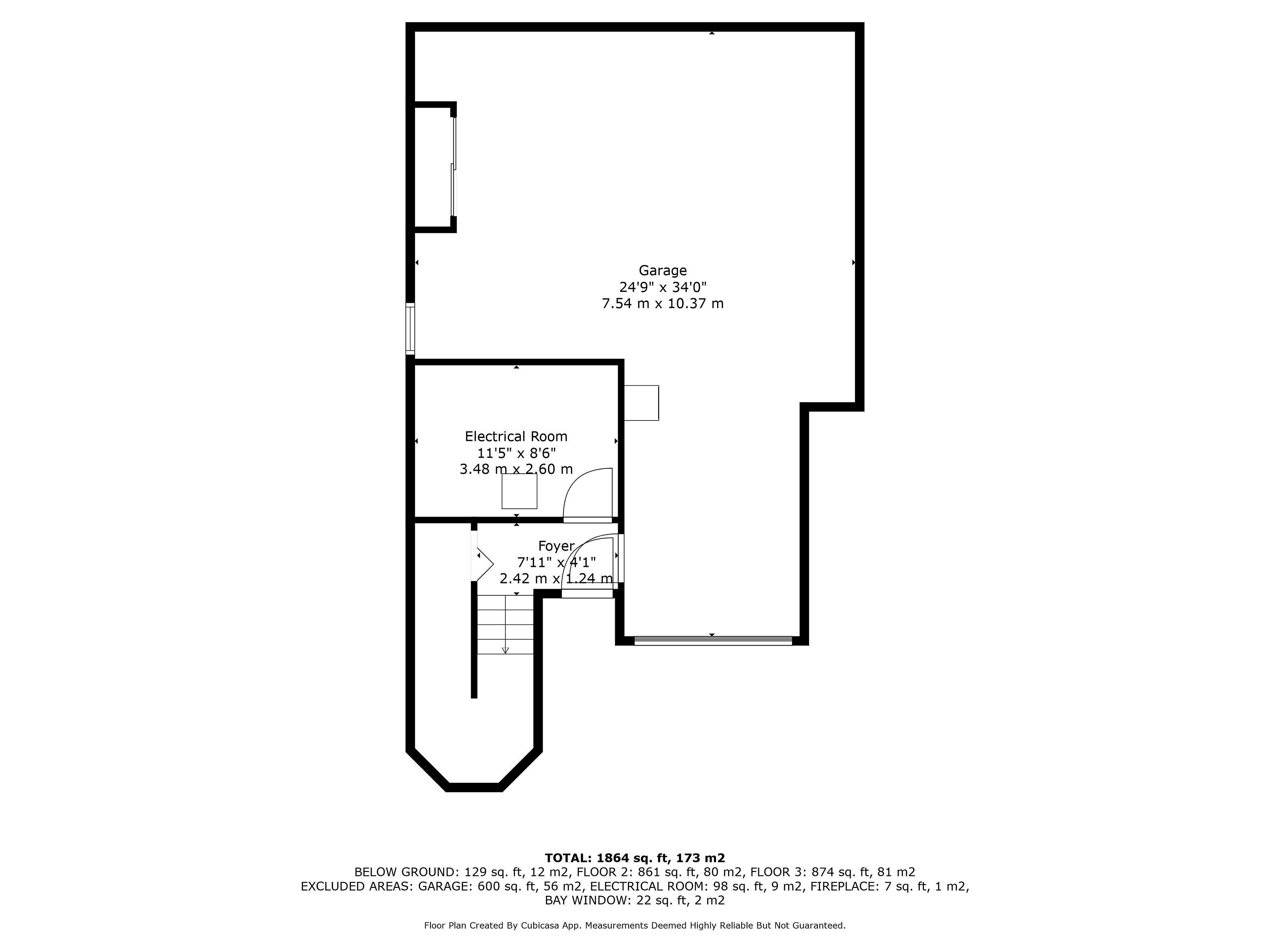
A rare opportunity in crystal beach ----two side-by-side lakefront properties are for sale!!! -----welcome to crystal beach, where generations gather and days unfold to the rhythm of the waves. Rarely does an offering like this arise: two lakefront properties, each with direct access to a sandy beach and crystal-clear, shallow water perfect for swimming, paddleboarding, or watching the sunset paint the horizon. ----this home is all year round. Expansive lake views fill every window, while double garden doors lead to a spacious deck with an outdoor fireplace, perfect for evening gatherings under the stars. Inside, a cozy wood-burning hearth anchors the living space, and an inviting kitchen brings everyone together. Upstairs are 3 bedrooms. The bedrooms frame postcard-perfect views through charming bay windows. The large garage offers room for vehicles and lake toys, and with municipal water and sewer, four-season living is effortless. There is also the potential to add accessory dwelling units (adus), room for everyone to stay and play. This lakeside community offers an incredible lifestyle just minutes from local shops, restaurants, trails, and everyday amenities. Close to fort erie, the peace bridge to the usa, niagara falls, niagara-on-the-lake, and toronto just 90 minutes away. Come see for yourself; you will fall in love!
Listing IDX13005834
Address4347 Erie Road
CityFort Erie, Ontario
Price$1,899,900
Bed / Bath3 / 3 Full
Style2-Storey, Detached
ConstructionVinyl Siding
Land Size0.309
TypeResidential
StatusFor Sale
Subtype DetachedIndoor Features Water Heater OwnedOutdoor Features Deck, Year Round LivingAmenities Waterfront, Beach, Clear View, Marina, Golf, ParkOwnership FreeholdViews Lake, BeachWaterfront DirectBasement NoneFoundation Concrete BlockHeating / Cooling Forced AirHeating Fuel GasSewer Sewer
Parking 15.00
ASAP

Fri

17

Apr

Sat

18

Apr

Sun

19

Apr

Mon

20

Apr

Tue

21

Apr

Wed

22

Apr

Thu

23

Apr

Fri

24

Apr

Sat

25

Apr

Sun

26

Apr

Mon

27

Apr

Tue

28

Apr

Wed

29

Apr

Thu

30

Apr

Fri

1

May

Sat

2

May

Sun

3

May

Mon

4

May

Tue

5

May

Wed

6

May

Thu

7

May

Fri

8

May

Sat

9

May

Sun

10

May

Mon

11

May

Tue

12

May

Wed

13

May

Thu

14

May

Fri

15

May

By clicking “Get pre-qualified” and/or 'Submit' you are expressly consenting, in writing, to receive telemarketing and other messages, including artificial or prerecorded voices, via automated calls or texts from jumprealty.ca and up.mortgages at the number you provided above. This consent is not required to purchase any good or service. Message and data rates may apply, frequency varies. Text HELP for help or STOP to cancel. More details in Terms of Use and Privacy Policy.

Listing Agency:  RIGHT AT HOME REALTY, BROKERAGE

* Data is provided courtesy of PROPTX. The information provided herein must only be used by consumers that have a bona fide interest in the purchase, sale, or lease of real estate and may not be used for any commercial purpose or any other purpose. The information is deemed reliable but is not guaranteed accurate by PROPTX.

Hospital
Parks
Schools
Place of Worship
Please select an amenity above to view a list.

Recommended Properties

Loading...
4347 Erie Road
Fort Erie , Ontario
3 3 $1,899,900
Get more info