For Sale - 4365 GREEN BEND Road, London South, Ontario

Est payment $3,841/mo
Views   1
Time on Jump  7 day
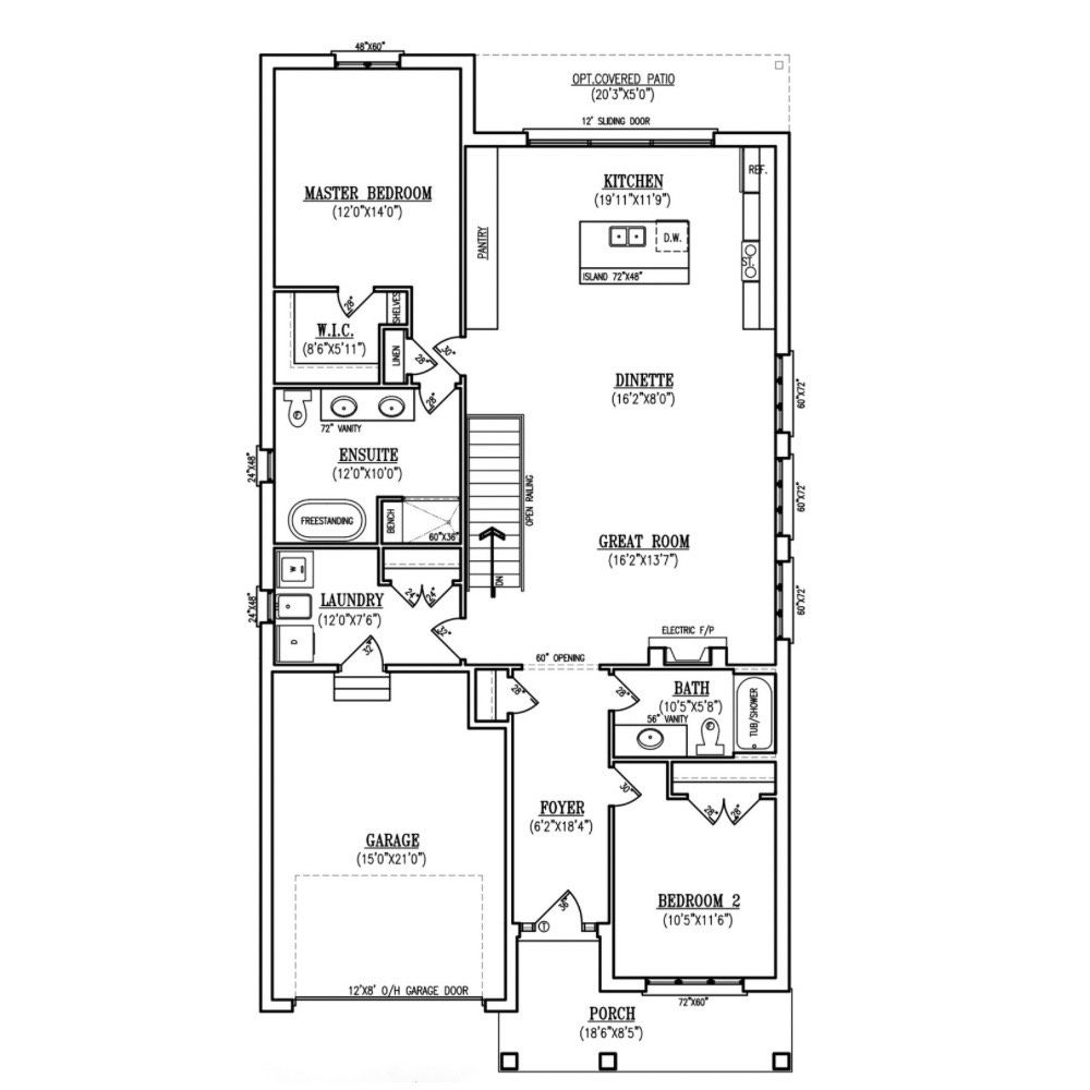
  • Well-designed bungalow in the lively Liberty Crossing community.
  • Open-concept layout with a modern kitchen and electric fireplace.
  • Spacious primary suite with a five-piece ensuite and walk-in closet.
  • Unfinished basement offers great potential for personal customization.
  • Convenient main floor laundry with direct access to the attached garage.



Welcome to this beautifully designed bungalow by castell homes, located in the vibrant liberty crossing community near lambeth, offering easy access to the 402 and all nearby amenities. This thoughtfully crafted home features an open-concept layout with a modern kitchen and center island that flows into the dinette and great room with an electric fireplace, and optional access to a covered deck, ideal for everyday living or entertaining. The main floor includes a spacious primary suite with a five-piece ensuite featuring a soaker tub, walk-in shower, and walk-in closet, along with a second bedroom, a four-piece main bath, and a convenient mudroom with laundry and direct entry to the attached one-car garage. The lower level offers an unfinished basement with excellent potential for future customization. Don't miss the opportunity to own this stylish and functional home in one of london's most desirable new communities. Price reflects the proposed 2026 hst rebates. Final rebate amount is subject to the passing of provincial and federal legislation and buyer's eligibility as per government guidelines, including primary residence or qualifying rental.
Listing IDX13001336
Address4365 GREEN BEND Road
CityLondon South, Ontario
Price$799,900
Bed / Bath2 / 2 Full
StyleBungalow, Detached
ConstructionBrick, Stone
TypeResidential
StatusFor Sale
Subtype DetachedIndoor Features Sump Pump, Air ExchangerOutdoor Features PorchAmenities Golf, Place Of Worship, Rec./Commun.Centre, Wooded/TreedOwnership FreeholdBasement Full, Development PotentialFoundation Poured ConcreteHeating / Cooling Forced AirHeating Fuel GasSewer Sewer
Parking 3.00
ASAP

Thu

23

Apr

Fri

24

Apr

Sat

25

Apr

Sun

26

Apr

Mon

27

Apr

Tue

28

Apr

Wed

29

Apr

Thu

30

Apr

Fri

1

May

Sat

2

May

Sun

3

May

Mon

4

May

Tue

5

May

Wed

6

May

Thu

7

May

Fri

8

May

Sat

9

May

Sun

10

May

Mon

11

May

Tue

12

May

Wed

13

May

Thu

14

May

Fri

15

May

Sat

16

May

Sun

17

May

Mon

18

May

Tue

19

May

Wed

20

May

Thu

21

May

By clicking “Get pre-qualified” and/or 'Submit' you are expressly consenting, in writing, to receive telemarketing and other messages, including artificial or prerecorded voices, via automated calls or texts from jumprealty.ca and up.mortgages at the number you provided above. This consent is not required to purchase any good or service. Message and data rates may apply, frequency varies. Text HELP for help or STOP to cancel. More details in Terms of Use and Privacy Policy.

Listing Agency:  CENTURY 21 FIRST CANADIAN CORP

* Data is provided courtesy of PROPTX. The information provided herein must only be used by consumers that have a bona fide interest in the purchase, sale, or lease of real estate and may not be used for any commercial purpose or any other purpose. The information is deemed reliable but is not guaranteed accurate by PROPTX.

Hospital
Parks
Schools
Place of Worship
Please select an amenity above to view a list.

Recommended Properties

Loading...
4365 Green Bend Road
London South , Ontario
2 2 $799,900
Get more info