For Sale - 44 Newton Street, Barrie, Ontario

Est payment $3,172/mo
Views   1
Time on Jump  1 days
  • Well-maintained 3-bedroom, 2-bathroom detached home with classic charm.
  • Private lot with a peaceful backyard and inground pool for relaxation.
  • Durable click vinyl flooring and thoughtful updates throughout the home.
  • Oversized detached garage offers space for workshop and storage.
  • Walking distance to schools, downtown waterfront, Hwy 400, and transit options.



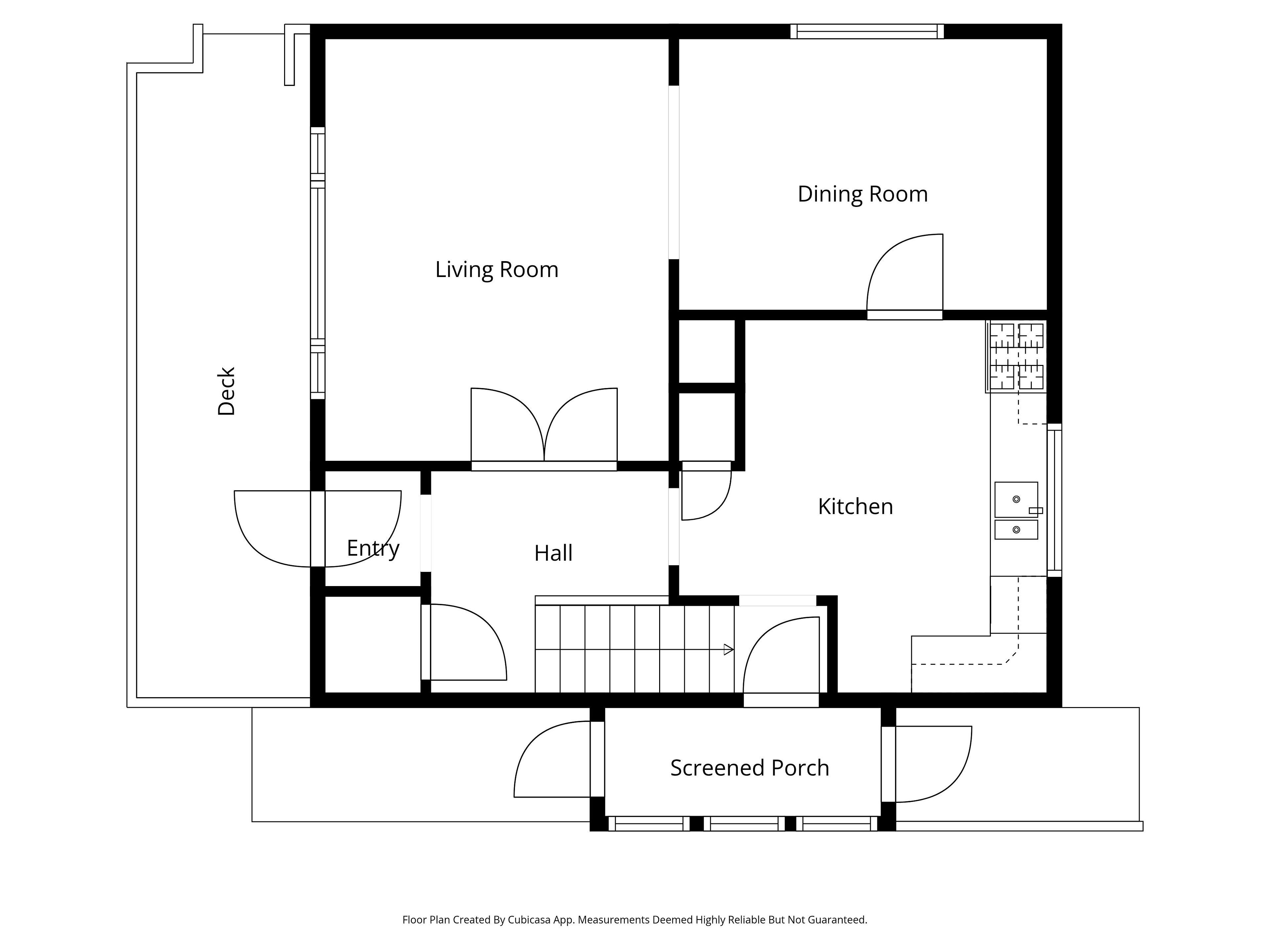
This well-maintained 3-bedroom, 2-bathroom detached home offers timeless comfort and functionality. Situated on a generous private lot, the backyard is a peaceful retreat featuring an inground pool-perfect for summer relaxation and entertaining. Inside, the home retains its classic charm with thoughtful updates, including durable click vinyl flooring. The oversized detached single-car garage provides ample space for a workshop and additional storage. Ideally located within walking distance to both elementary and high schools, and just minutes from the downtown waterfront, hwy 400, and public transit. Pride of ownership is evident throughout-this turn-key property is ready to welcome you home.
Listing IDS12638378
Address44 Newton Street
CityBarrie, Ontario
Price$639,900
Bed / Bath3 / 2 Full
Style2-Storey, Detached
ConstructionAluminum Siding
TypeResidential
StatusFor Sale
Subtype DetachedIndoor Features Auto Garage Door Remote, Water Heater OwnedOutdoor Features Patio, PorchAmenities Fenced Yard, Park, Public Transit, School, LibraryOwnership FreeholdBasement Full, Partial BasementFoundation ConcreteHeating / Cooling Forced AirHeating Fuel GasSewer Sewer
Parking 4.00
ASAP

Thu

18

Dec

Fri

19

Dec

Sat

20

Dec

Sun

21

Dec

Mon

22

Dec

Tue

23

Dec

Wed

24

Dec

Thu

25

Dec

Fri

26

Dec

Sat

27

Dec

Sun

28

Dec

Mon

29

Dec

Tue

30

Dec

Wed

31

Dec

Thu

1

Jan

Fri

2

Jan

Sat

3

Jan

Sun

4

Jan

Mon

5

Jan

Tue

6

Jan

Wed

7

Jan

Thu

8

Jan

Fri

9

Jan

Sat

10

Jan

Sun

11

Jan

Mon

12

Jan

Tue

13

Jan

Wed

14

Jan

Thu

15

Jan

By clicking “Get pre-qualified” and/or 'Submit' you are expressly consenting, in writing, to receive telemarketing and other messages, including artificial or prerecorded voices, via automated calls or texts from jumprealty.ca and up.mortgages at the number you provided above. This consent is not required to purchase any good or service. Message and data rates may apply, frequency varies. Text HELP for help or STOP to cancel. More details in Terms of Use and Privacy Policy.

Listing Agency:  RIGHT AT HOME REALTY
Hospital
Parks
Schools
Place of Worship
Please select an amenity above to view a list.

Recommended Properties

Loading...
44 Newton Street
Barrie , Ontario
3 2 $639,900
Get more info