For Lease - 4424 Sixth Avenue Unit# BSMT, Niagara Falls, Ontario

Views   1
Time on Jump  135 day
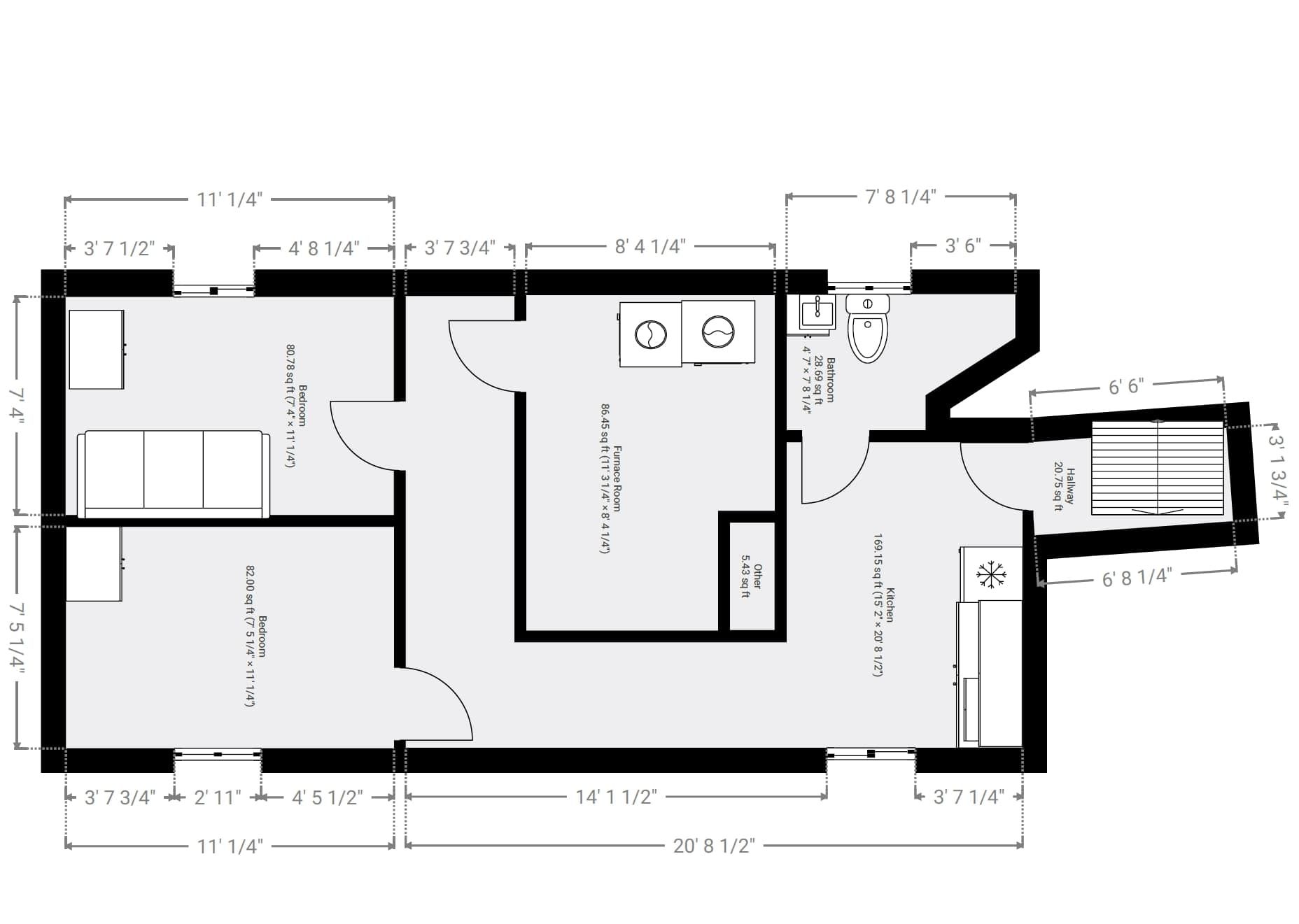
  • Bright basement that includes 2 bedrooms and a nicely tiled bathroom.
  • Utilities are included, making budgeting easy and stress-free.
  • Separate entrance and laundry area for added convenience.
  • Private parking spot plus a spacious backyard for summer fun.
  • Close to schools, parks, and public transit for easy access.
The perfect blend of comfort and convenience. This bsmt features 2 beds, 1 (3pcs) bath with a tiled stand-up shower, storage, and windows for natural light. Utilities included: hydro/electricity, heat, water, wifi (internet). Appl included: fridge, microwave, induction stove w/o/h exhaust, washer, dryer & sofa bed. Enjoy a separate laundry and separate entrance. The property includes 1 private driveway parking spot and a spacious backyard perfect for summer relaxation or bbqs. Close to schools, parks, macbain community centre, niagara falls, public transit & many more! The tenant is responsible for snow shoveling the stairs and their pathway during the winter. Shovel is provided. Floor plan attached.
Listing IDX12478732
Address4424 Sixth Avenue Unit# BSMT
CityNiagara Falls, Ontario
Lease$1,500
Bed / Bath2 / 1 Full
Style2-Storey, Detached
ConstructionBrick, Concrete Poured
Land Size4680
TypeResidential
StatusFor Lease
Subtype DetachedIndoor Features Water Heater, In Basement, Laundry Room, In AreaInclusions All Inclusive, Heat, Hydro, Water, High Speed Internet, ParkingOwnership LeaseholdBasement Finished, Separate Entrance, Full, Finished with Walk-OutFoundation Brick, Poured ConcreteHeating / Cooling Forced AirHeating Fuel GasSewer Sewer
Parking 1.00
ASAP

Sun

8

Mar

Mon

9

Mar

Tue

10

Mar

Wed

11

Mar

Thu

12

Mar

Fri

13

Mar

Sat

14

Mar

Sun

15

Mar

Mon

16

Mar

Tue

17

Mar

Wed

18

Mar

Thu

19

Mar

Fri

20

Mar

Sat

21

Mar

Sun

22

Mar

Mon

23

Mar

Tue

24

Mar

Wed

25

Mar

Thu

26

Mar

Fri

27

Mar

Sat

28

Mar

Sun

29

Mar

Mon

30

Mar

Tue

31

Mar

Wed

1

Apr

Thu

2

Apr

Fri

3

Apr

Sat

4

Apr

Sun

5

Apr

By clicking “Get pre-qualified” and/or 'Submit' you are expressly consenting, in writing, to receive telemarketing and other messages, including artificial or prerecorded voices, via automated calls or texts from jumprealty.ca and up.mortgages at the number you provided above. This consent is not required to purchase any good or service. Message and data rates may apply, frequency varies. Text HELP for help or STOP to cancel. More details in Terms of Use and Privacy Policy.

Listing Agency:  EXP REALTY
Hospital
Parks
Schools
Place of Worship
Please select an amenity above to view a list.

Recommended Properties

Loading...
4424 Sixth Avenue Unit# Bsmt
Niagara Falls , Ontario
2 1 $1,500
Get more info