For Lease - 449 The Queensway N/A Unit# 400, Georgina, Ontario

Views   1
Time on Jump  2 day
  • Renovated office space in a high traffic commercial plaza.
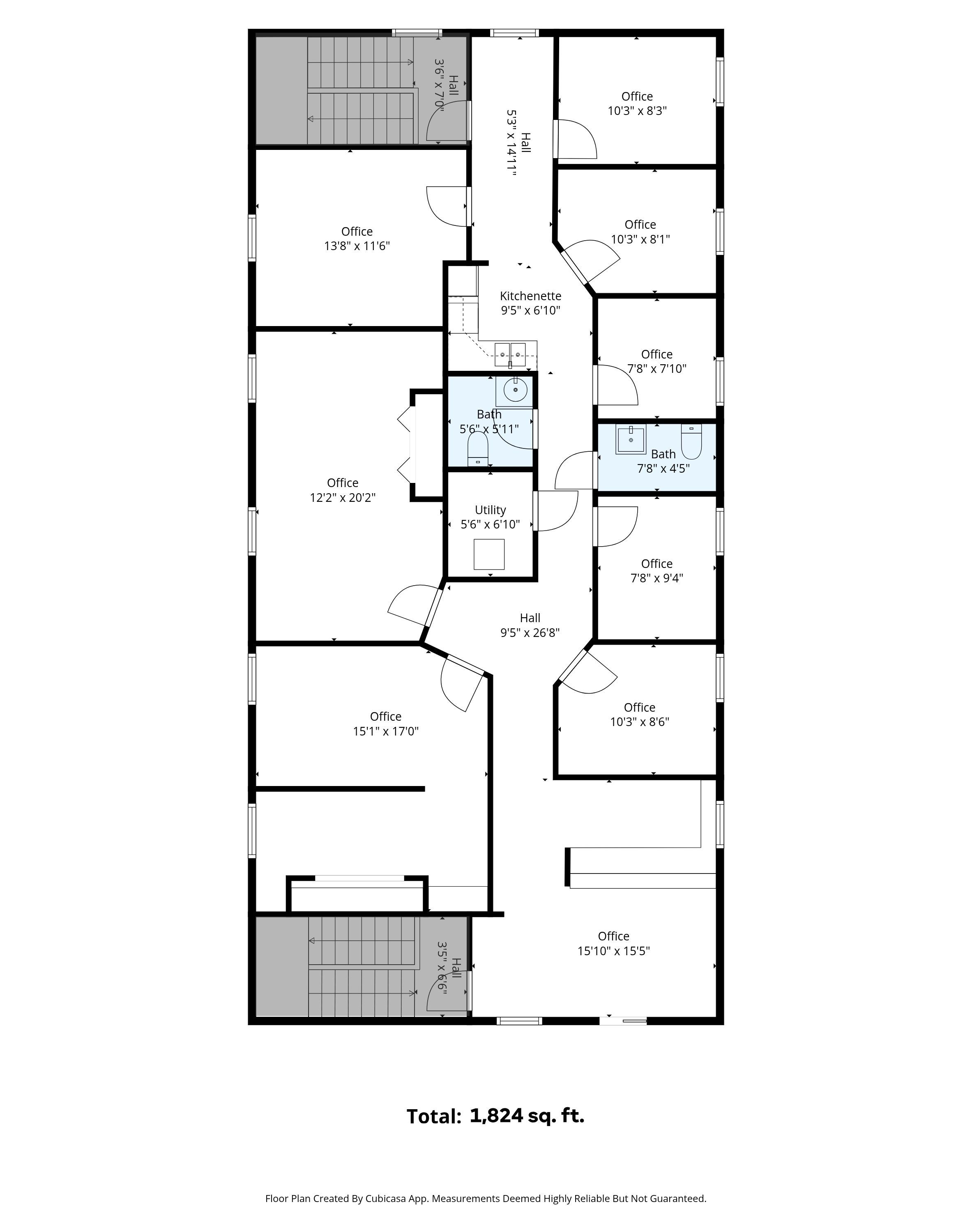
  • Spacious 1824 sqft layout with 8 offices and a reception area.
  • Suitable for various uses including medical and professional offices.
  • Convenient elevator and stair access to the unit.
  • Includes all utilities in the lease price for easy budgeting.
Professionally renovated office space for rent in high traffic commercial plaza with excellent street exposure just minutes from hwy 404. This space is suitable for many uses including a business, professional office, medical (c4-2 zoning). Approx. 1824 sqft. Includes reception area, 8 offices, 2 washrooms, kitchenette with sink, fridge and b/i dishwasher. ($18 + $15. 72 tmi (2025)/sq. Ft., includes all utilities (hydro, gas, water & sewer, parking)). Stairs and elevator access to unit. Additional office space may be arranged. Note: 5% annual increase. Minimum 3 year lease.
Listing IDN12982356
Address449 The Queensway N/A Unit# 400
CityGeorgina, Ontario
Lease$18
Bath2 Full
StyleOffice
TypeIndustrial/Commercial
StatusFor Lease
Subtype OfficeOwnership LeaseholdHeating / Cooling Gas Forced Air ClosedSewer Sanitary+Storm
ASAP

Tue

14

Apr

Wed

15

Apr

Thu

16

Apr

Fri

17

Apr

Sat

18

Apr

Sun

19

Apr

Mon

20

Apr

Tue

21

Apr

Wed

22

Apr

Thu

23

Apr

Fri

24

Apr

Sat

25

Apr

Sun

26

Apr

Mon

27

Apr

Tue

28

Apr

Wed

29

Apr

Thu

30

Apr

Fri

1

May

Sat

2

May

Sun

3

May

Mon

4

May

Tue

5

May

Wed

6

May

Thu

7

May

Fri

8

May

Sat

9

May

Sun

10

May

Mon

11

May

Tue

12

May

By clicking “Get pre-qualified” and/or 'Submit' you are expressly consenting, in writing, to receive telemarketing and other messages, including artificial or prerecorded voices, via automated calls or texts from jumprealty.ca and up.mortgages at the number you provided above. This consent is not required to purchase any good or service. Message and data rates may apply, frequency varies. Text HELP for help or STOP to cancel. More details in Terms of Use and Privacy Policy.

Listing Agency:  RE/MAX HALLMARK YORK GROUP REALTY LTD.

* Data is provided courtesy of PROPTX. The information provided herein must only be used by consumers that have a bona fide interest in the purchase, sale, or lease of real estate and may not be used for any commercial purpose or any other purpose. The information is deemed reliable but is not guaranteed accurate by PROPTX.

Hospital
Parks
Schools
Place of Worship
Please select an amenity above to view a list.

Recommended Properties

Loading...
449 The Queensway N/a Unit# 400
Georgina , Ontario
2 $18
Get more info