For Sale - 45 Charles Morley Boulevard, Huntsville, Ontario

Est payment $3,121/mo
Views   1
Time on Jump  196 day
  • Stylish end-unit townhouse with a layout like a single-family home.
  • Bright open-concept main floor perfect for relaxing and entertaining.
  • Three spacious bedrooms offer flexibility for family, guests, or a home office.
  • Primary suite features a walk-in closet and private ensuite for comfort.
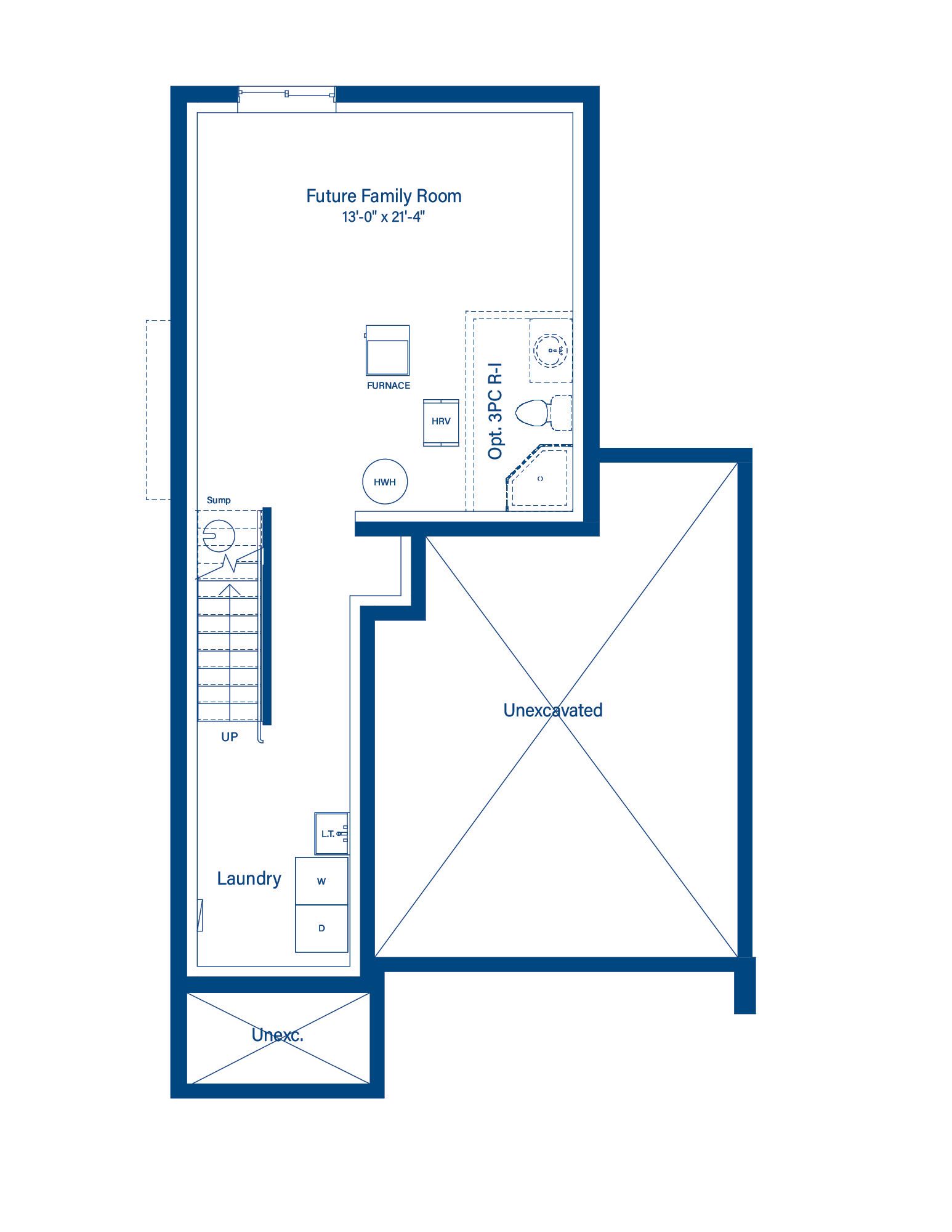
  • Unfinished basement provides ample storage and potential for future projects.



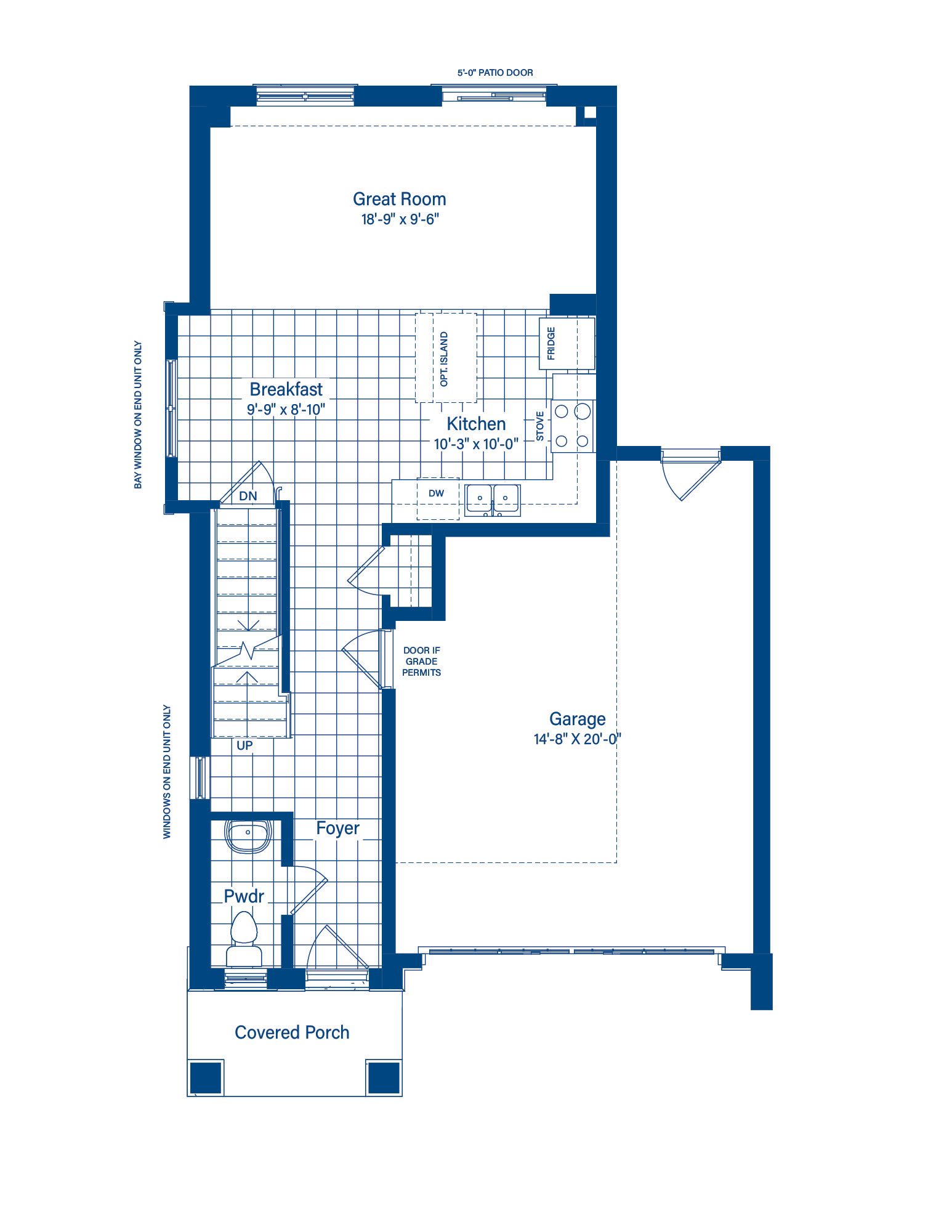
Welcome to this stylish two-storey end-unit townhouse in the sought-after woodstream community, built with care by devonleigh homes. Offering the feel of a single-family home with the ease of townhome living and no condo fees, this property stands out for its light-filled layout and extra sense of privacy. The main floor features a bright open-concept kitchen, living and dining area designed for both everyday life and relaxed entertaining. Large windows fill the space with natural light, while inside entry from the single-car garage keeps daily routines simple. A convenient two-piece powder room completes this level. Upstairs, three spacious bedrooms provide comfort and flexibility. The primary suite is a welcoming retreat, highlighted by a dramatic double-door entrance, a generous walk-in closet and a private three-piece ensuite. Two additional bedrooms share a well-appointed four-piece bathroom and can easily serve as guest rooms, childrens rooms or a home office. The unfinished basement offers abundant storage and a blank canvas for your future plans, whether that means a recreation room, gym or hobby space. Set in a great community known for its welcoming atmosphere, parks and easy access to everyday amenities, this home delivers a lifestyle that balances convenience, comfort and peace of mind.
Listing IDX12407840
Address45 Charles Morley Boulevard
CityHuntsville, Ontario
Price$649,900
Bed / Bath3 / 3 Full
Style2-Storey, Att/Row/Townhouse
ConstructionBrick, Vinyl Siding
Land Size0.08
TypeResidential
StatusFor Sale
Subtype Att/Row/TownhouseIndoor Features ERV/HRVOutdoor Features Landscaped, Porch, Year Round LivingAmenities Hospital, Golf, SchoolOwnership FreeholdWaterfront NoneBasement Full, UnfinishedFoundation Poured ConcreteHeating / Cooling Forced AirHeating Fuel GasSewer Sewer
Parking 2.00
ASAP

Thu

2

Apr

Fri

3

Apr

Sat

4

Apr

Sun

5

Apr

Mon

6

Apr

Tue

7

Apr

Wed

8

Apr

Thu

9

Apr

Fri

10

Apr

Sat

11

Apr

Sun

12

Apr

Mon

13

Apr

Tue

14

Apr

Wed

15

Apr

Thu

16

Apr

Fri

17

Apr

Sat

18

Apr

Sun

19

Apr

Mon

20

Apr

Tue

21

Apr

Wed

22

Apr

Thu

23

Apr

Fri

24

Apr

Sat

25

Apr

Sun

26

Apr

Mon

27

Apr

Tue

28

Apr

Wed

29

Apr

Thu

30

Apr

By clicking “Get pre-qualified” and/or 'Submit' you are expressly consenting, in writing, to receive telemarketing and other messages, including artificial or prerecorded voices, via automated calls or texts from jumprealty.ca and up.mortgages at the number you provided above. This consent is not required to purchase any good or service. Message and data rates may apply, frequency varies. Text HELP for help or STOP to cancel. More details in Terms of Use and Privacy Policy.

Listing Agency:  Coldwell Banker Thompson Real Estate

* Data is provided courtesy of PROPTX. The information provided herein must only be used by consumers that have a bona fide interest in the purchase, sale, or lease of real estate and may not be used for any commercial purpose or any other purpose. The information is deemed reliable but is not guaranteed accurate by PROPTX.

Hospital
Parks
Schools
Place of Worship
Please select an amenity above to view a list.

Recommended Properties

Loading...
45 Charles Morley Boulevard
Huntsville , Ontario
3 3 $649,900
Get more info