For Lease - 459 Main Street Unit# 3, Milton, Ontario

Views   1
Time on Jump  52 day
  • Full second-floor corner unit with great visibility and access.
  • Ideal for professional offices like legal, insurance, or lending.
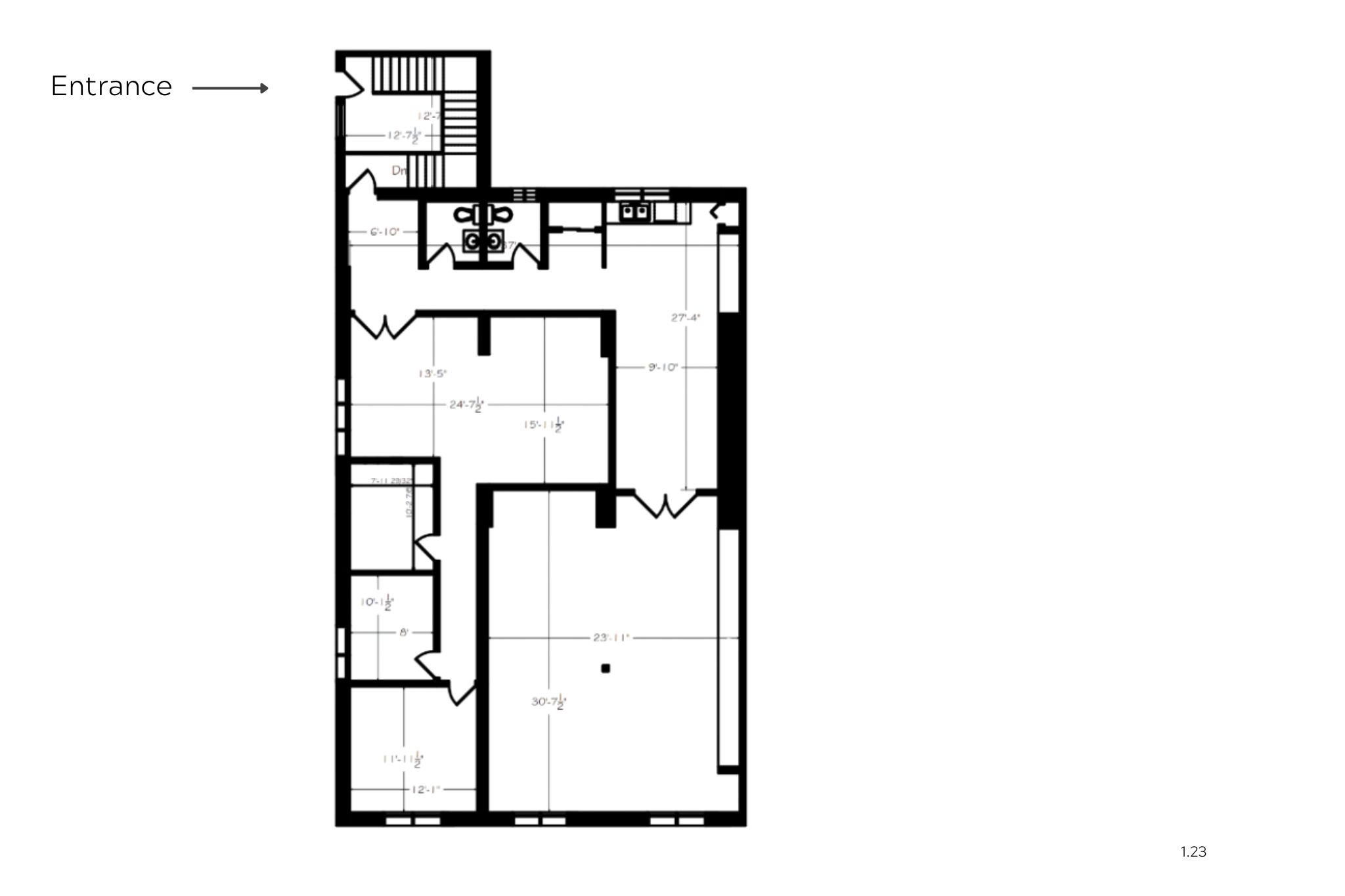
  • Bright 2,415 SF space with plenty of natural light.
  • Private entrance with kitchenette and meeting room included.
  • Landlord open to layout changes for customized use.
Rare opportunity to have the full second-floor corner unit at the corner of main street & ontario street in milton, offering strong visibility, easy access, and private entrance. A great fit for professional office users such as legal, property management, lending, mortgage, or insurance. The building is anchored by royal lepage meadowtowne realty, a long-established residential and commercial brokerage. The space is a bright 2,415 sf corner unit with lots of natural light and an open layout that can stay as-is or be reworked if needed. It currently includes a private stairwell entrance, kitchenette, men's and women's washrooms, a meeting room, reception area, and three offices. The landlord is open to discussing layout changes. Quick possession is available.
Listing IDW12646274
Address459 Main Street Unit# 3
CityMilton, Ontario
Lease$3,800
Bath2 Full
StyleOffice
Land Size0.84
TypeIndustrial/Commercial
StatusFor Lease
Subtype OfficeOwnership LeaseholdHeating / Cooling Other
ASAP

Sat

14

Feb

Sun

15

Feb

Mon

16

Feb

Tue

17

Feb

Wed

18

Feb

Thu

19

Feb

Fri

20

Feb

Sat

21

Feb

Sun

22

Feb

Mon

23

Feb

Tue

24

Feb

Wed

25

Feb

Thu

26

Feb

Fri

27

Feb

Sat

28

Feb

Sun

1

Mar

Mon

2

Mar

Tue

3

Mar

Wed

4

Mar

Thu

5

Mar

Fri

6

Mar

Sat

7

Mar

Sun

8

Mar

Mon

9

Mar

Tue

10

Mar

Wed

11

Mar

Thu

12

Mar

Fri

13

Mar

Sat

14

Mar

By clicking “Get pre-qualified” and/or 'Submit' you are expressly consenting, in writing, to receive telemarketing and other messages, including artificial or prerecorded voices, via automated calls or texts from jumprealty.ca and up.mortgages at the number you provided above. This consent is not required to purchase any good or service. Message and data rates may apply, frequency varies. Text HELP for help or STOP to cancel. More details in Terms of Use and Privacy Policy.

Listing Agency:  ROYAL LEPAGE MEADOWTOWNE REALTY
Hospital
Parks
Schools
Place of Worship
Please select an amenity above to view a list.

Recommended Properties

Loading...
459 Main Street Unit# 3
Milton , Ontario
2 $3,800
Get more info