For Sale - 462 Northcliffe Boulevard, Toronto, Ontario

Est payment $13,221/mo
Views   1
Time on Jump  1 days
  • Pre-construction rental redevelopment opportunity in a central Toronto location.
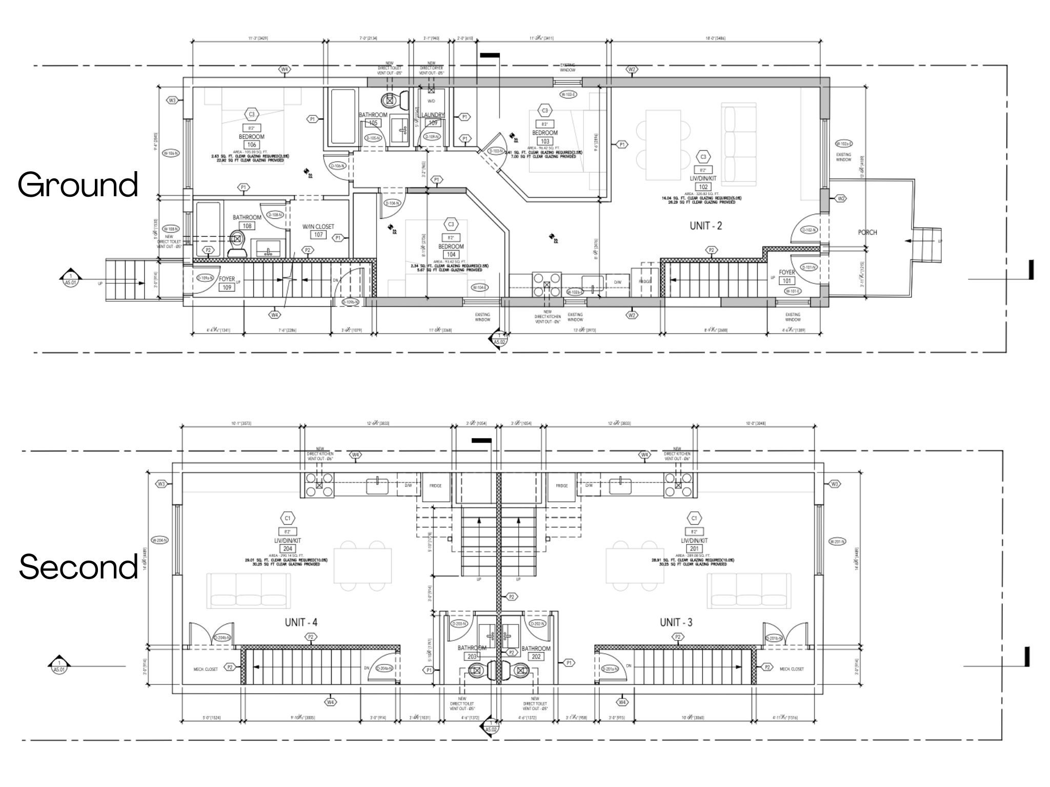
  • Proposed three-storey building with multiple residential units and a garden suite.
  • Layouts designed for efficiency with individual kitchens and bathrooms.
  • Focus on energy efficiency and potential financing options available.
  • Close to transit, schools, parks, and local amenities for convenience.



Pre-construction purpose-built rental redevelopment opportunity at 462 northcliffe blvd. The property is proposed as a three-storey multi-unit residential building with a self-contained rear garden suite, offered as a fixed-price construction project pursuant to the builder's construction agreement. Architectural drawings and renderings are available for review. The proposed design contemplates a comprehensive rebuild and vertical expansion, including new residential accommodation across multiple storeys and a separate garden suite located at the rear of the lot. The layouts emphasize efficient unit design, individual kitchens and bathrooms, and modern building standards, as illustrated in the architectural plans. The project has been designed with energy efficiency and cmhc mli select underwriting considerations in mind, which may provide a potential pathway to insured take-out financing upon stabilization, subject to cmhc program criteria, scoring, debt service coverage, and lender approval. No representation or warranty is made regarding cmhc eligibility, financing terms, or loan-to-value outcomes. Located in an established toronto neighbourhood with proximity to transit, schools, parks, and local amenities. Intended for build-to-hold investors seeking long-term rental income and cost certainty through a pre-construction structure. Architectural drawings and additional information available upon request. Buyer to verify all permits, approvals, zoning compliance, construction scope, and financing eligibility. Appointment required before walking the site.
Listing IDC12632764
Address462 Northcliffe Boulevard
CityToronto, Ontario
Price$2,667,077
StyleInvestment
TypeIndustrial/Commercial
StatusFor Sale
Subtype InvestmentHeating / Cooling Gas Forced Air Open
ASAP

Tue

16

Dec

Wed

17

Dec

Thu

18

Dec

Fri

19

Dec

Sat

20

Dec

Sun

21

Dec

Mon

22

Dec

Tue

23

Dec

Wed

24

Dec

Thu

25

Dec

Fri

26

Dec

Sat

27

Dec

Sun

28

Dec

Mon

29

Dec

Tue

30

Dec

Wed

31

Dec

Thu

1

Jan

Fri

2

Jan

Sat

3

Jan

Sun

4

Jan

Mon

5

Jan

Tue

6

Jan

Wed

7

Jan

Thu

8

Jan

Fri

9

Jan

Sat

10

Jan

Sun

11

Jan

Mon

12

Jan

Tue

13

Jan

By clicking “Get pre-qualified” and/or 'Submit' you are expressly consenting, in writing, to receive telemarketing and other messages, including artificial or prerecorded voices, via automated calls or texts from jumprealty.ca and up.mortgages at the number you provided above. This consent is not required to purchase any good or service. Message and data rates may apply, frequency varies. Text HELP for help or STOP to cancel. More details in Terms of Use and Privacy Policy.

Listing Agency:  SOTHEBY'S INTERNATIONAL REALTY CANADA
Hospital
Parks
Schools
Place of Worship
Please select an amenity above to view a list.

Recommended Properties

Loading...
462 Northcliffe Boulevard
Toronto , Ontario
$2,667,077
Get more info