For Sale - 4734 County Rd 2 N/A, Asphodel-Norwood, Ontario

Est payment $3,366/mo
Views   1
Time on Jump  1 days
  • Renovated farmhouse with charm, just minutes from grocery and city amenities.
  • Freshly refinished hardwood floors and spacious open living and dining area.
  • Cozy front parlour and wrap-around deck for relaxing and enjoying nature.
  • Four generous bedrooms, including an oversized primary with a clawfoot tub.
  • 1.64 acres with multiple outbuildings, perfect for hobbies and projects.



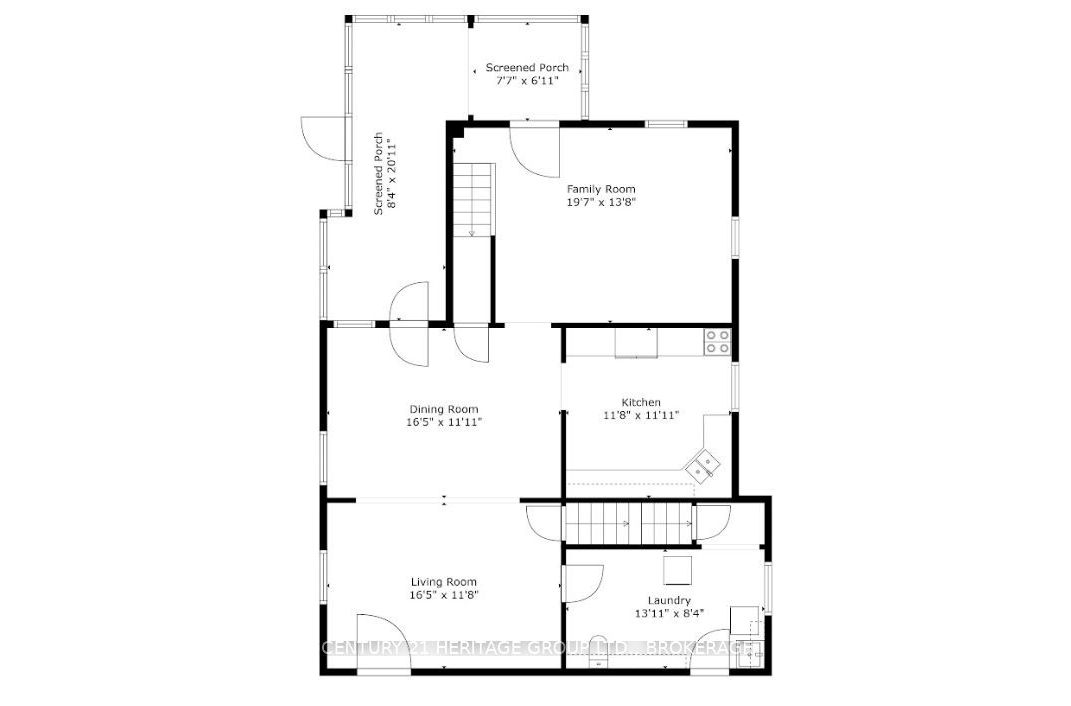
This renovated farmhouse is packed with charm, quality, and tranquility, not to mention it's only 5 minutes to the nearest grocery store and under 20 minutes to the city of peterborough! Step inside to find freshly refinished hardwood floors and a wide open living and dining space, where soaring ceilings and sun-filled walls say "welcome home" the moment you walk in. Take a moment to appreciate the retrofitted windows that keep the home cool with their uv protectant film (not to mention the lifetime transferrable warranty). A cozy front parlour is perfect for curling up with a book, while the closed-in wrap-around deck practically begs for morning coffees and late-night firefly watching any time of year. The brand-new kitchen is equal parts beautiful and functional, just waiting for someone to roll out dough for their next award-winning norwood fair pie! Upstairs, you will find four generous bedrooms, including an oversized primary and a spacious 4-piece bath complete with a clawfoot tub. This may just be your new favorite spot after a day in the garden, barn, garage, or shop. A 2020 hot tub is tucked beneath a custom-built shelter, crafted from the farmhouse's original windows, offering year-round stargazing with a touch of history and a whole lot of charm. Rinse off just a few steps away with the outdoor shower, and then carry on your way to enjoying all these 1. 64 acres have to offer! Multiple outbuildings offer space for hobbies, projects, and quiet escapes. No need to fight for your corner of paradise, there is room for everyone here!
Listing IDX12746368
Address4734 County Rd 2 N/A
CityAsphodel-Norwood, Ontario
Price$679,000
Bed / Bath4 / 2 Full
Style2-Storey, Detached
ConstructionBrick
Land Size1.64
TypeResidential
StatusFor Sale
Subtype DetachedIndoor Features Carpet Free, StorageOutdoor Features Hot Tub, Porch Enclosed, Year Round Living, Privacy, Recreational AreaAmenities Park, River/Stream, School Bus Route, Clear View, Library, Place Of WorshipOwnership FreeholdViews Forest, Hills, Trees/Woods, Pasture, Garden, PanoramicBasement Full, UnfinishedFoundation StoneHeating / Cooling Forced AirHeating Fuel PropaneSewer Septic
Parking 6.00
ASAP

Mon

2

Feb

Tue

3

Feb

Wed

4

Feb

Thu

5

Feb

Fri

6

Feb

Sat

7

Feb

Sun

8

Feb

Mon

9

Feb

Tue

10

Feb

Wed

11

Feb

Thu

12

Feb

Fri

13

Feb

Sat

14

Feb

Sun

15

Feb

Mon

16

Feb

Tue

17

Feb

Wed

18

Feb

Thu

19

Feb

Fri

20

Feb

Sat

21

Feb

Sun

22

Feb

Mon

23

Feb

Tue

24

Feb

Wed

25

Feb

Thu

26

Feb

Fri

27

Feb

Sat

28

Feb

Sun

1

Mar

Mon

2

Mar

By clicking “Get pre-qualified” and/or 'Submit' you are expressly consenting, in writing, to receive telemarketing and other messages, including artificial or prerecorded voices, via automated calls or texts from jumprealty.ca and up.mortgages at the number you provided above. This consent is not required to purchase any good or service. Message and data rates may apply, frequency varies. Text HELP for help or STOP to cancel. More details in Terms of Use and Privacy Policy.

Listing Agency:  CENTURY 21 HERITAGE GROUP LTD., BROKERAGE
Hospital
Parks
Schools
Place of Worship
Please select an amenity above to view a list.

Recommended Properties

Loading...
4734 County Rd 2 N/a
Asphodel-Norwood , Ontario
4 2 $679,000
Get more info