For Lease - 48 Michener Court, Toronto, Ontario

Views   1
Time on Jump  17 day
  • Renovated grand three-storey home with a solid attached garage and extra parking.
  • Private cul-de-sac location, providing a peaceful environment in downtown.
  • Spacious open concept layout with abundant natural light and storage.
  • Stunning backyard oasis with waterfall, deck, and landscaping for relaxation.
  • Located near vibrant neighborhoods like Trinity Bellwoods and King West.
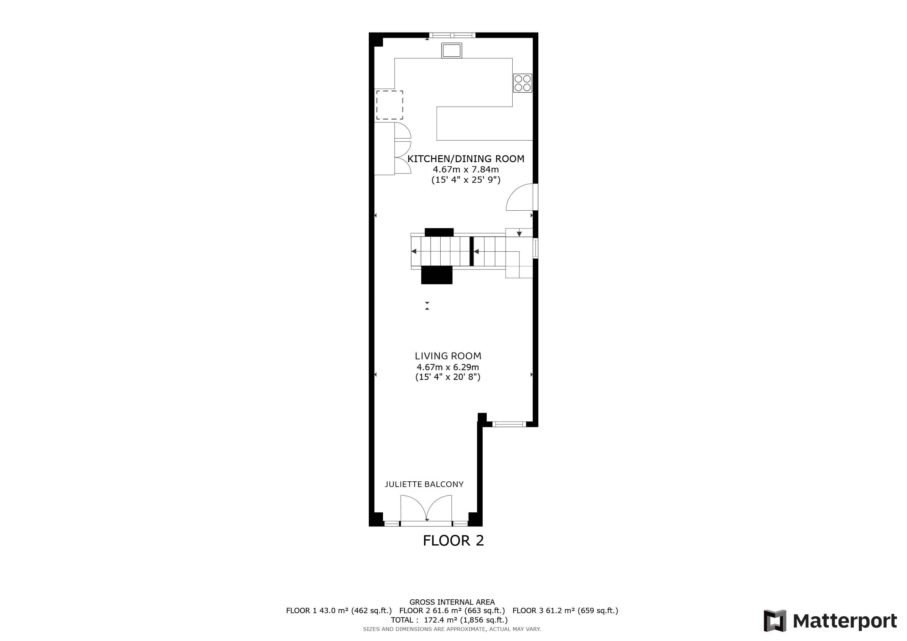
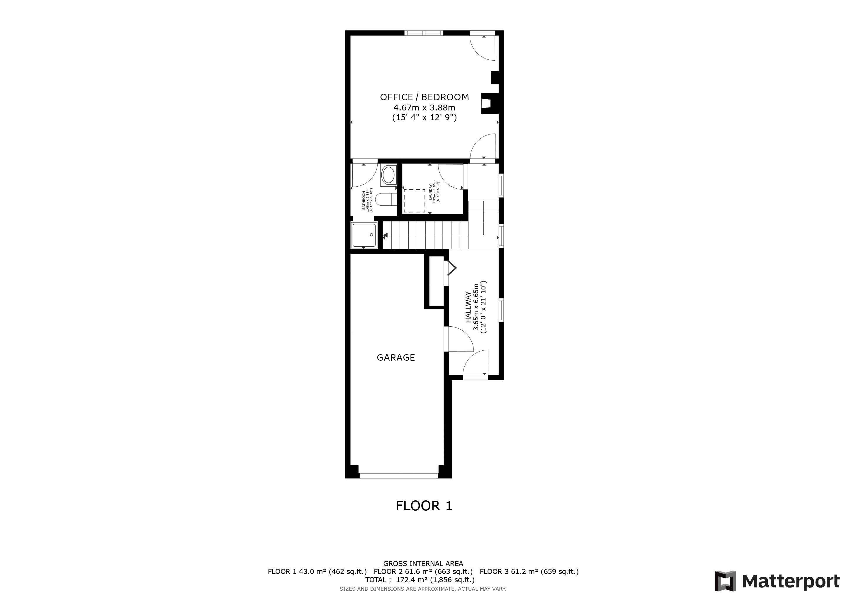
Beautifully renovated grand 3 storey home in king west. 48 michener court has it all! Extra wide 24 foot front semi with solid attached 1 car garage plus 1. 5 parking spots out front. End of a cul-de -sac this is one of the most private properties downtown. An idyllic mix of modern comfort with thoughtful touches of original charm throughout. Lovely curb appeal with inviting entrance, professionally landscaped gardens and walkway. Driveway has built in path lighting. A large side patio/walkway entrance to professionally renovated backyard oasis including a waterfall, elevated deck with 2 more natural gas bbq connections and a garden shed. Enter a gracious foyer with plenty of windows and storage. Step inside and you will find a fully renovated open concept layout that has a spacious family room and kitchen you will not find downtown. Most places are narrow and deep, however this wide lot and layout allows for more comfortable interior space. Designer entertainer's kitchen (renovated in 2023) boasts over 30 linear ft of counter space. Dining room is open to kitchen and has a walkout to the wraparound deck. Rare full mudroom with heated floors, custom closet and custom shelving unit with hooks. A true gem located right in the centre of toronto's best neighbourhoods- walk west to trinity bellwoods, east to the bustling king west, north to little italy, south to the lakefront! See virtual tour and floorplans attached. Note pictures represent furniture not currently in the unit, tenants furniture is currently there. Can also be rented furnished. Also available as full property at mls #c12849020 which is 4br/3ba which includes the 4th bedroom on 1st floor and can be used as a bedroom, office or in-law suite with ensuite bath & private entrance from backyard.
Listing IDC12885642
Address48 Michener Court
CityToronto, Ontario
Lease$6,500
Bed / Bath3 / 2 Full
Style3-Storey, Semi-Detached
ConstructionBrick
TypeResidential
StatusFor Lease
Subtype Semi-Detached Indoor Features Auto Garage Door Remote, Carpet Free, In-Law Suite, Water Heater, EnsuiteInclusions Water HeaterAmenities Cul de Sac/Dead EndOwnership LeaseholdWaterfront NoneBasement NoneFoundation ConcreteHeating / Cooling Forced AirHeating Fuel GasSewer Sewer
Parking 2.50
ASAP

Fri

3

Apr

Sat

4

Apr

Sun

5

Apr

Mon

6

Apr

Tue

7

Apr

Wed

8

Apr

Thu

9

Apr

Fri

10

Apr

Sat

11

Apr

Sun

12

Apr

Mon

13

Apr

Tue

14

Apr

Wed

15

Apr

Thu

16

Apr

Fri

17

Apr

Sat

18

Apr

Sun

19

Apr

Mon

20

Apr

Tue

21

Apr

Wed

22

Apr

Thu

23

Apr

Fri

24

Apr

Sat

25

Apr

Sun

26

Apr

Mon

27

Apr

Tue

28

Apr

Wed

29

Apr

Thu

30

Apr

Fri

1

May

By clicking “Get pre-qualified” and/or 'Submit' you are expressly consenting, in writing, to receive telemarketing and other messages, including artificial or prerecorded voices, via automated calls or texts from jumprealty.ca and up.mortgages at the number you provided above. This consent is not required to purchase any good or service. Message and data rates may apply, frequency varies. Text HELP for help or STOP to cancel. More details in Terms of Use and Privacy Policy.

Listing Agency:  CENTURY 21 REGAL REALTY INC.

* Data is provided courtesy of PROPTX. The information provided herein must only be used by consumers that have a bona fide interest in the purchase, sale, or lease of real estate and may not be used for any commercial purpose or any other purpose. The information is deemed reliable but is not guaranteed accurate by PROPTX.

Hospital
Parks
Schools
Place of Worship
Please select an amenity above to view a list.

Recommended Properties

Loading...
48 Michener Court
Toronto , Ontario
3 2 $6,500
Get more info