For Lease - 480 Huronia Road Unit# 202, Barrie, Ontario

Views   1
Time on Jump  1 days
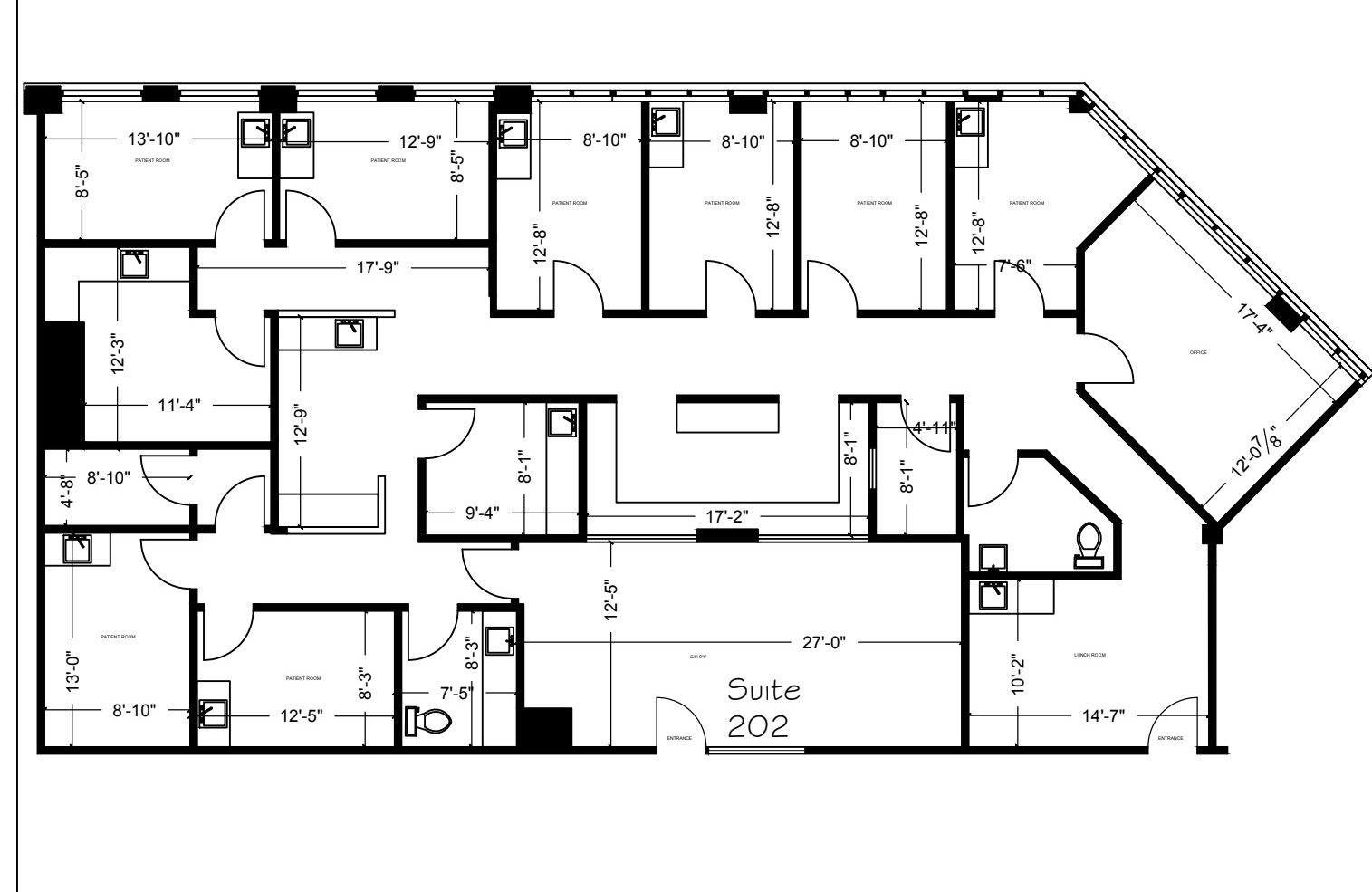
  • Professional office space available for immediate use in a medical building.
  • Numerous offices along with a large reception and waiting area.
  • Includes kitchen, staff room, storage, and two washrooms.
  • Features A/C, sprinklers, public elevator, and ample parking.
  • Easy access to Hwy 400 in a rapidly growing area.
Professional office space available immediately in busy medical building located in the rapidly growing south end of barrie. This unit offers numerous offices, a large reception/waiting area, kitchen/staff room, storage areas, two washrooms as well as a/c, sprinklers, public elevator , ample parking space, and easy access to hwy 400. With a qualified tenant, the landlord has agreed to terminate existing leases and sign a new lease with the new tenant. Contact the l/a for more details.
Listing IDS12603116
Address480 Huronia Road Unit# 202
CityBarrie, Ontario
Lease$20
StyleOffice
TypeIndustrial/Commercial
StatusFor Lease
Subtype OfficeOwnership LeaseholdHeating / Cooling Gas Forced Air Closed
ASAP

Sat

6

Dec

Sun

7

Dec

Mon

8

Dec

Tue

9

Dec

Wed

10

Dec

Thu

11

Dec

Fri

12

Dec

Sat

13

Dec

Sun

14

Dec

Mon

15

Dec

Tue

16

Dec

Wed

17

Dec

Thu

18

Dec

Fri

19

Dec

Sat

20

Dec

Sun

21

Dec

Mon

22

Dec

Tue

23

Dec

Wed

24

Dec

Thu

25

Dec

Fri

26

Dec

Sat

27

Dec

Sun

28

Dec

Mon

29

Dec

Tue

30

Dec

Wed

31

Dec

Thu

1

Jan

Fri

2

Jan

Sat

3

Jan

By clicking “Get pre-qualified” and/or 'Submit' you are expressly consenting, in writing, to receive telemarketing and other messages, including artificial or prerecorded voices, via automated calls or texts from jumprealty.ca and up.mortgages at the number you provided above. This consent is not required to purchase any good or service. Message and data rates may apply, frequency varies. Text HELP for help or STOP to cancel. More details in Terms of Use and Privacy Policy.

Listing Agency:  RE/MAX HALLMARK CHAY REALTY
Hospital
Parks
Schools
Place of Worship
Please select an amenity above to view a list.

Recommended Properties

Loading...
480 Huronia Road Unit# 202
Barrie , Ontario
$20
Get more info