For Lease - 481 Taunton Road Unit# 100, Oshawa, Ontario

Views   1
Time on Jump  2 day
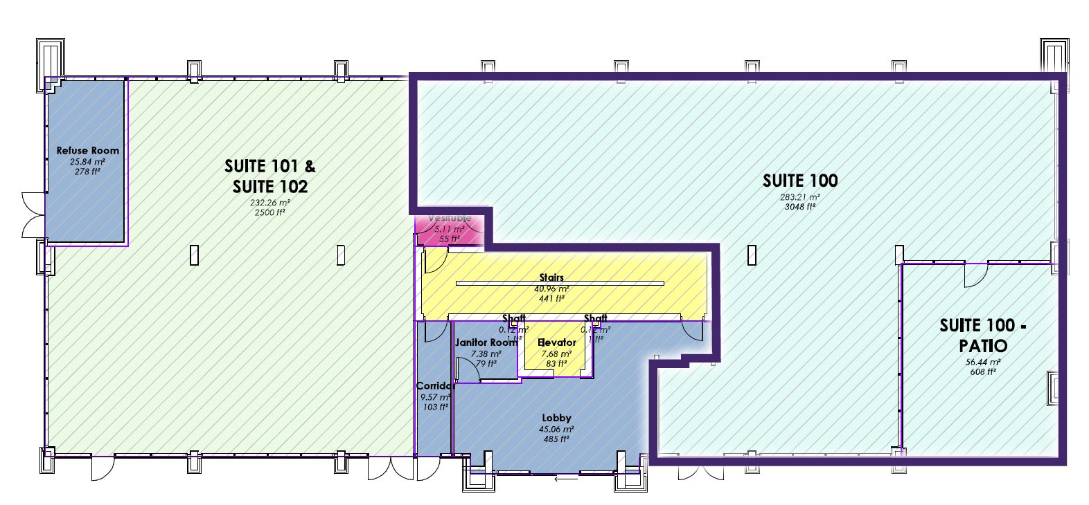
  • Restaurant space for lease in a new office development.
  • Covered patio adds extra outdoor space for customers.
  • Located near Oshawa Executive Airport and a hotel.
  • Signage available for visibility along Taunton.
  • Ample on-site parking for convenience.
Restaurant space for lease located at the base of a brand new 4-storey office development. Covered and fenced patio offering an additional 674 sq. Ft., excluded from the rentable square footage. The development is located next to the oshawa executive airport and tru by hilton, a 97-room hotel and the only on in north oshawa. Signage available along taunton. Ready for fixturing. Ample on-site surface parking.
Listing IDE12964320
Address481 Taunton Road Unit# 100
CityOshawa, Ontario
Lease$30
StyleCommercial Retail
TypeIndustrial/Commercial
StatusFor Lease
Subtype Commercial RetailOwnership LeaseholdHeating / Cooling Gas Forced Air Closed
ASAP

Fri

10

Apr

Sat

11

Apr

Sun

12

Apr

Mon

13

Apr

Tue

14

Apr

Wed

15

Apr

Thu

16

Apr

Fri

17

Apr

Sat

18

Apr

Sun

19

Apr

Mon

20

Apr

Tue

21

Apr

Wed

22

Apr

Thu

23

Apr

Fri

24

Apr

Sat

25

Apr

Sun

26

Apr

Mon

27

Apr

Tue

28

Apr

Wed

29

Apr

Thu

30

Apr

Fri

1

May

Sat

2

May

Sun

3

May

Mon

4

May

Tue

5

May

Wed

6

May

Thu

7

May

Fri

8

May

By clicking “Get pre-qualified” and/or 'Submit' you are expressly consenting, in writing, to receive telemarketing and other messages, including artificial or prerecorded voices, via automated calls or texts from jumprealty.ca and up.mortgages at the number you provided above. This consent is not required to purchase any good or service. Message and data rates may apply, frequency varies. Text HELP for help or STOP to cancel. More details in Terms of Use and Privacy Policy.

Listing Agency:  THE BEHAR GROUP REALTY INC.

* Data is provided courtesy of PROPTX. The information provided herein must only be used by consumers that have a bona fide interest in the purchase, sale, or lease of real estate and may not be used for any commercial purpose or any other purpose. The information is deemed reliable but is not guaranteed accurate by PROPTX.

Hospital
Parks
Schools
Place of Worship
Please select an amenity above to view a list.

Recommended Properties

Loading...
481 Taunton Road Unit# 100
Oshawa , Ontario
$30
Get more info