For Sale - 50 Robinson Street, Perth, Ontario

Est payment $2,617/mo
Views   1
Time on Jump  7 day
  • Charming raised bungalow with a bright and functional main level.
  • Three comfortable bedrooms plus an ensuite and a guest bathroom.
  • Fully finished lower level with additional bedrooms and rec room.
  • Large sunny backyard perfect for summer gatherings and relaxation.
  • Desirable walkable neighborhood near schools, parks, and shops.



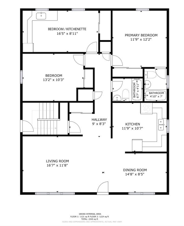
Welcome to 50 robinson street! This charming, raised bungalow nestled in the heart of perth is perfect for families, investors, or anyone looking to enjoy small-town living with everyday convenience. The main level offers a bright and functional layout featuring three comfortable bedrooms, an ensuite plus a guest full bathroom, and a spacious living room ideal for relaxing or entertaining. The traditional eat-in kitchen flows seamlessly to the dining area, creating a warm and inviting space for family meals and gatherings. Downstairs, the fully finished lower level expands your living space with two additional bedrooms, office/rec room, a second full bathroom, and a dedicated laundry room-perfect for extended family, guests, or a potential in-law setup. You'll also find ample storage space to keep everything organized. Step outside to enjoy the large, sunny backyard-an ideal setting for summer barbecues, gardening, or simply unwinding in your own private outdoor space. Located in a desirable, walkable neighbourhood, this home is just minutes from local schools, parks, churches, and the charming shops and restaurants of downtown perth. A fantastic opportunity to own a versatile and well-located home-don't miss your chance to make it yours!
Listing IDX12995556
Address50 Robinson Street
CityPerth, Ontario
Price$544,900
Bed / Bath5 / 3 Full
StyleBungalow-Raised, Detached
ConstructionShingle ,Metal/Steel Siding
Land Size0.169
TypeResidential
StatusFor Sale
Subtype DetachedIndoor Features In-Law CapabilityAmenities Fenced Yard, Golf, Hospital, Park, School, Place Of WorshipOwnership FreeholdBasement FinishedFoundation Concrete BlockHeating / Cooling Forced AirHeating Fuel GasSewer Sewer
ASAP

Thu

23

Apr

Fri

24

Apr

Sat

25

Apr

Sun

26

Apr

Mon

27

Apr

Tue

28

Apr

Wed

29

Apr

Thu

30

Apr

Fri

1

May

Sat

2

May

Sun

3

May

Mon

4

May

Tue

5

May

Wed

6

May

Thu

7

May

Fri

8

May

Sat

9

May

Sun

10

May

Mon

11

May

Tue

12

May

Wed

13

May

Thu

14

May

Fri

15

May

Sat

16

May

Sun

17

May

Mon

18

May

Tue

19

May

Wed

20

May

Thu

21

May

By clicking “Get pre-qualified” and/or 'Submit' you are expressly consenting, in writing, to receive telemarketing and other messages, including artificial or prerecorded voices, via automated calls or texts from jumprealty.ca and up.mortgages at the number you provided above. This consent is not required to purchase any good or service. Message and data rates may apply, frequency varies. Text HELP for help or STOP to cancel. More details in Terms of Use and Privacy Policy.

Listing Agency:  COLDWELL BANKER FIRST OTTAWA REALTY

* Data is provided courtesy of PROPTX. The information provided herein must only be used by consumers that have a bona fide interest in the purchase, sale, or lease of real estate and may not be used for any commercial purpose or any other purpose. The information is deemed reliable but is not guaranteed accurate by PROPTX.

Hospital
Parks
Schools
Place of Worship
Please select an amenity above to view a list.

Recommended Properties

Loading...
50 Robinson Street
Perth , Ontario
5 3 $544,900
Get more info