For Sale - 51 Cardinal Avenue, South Bruce Peninsula, Ontario

Est payment $2,300/mo
Views   1
Time on Jump  1 days
  • Enchanting lakeside cottage in a tranquil community near Sauble Beach.
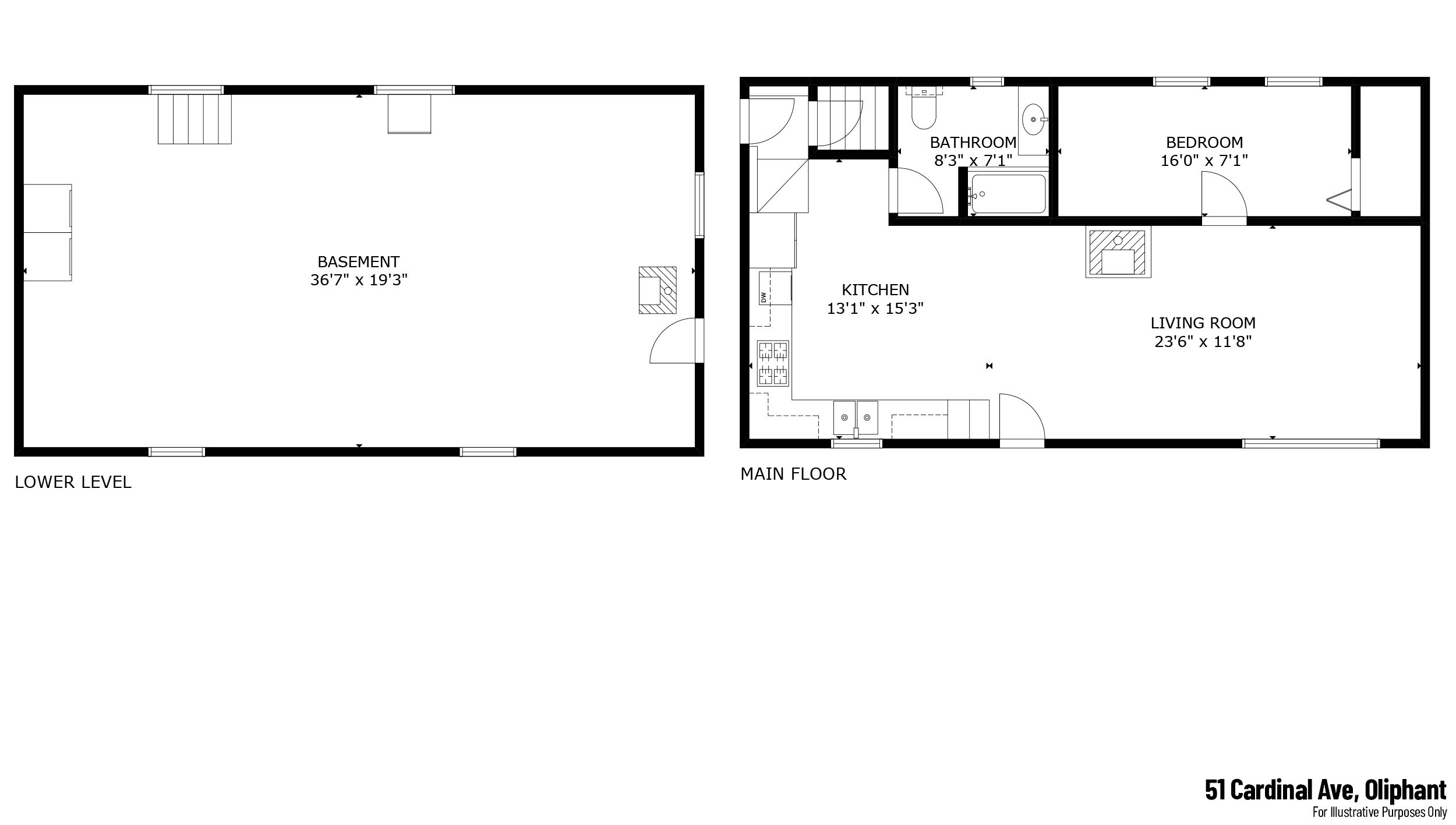
  • Cozy main cottage with a versatile basement and comfortable amenities.
  • Spacious eat-in kitchen and living room with a propane fireplace.
  • Relax in the screened porch or three-season room for serene evenings.
  • Access to a hot tub, storage building, and beach volleyball court.



Your lakeside retreat awaits! Discover the perfect canvas for endless family memories at this enchanting cottage in oliphant, a tranquil lakeside community just 10 minutes north of vibrant sauble beach. Tucked away on a quiet side street, this property masterfully blends value, amenities, and cherished privacy. The main cottage offers a cozy haven with its comfortable bedroom and a versatile, full-height basement featuring storage, laundry area, a handy walkout and a warming wood-burning stove. The main level invites connection with its spacious eat-in kitchen and a living room centered around a welcoming propane fireplace. Step out onto the party-sized screened porch, or retreat to the lovely three-season room, ideal for savoring those cool, serene evenings. Beyond the cottage, a world of relaxation and recreation unfolds. You'll be delighted by the covered hot tub, an inviting oasis, and a fully finished, insulated 32'x15'accessory building, a fantastic space for extra guests to unwind. The expansive grounds also boast a large storage building with a convenient roll-up garage door, ensuring ample space for all your toys. For ultimate peace of mind, a generac backup generator, newer metal roof and a ductless ac/heat unit provide year round comfort. And for a touch of active fun, embrace the sun on your very own beach volleyball court. This is more than just a cottage; it's a lifestyle, offering a unique blend of features at an attractive price point.
Listing IDX13047620
Address51 Cardinal Avenue
CitySouth Bruce Peninsula, Ontario
Price$479,000
Bed / Bath1 / 1 Full
StyleBungalow, Detached
ConstructionVinyl Siding
Land Size0.545
TypeResidential
StatusFor Sale
Subtype DetachedIndoor Features Primary Bedroom - Main Floor, Water Heater Owned, Water TreatmentOutdoor Features Deck, Hot Tub, Privacy, Porch Enclosed, Recreational Area, Seasonal Living, Year Round LivingOwnership FreeholdBasement Unfinished, FullFoundation Block, ConcreteHeating / Cooling Heat PumpHeating Fuel PropaneSewer Septic
Parking 3.00
ASAP

Tue

28

Apr

Wed

29

Apr

Thu

30

Apr

Fri

1

May

Sat

2

May

Sun

3

May

Mon

4

May

Tue

5

May

Wed

6

May

Thu

7

May

Fri

8

May

Sat

9

May

Sun

10

May

Mon

11

May

Tue

12

May

Wed

13

May

Thu

14

May

Fri

15

May

Sat

16

May

Sun

17

May

Mon

18

May

Tue

19

May

Wed

20

May

Thu

21

May

Fri

22

May

Sat

23

May

Sun

24

May

Mon

25

May

Tue

26

May

By clicking “Get pre-qualified” and/or 'Submit' you are expressly consenting, in writing, to receive telemarketing and other messages, including artificial or prerecorded voices, via automated calls or texts from jumprealty.ca and up.mortgages at the number you provided above. This consent is not required to purchase any good or service. Message and data rates may apply, frequency varies. Text HELP for help or STOP to cancel. More details in Terms of Use and Privacy Policy.

Listing Agency:  Century 21 Millennium Inc.

* Data is provided courtesy of PROPTX. The information provided herein must only be used by consumers that have a bona fide interest in the purchase, sale, or lease of real estate and may not be used for any commercial purpose or any other purpose. The information is deemed reliable but is not guaranteed accurate by PROPTX.

Hospital
Parks
Schools
Place of Worship
Please select an amenity above to view a list.

Recommended Properties

Loading...
51 Cardinal Avenue
South Bruce Peninsula , Ontario
1 1 $479,000
Get more info