For Sale - 511 St. Felix Street, Cornwall, Ontario

Est payment $2,011/mo
Views   5
Time on Jump  10 day
  • Bright full-brick bungalow in a convenient East Cornwall location.
  • Connected living and dining space with warm hardwood flooring.
  • Three bedrooms offer flexibility for family, guests, or office.
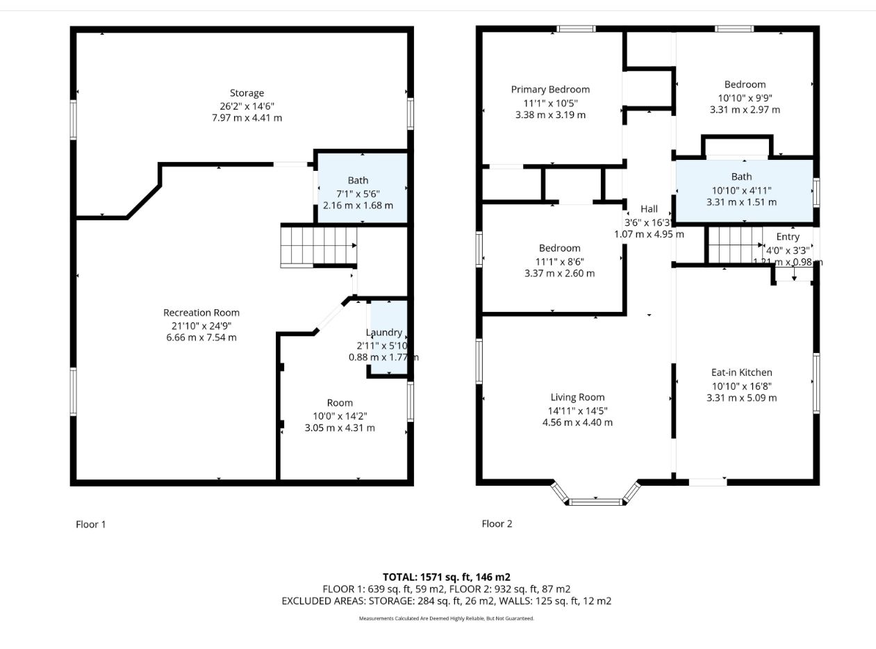
  • Finished basement with rec room, second bathroom, and kitchenette.
  • Fenced yard and detached garage provide practical outdoor space.



This bright, full-brick bungalow offers a comfortable layout and a convenient east cornwall location close to schools, groceries, restaurants, and everyday essentials. Inside, the main floor features a connected living and dining space with hardwood flooring that adds warmth and character. Three bedrooms provide flexibility for family, guests, or a home office, each with good natural light. The finished basement extends the living space with a large rec room, a second bathroom, storage room and a kitchenette, making it well-suited for in-law potential or a private area for older children. Set on a rectangular lot with a fenced yard, the outdoor space is easy to maintain while still offering room to relax or play. A detached single garage and additional driveway parking add practical value. Recent updates include a roof (2020) and fresh paint, giving the home a clean, move-in ready feel. With approximately 1,046 ext sq ft above grade and in-law capability already in place, this property is a solid option for buyers seeking space, flexibility, and a well-located home in cornwall.
Listing IDX13002608
Address511 St. Felix Street
CityCornwall, Ontario
Price$418,800
Bed / Bath3 / 2 Full
StyleBungalow, Detached
ConstructionBrick
TypeResidential
StatusFor Sale
Subtype DetachedIndoor Features In-Law Capability, Primary Bedroom - Main FloorOutdoor Features Paved Yard, PorchOwnership FreeholdBasement FinishedFoundation ConcreteHeating / Cooling RadiantHeating Fuel GasSewer Sewer
Parking 4.00
ASAP

Mon

27

Apr

Tue

28

Apr

Wed

29

Apr

Thu

30

Apr

Fri

1

May

Sat

2

May

Sun

3

May

Mon

4

May

Tue

5

May

Wed

6

May

Thu

7

May

Fri

8

May

Sat

9

May

Sun

10

May

Mon

11

May

Tue

12

May

Wed

13

May

Thu

14

May

Fri

15

May

Sat

16

May

Sun

17

May

Mon

18

May

Tue

19

May

Wed

20

May

Thu

21

May

Fri

22

May

Sat

23

May

Sun

24

May

Mon

25

May

By clicking “Get pre-qualified” and/or 'Submit' you are expressly consenting, in writing, to receive telemarketing and other messages, including artificial or prerecorded voices, via automated calls or texts from jumprealty.ca and up.mortgages at the number you provided above. This consent is not required to purchase any good or service. Message and data rates may apply, frequency varies. Text HELP for help or STOP to cancel. More details in Terms of Use and Privacy Policy.

Listing Agency:  FAIR AGENT REALTY

* Data is provided courtesy of PROPTX. The information provided herein must only be used by consumers that have a bona fide interest in the purchase, sale, or lease of real estate and may not be used for any commercial purpose or any other purpose. The information is deemed reliable but is not guaranteed accurate by PROPTX.

Hospital
Parks
Schools
Place of Worship
Please select an amenity above to view a list.

Recommended Properties

Loading...
511 St. Felix Street
Cornwall , Ontario
3 2 $418,800
Get more info