For Lease - 515 Spadina Road Unit# Lower Front, Toronto, Ontario

Views   1
Time on Jump  1 days
  • Renovated one-bedroom apartment featuring spacious living areas and a large bathroom.
  • Upgraded with hardwood floors and stainless steel appliances, including a dishwasher.
  • Oversized windows that bring in plenty of natural light throughout the apartment.
  • Located in a vibrant neighborhood with easy access to shopping, parks, and transit.
  • Private entry with flexible possession options and parking availability for $100/month.
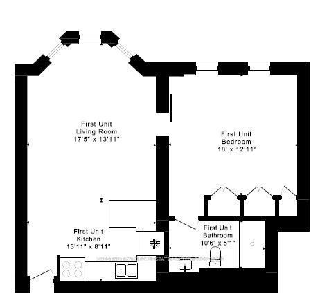
Fantastic renovated lower level one bedroom apartment in forest hill. 820 sq ft includes spacious bedroom & living areas with large bathroom & kitchen. Upgraded throughout with hardwood floors, stainless steel appliances including dishwasher, bathroom with marble flooring & huge glassed-in shower and shared ensuite laundry. Oversized windows fill the space with natural light. Private side door entry, utilities included. Short walk to st. Clair west ttc subway situated in one of the best neighbourhoods in the city with tree-lined streets, spadina village shopping & restaurants, parks & easy access to cedarvale ravine & beltline. Parking option available if required for additional $100/month. Flexible possession. All utilities included (except internet).
Listing IDC13017808
Address515 Spadina Road Unit# Lower Front
CityToronto, Ontario
Lease$1,995
Bed / Bath1 / 1 Full
Style2-Storey, Detached
ConstructionStucco (Plaster)
TypeResidential
StatusFor Lease
Subtype DetachedIndoor Features Carpet Free, SharedInclusions All Inclusive, Heat, Hydro, Snow Removal, WaterOwnership LeaseholdBasement Finished with Walk-OutFoundation UnknownHeating / Cooling Forced AirHeating Fuel GasSewer Sewer
ASAP

Tue

21

Apr

Wed

22

Apr

Thu

23

Apr

Fri

24

Apr

Sat

25

Apr

Sun

26

Apr

Mon

27

Apr

Tue

28

Apr

Wed

29

Apr

Thu

30

Apr

Fri

1

May

Sat

2

May

Sun

3

May

Mon

4

May

Tue

5

May

Wed

6

May

Thu

7

May

Fri

8

May

Sat

9

May

Sun

10

May

Mon

11

May

Tue

12

May

Wed

13

May

Thu

14

May

Fri

15

May

Sat

16

May

Sun

17

May

Mon

18

May

Tue

19

May

By clicking “Get pre-qualified” and/or 'Submit' you are expressly consenting, in writing, to receive telemarketing and other messages, including artificial or prerecorded voices, via automated calls or texts from jumprealty.ca and up.mortgages at the number you provided above. This consent is not required to purchase any good or service. Message and data rates may apply, frequency varies. Text HELP for help or STOP to cancel. More details in Terms of Use and Privacy Policy.

Listing Agency:  CHESTNUT PARK REAL ESTATE LIMITED

* Data is provided courtesy of PROPTX. The information provided herein must only be used by consumers that have a bona fide interest in the purchase, sale, or lease of real estate and may not be used for any commercial purpose or any other purpose. The information is deemed reliable but is not guaranteed accurate by PROPTX.

Hospital
Parks
Schools
Place of Worship
Please select an amenity above to view a list.

Recommended Properties

Loading...
515 Spadina Road Unit# Lower Front
Toronto , Ontario
1 1 $1,995
Get more info